

作品包括:
Word版说明书1份,共22页,约7800字
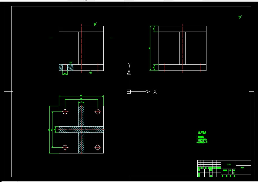
CAD版本图纸,共5张
摘 要
“机械手”(Mechanical Hand):多数是指附属于主机、程序固定的自动抓取、操作装置,如自动线、自动线的上、下料,加工中心的自动换刀的自动化装置。实现了自动化生产方式,达到了减少劳动力、节约费用、提高工作效率、增加企业经济效益之目的。
本文设计的机械手手臂前后伸缩机构由电动机、丝杠螺母副、导杆、手臂、连接板等构成。设计过程中,首先,调查了机械手研究现况,在此基础上根据设计技术要求选定了驱动机构及伸缩机构方案;接着,根据选定的结构方案对各主要零部件进行了设计与校核;最后,通过AutoCAD绘图软件绘制了该机械手手臂前后伸缩机构的装配图及主要零部件图。
通过本次设计,巩固了大学所学专业知识,如:机械原理、机械设计、材料力学、公差与互换性理论、机械制图等;掌握了普通机械产品的设计方法并能够熟练使用AutoCAD软件,本次机械手臂的设计代表了设计的一般过程,对今后的设计工作有一定的参考价值。
关键词:机械手;手臂;伸缩;设计
目 录
摘 要 I
Abstract II
第1章 绪论 1
1.1研究背景及意义 1
1.2国内外研究现状 1
第2章 总体方案设计 3
2.1设计要求 3
2.2方案设计 3
2.2.1驱动机构 3
2.2.2伸缩机构 3
2.2.3总体方案 4
第3章 设计计算 5
3.1手臂伸缩驱动力计算 5
3.1.1 手臂摩擦力的分析与计算 5
3.1.2手臂密封处的摩擦阻力的计算 6
3.1.3手臂惯性力的计算 6
3.2电机的选择 7
3.2.1 扭矩的计算 7
3.2.2 启动矩频特性校核 8
3.3丝杠螺母的选择与计算 8
3.3.1丝杠螺母副支承方式选择 8
3.3.2确定滚珠丝杠副的导程 9
3.3.3强度计算 10
3.3.4螺母选择 12
3.4联轴器的选用 12
3.5轴承及键的选用与校核 13
3.5.1轴承 13
3.5.2键 13
3.6手臂设计与校核 14
3.6.1导向装置 14
3.6.2平衡装置 14
3.6.3尺寸设计 14
3.6.4尺寸校核 15
结 论 16
参考文献 17
致 谢 18
温馨提示:
1、题目前面的备注【字母数字编号】为本站整理分类的编号,与课题内容无关,请选题时忽视;
2、若题目上备注三维,则表示文件里包含三维源文件,由于三维组成零件数量较多,为保证预览截图的简洁性,本站将三维文件夹进行了打包。三维及CAD预览截图,均为本站电脑打开软件进行截图的,保证能够打开,下载原件超高清,下载后解压即可;
3、本站所有资源如无特殊说明,都需要本地电脑安装Office2007。图纸软件为AutoCAD,PROE,UG,SolidWorks,CATIA等;
4、本站所有图文资料仅供用户学习参考,不作为任何商用或其他用途;
5、本站不保证下载资源的准确性、安全性和完整性, 不包修改,不支持退换,同时也不承担用户因使用这些下载资源对自己和他人造成任何形式的伤害或损失;
6、 下载文件中如有侵权或不适当内容,请与我们联系,我们立即纠正。