

作品包括:
Word版说明书1份,共33页,约12000字
CAD版本图纸,共9张
摘 要
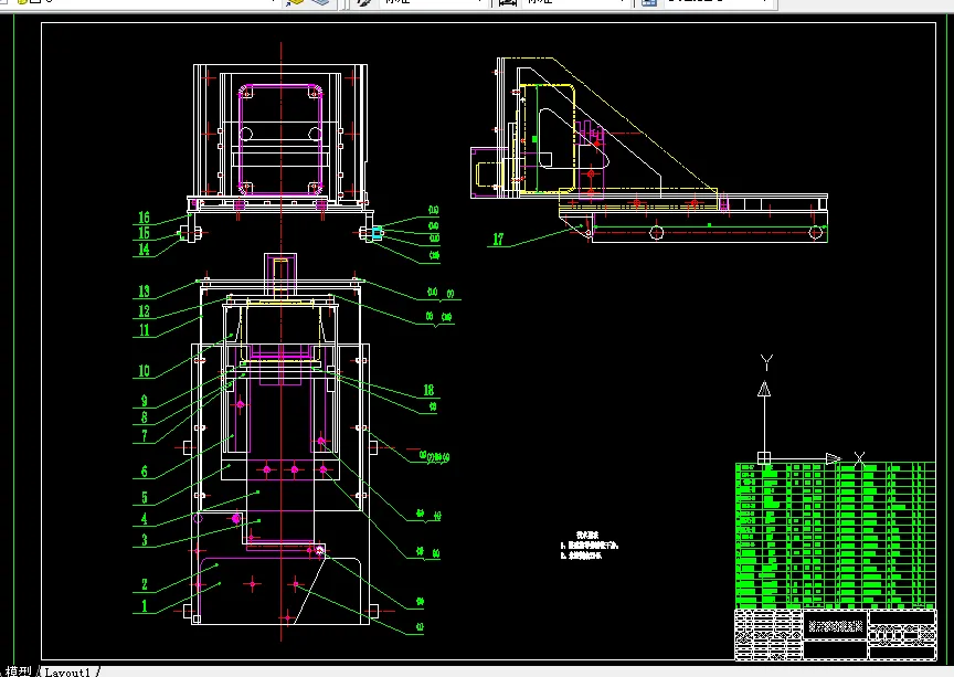
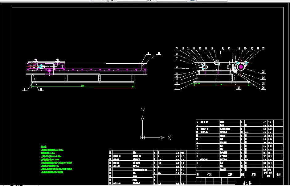
本次设计的内容及工作量是确定针式打号机的总体结构及其组成,完成主要机械部分设计。板钢厂打号机机构结构由左右移动装置、前后移动装置以及边部检测装置三部分组成。具体内容如下: 左右移动机构、前后移动机构机械传动部分的设计基本相同,包括:拟定总体传动方案,确定电动机型号和类型,初取传动比,分配传动比,确定减速器类型,进行减速器热校核和强度、刚度校核,选择连轴器的型号和规格,进行许用转矩校核,合理选择键,不同的是左右移动机构设计车轮传动,前后机构设计齿轮齿条传动几何尺寸设计,进行齿轮齿条传动的接触疲劳强度校核和疲劳强度验算。而边部检测装置和前后移动装置差不多都是齿轮齿条传动。这重阐述了:如何根据负载大小和特性及工作环境选择电动机,如何根据负载、传动比和结构来设计减速器,如何初定齿轮尺寸进行齿轮传动设计。钢厂针式打号机为广泛运用于钢铁行业中在钢材上的打号,是机电一体化产品。钢厂针式打号机设计是机械设计和单片机控制的有机结合。最大的特点是从机电有机结合的角度,运用机电一体化系统的设计原理与设计方法进行设计,正好符合机电专业的要求。
左右移动装置和前后移动装置用来控制打号机打印头的移动,使打印头能准确的对准钢材;用来决定打印的起始位置,即测试第一个钢坯的位置,使打印顺利开始。打号机的移动由电动机驱动、车轮在轨道上移动,钢厂打号机的打字是由打印头上的八根打印针完成,打印过程则需要通单片机编程控制来完成。
关键词:针式打号机 前后移动装置 边部检测装置
目 录
第一章 绪论…………………………………………………………………………1
第二章 执行方案的设定……………………………………………………………3
2.1对执行方案的要求 ……………………………………………………………3
2.2拟定执行方案 …………………………………………………………………3
第三章 左右移动运行机构的计算…………………………………………………7
3.1定传动方案…………………………………………………………………… 7
3.2 设计车轮与轨道………………………………………………………………7
3.3 运行阻力矩的计算 ……………………………………………………………9
3.4选择电动机…………………………………………………………………… 11
3.5 传动比的分配 ……………………………………………………………… 14
3.6传动装置的运动及动力参数计……………………………………………… 16
3.7 齿轮齿条的传动设计…………………………………………………………17
3.8 齿轮与齿条的尺寸精度 …………………………………………………… 19
3.9 平键连接及校核………………………………………………………………20
3.10联轴器的选择 ………………………………………………………………21
第四章 边部检测装置设计 ……………………………………………………… 22
4.1选择电动机……………………………………………………………………22
4.1.2电动机功率选择……………………………………………………………22
4.1.3电动机型号选择……………………………………………………………22
4.2各级传动比分配和传动系统参数计算………………………………………23
4.2.1各级传动比分配……………………………………………………………23
4.2.3传动系统的运动和动力参数计算…………………………………………23
4.3开式齿轮传动设计……………………………………………………………24
4.3.1对齿轮齿条的要求…………………………………………………………25
4.3.2齿轮齿条设计计算…………………………………………………………26
4.3.3齿轮齿条尺寸精度…………………………………………………………27
4.4减速器的选择…………………………………………………………………27
4.5联轴器的选择…………………………………………………………………27
总结…………………………………………………………………………………28
参考文献……………………………………………………………………………29
致谢…………………………………………………………………………………30
温馨提示:
1、题目前面的备注【字母数字编号】为本站整理分类的编号,与课题内容无关,请选题时忽视;
2、若题目上备注三维,则表示文件里包含三维源文件,由于三维组成零件数量较多,为保证预览截图的简洁性,本站将三维文件夹进行了打包。三维及CAD预览截图,均为本站电脑打开软件进行截图的,保证能够打开,下载原件超高清,下载后解压即可;
3、本站所有资源如无特殊说明,都需要本地电脑安装Office2007。图纸软件为AutoCAD,PROE,UG,SolidWorks,CATIA等;
4、本站所有图文资料仅供用户学习参考,不作为任何商用或其他用途;
5、本站不保证下载资源的准确性、安全性和完整性, 不包修改,不支持退换,同时也不承担用户因使用这些下载资源对自己和他人造成任何形式的伤害或损失;
6、 下载文件中如有侵权或不适当内容,请与我们联系,我们立即纠正。