

作品包括:
Word设计说明书1份
CAD版本图纸,共7张
SW三维图一套
摘要
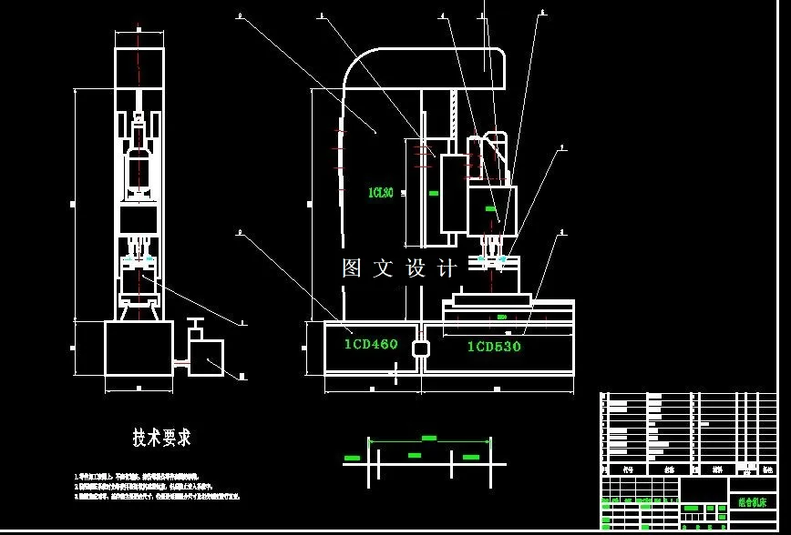
组合机床是一种能够完成多种加工操作的机床。它结合了不同种类的加工功能,如铣削、钻削、镗削、切割等,通常是通过在同一台机床上安装多个工作头或工具,或者通过工具切换系统来实现。本组合机床是减速器外壳左盖钻孔组合机床,在完成 “三图一卡”的基础上,主要完成组合机床的设计。在设计过程中借鉴了国内外一些现有的组合机床设计资料,还参考了一些与本课题相关的文献资料。 设计的主要内容为组合机床和三图一卡设计。首先对减速器外壳左盖的工艺方案进行制定,对加工要求进行分析;确定了机床切削用量和轴的切削力,扭矩等参数;随后对三图一卡进行计算分析,确定的机床尺寸图,加工示意图,生产率计算卡等,最后对都多轴箱传动系统进行计算校核,确定了各个轴的位置和尺寸
温馨提示:
1、题目前面的备注【字母数字编号】为本站整理分类的编号,与课题内容无关,请选题时忽视;
2、若题目上备注三维,则表示文件里包含三维源文件,由于三维组成零件数量较多,为保证预览截图的简洁性,本站将三维文件夹进行了打包。三维及CAD预览截图,均为本站电脑打开软件进行截图的,保证能够打开,下载原件超高清,下载后解压即可;
3、本站所有资源如无特殊说明,都需要本地电脑安装Office2007。图纸软件为AutoCAD,PROE,UG,SolidWorks,CATIA等;
4、本站所有图文资料仅供用户学习参考,不作为任何商用或其他用途;
5、本站不保证下载资源的准确性、安全性和完整性, 不包修改,不支持退换,同时也不承担用户因使用这些下载资源对自己和他人造成任何形式的伤害或损失;
6、 下载文件中如有侵权或不适当内容,请与我们联系,我们立即纠正。