

作品包括:
Word版设计说明书1份,共30页,约11000字
任务书一份
外文翻译一份
CAD版本图纸,共2张
SW三维图一套

摘要
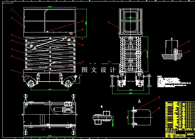
高空剪叉式液压升降台已经在我们的日常工作搬运过程中发挥着巨大功能,使得我们的工作效率得到巨大提升。高空剪叉式液压升降台种类功能众多,主要是码头,机场,火车站进行货物的卸载搬运,实现对货物的升举目的。高空剪叉式液压升降台类似电梯,我们在使用高空剪叉式液压升降台的时候可以按照我们的需要和目的对高空剪叉式液压升降台进行优化和配置新功能,以满足我们特殊的需要。
此次毕业设计研究是用于物品的垂直方向上的搬运。根据设计需要采用液压缸为动力,以剪叉式结构支架,升降台的承载结构采用高空剪叉式设计。随后对高空剪叉式液压升降台关键零部件进行设计计算与校核,以及底盘的设计分析。通过设计计算,设计的升降台满足设计要求,结构性能稳定。
关键词:升降台,物料升降,剪叉式,液压,结构设计
目 录
摘 要 I
Abstract II
目 录 III
第1章 绪 论 1
1.1 研究意义 1
1.2 国内外概况 1
1.3 发展现状 2
1.4 课题设计参数 3
第2章 高空剪叉式升降台分析及结构设计 4
2.1 升降机构的分类与选择 4
2.2 高空剪叉式液压升降台的两种机构形式 5
2.3 液压缸布置方式 6
2.3.1问题的提出 6
2.3.2液压缸布置的分析和比较 6
2.4 升降台运动分析 7
2.5 液压缸推力确定 10
2.6 支撑结构校核 10
2.6.1各铰接点的受力分析 10
2.6.2各铰接点销的选择与校核 13
第3章 底盘结构设计 14
3.1 总体设计 14
3.2 行走方案分析 14
3.3 电机选取 15
3.4 蜗轮蜗杆设计 18
第4章 经济成本分析 23
总 结 24
参考文献 25
致 谢 26
温馨提示:
1、题目前面的备注【字母数字编号】为本站整理分类的编号,与课题内容无关,请选题时忽视;
2、若题目上备注三维,则表示文件里包含三维源文件,由于三维组成零件数量较多,为保证预览截图的简洁性,本站将三维文件夹进行了打包。三维及CAD预览截图,均为本站电脑打开软件进行截图的,保证能够打开,下载原件超高清,下载后解压即可;
3、本站所有资源如无特殊说明,都需要本地电脑安装Office2007。图纸软件为AutoCAD,PROE,UG,SolidWorks,CATIA等;
4、本站所有图文资料仅供用户学习参考,不作为任何商用或其他用途;
5、本站不保证下载资源的准确性、安全性和完整性, 不包修改,不支持退换,同时也不承担用户因使用这些下载资源对自己和他人造成任何形式的伤害或损失;
6、 下载文件中如有侵权或不适当内容,请与我们联系,我们立即纠正。