

作品包括:
Word版说明书1份,共31页,约8200字
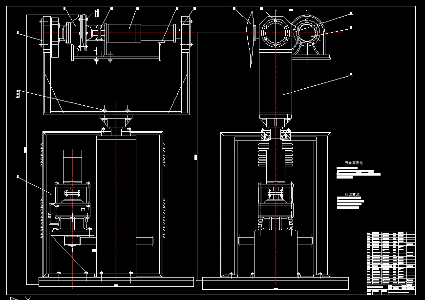
CAD版本图纸,共6张
摘 要
舰载卫星TV天线座是天线的支撑与旋转的机械装置,其功能是在舰艇摇摆条件下,补偿舰体运动引起的纵、横摇摆角,使天线保持水平,并以恒定转速驱动天线旋转,完成舷角机构扫描,并输出舷角信号。天线座支架设在船甲板上对其强度、刚度有较高的要求,同时要求耐冲击、振动,而且谐振频率要满足伺服系统带宽的需要。在船上设置卫星TV天线座帮助那些长期需要在船上工作的人以及出海游玩的人可以随时随地的收看到各种电视节目,解决长期在船上无法收看电视而带来的苦闷,让人们能有好的心情。并且还可以通过舰载卫星TV天线及时了解海上的天气情况,避免一些恶虐的天气。
本课题主要是天线座结构设计,主要是设计舰载卫星TV天线座的俯仰旋转运动以及天线的方位旋转运动,同时也要实现对于整体结构的设计。在对舰载卫星TV天线座结构的设计中,首先是传动方案的设计和方位轴的设计,其次是电机选型和结构设计等。在设计过程中要对所设计的零件用弯曲疲劳强度进行检验和校核,以保证设计的合理性。并且要用AutoCAD画设计出的天线座的总装图和部分零件图,标注相关的尺寸,写好明细栏,方便别人读图、理解图。
关键字:天线座,支架,设计,校核,总装图
目录
前 言 1
第一章 技术要求及方案的拟定 2
1.1. 技术要求 2
1.2.方案的拟定 2
第二章 原理简述 5
第三章 设计内容 6
3.1.设计题目及参数 6
3.2.传动方案及简图 6
3.3.减速器及电机的选择 7
3.4.传动比的分配 7
3.5.传动参数的计算 8
3.6.齿轮传动的设计 8
3.6.1.方位轴齿轮传动的设计 8
3.6.2.俯仰轴齿轮传动的设计 10
3.7.轴的设计 12
3.7.1.方位轴的设计 12
3.7.2.俯仰轴的设计 12
3.8.联轴器的选择 13
3.9.轴承座的设计 13
9.1.方位轴承座的设计 13
9.2.俯仰轴承座的设计 13
3.10.法兰盘的设计及简图 14
3.11.键的校核 14
3.11.1.套筒与方位轴之间键的校核 14
3.11.2.套筒与法兰盘之间键的校核 15
3.11.3.套筒与大齿轮间键的校核 15
3.11.4.小齿轮上键的校核 15
3.12.支撑架的设计 16
3.12.1.方位件的支撑架设计 16
3.12.2俯仰支撑架的设计 16
3.13.大齿轮的设计 16
3.14.扇形齿轮的齿数确定及外形设计 17
3.15.方位轴承的选择及校核 18
3.16.方位轴的校核 20
第四章 全文总结 22
参考文献 23
毕业设计小结 24
致谢 25
温馨提示:
1、题目前面的备注【字母数字编号】为本站整理分类的编号,与课题内容无关,请选题时忽视;
2、若题目上备注三维,则表示文件里包含三维源文件,由于三维组成零件数量较多,为保证预览截图的简洁性,本站将三维文件夹进行了打包。三维及CAD预览截图,均为本站电脑打开软件进行截图的,保证能够打开,下载原件超高清,下载后解压即可;
3、本站所有资源如无特殊说明,都需要本地电脑安装Office2007。图纸软件为AutoCAD,PROE,UG,SolidWorks,CATIA等;
4、本站所有图文资料仅供用户学习参考,不作为任何商用或其他用途;
5、本站不保证下载资源的准确性、安全性和完整性, 不包修改,不支持退换,同时也不承担用户因使用这些下载资源对自己和他人造成任何形式的伤害或损失;
6、 下载文件中如有侵权或不适当内容,请与我们联系,我们立即纠正。