

作品包括:
Word版设计说明书1份,共47页,约17000字
任务书一份
CAD版本图纸,共9张

摘要
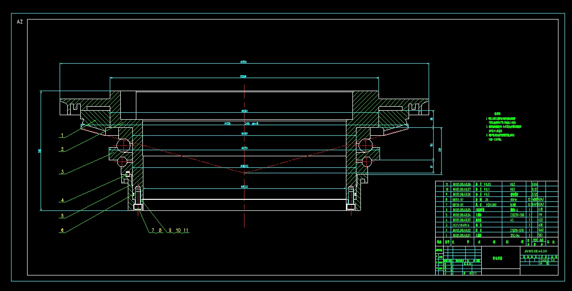
本课题为ZP175未来发展需要设计,零件结构是否满足要求,锥齿轮是否合格,轴的强度是否需要加强。根据地质的特色特别是海上作业,决定重新研制ZP175,底座其实还有稳定作用。由于是高强度作业所需功率较大首先要求轴的强度必须合格 ,对于锥齿轮也是要求接触强度和弯曲强度也必须满足要求,对于稳定的传动比并无严格要求。下一步我们要严格选用转盘的各个部件,包裹螺栓,轴承,对于轴承我们不但要求限制功率而且需要要求速度,还有寿命。我们用了很多方法以接近现实的情况,我们采用CAD绘图,用各个软件去模拟。本次设计的主要内容:加工工艺技术指标;零部件的选定;轴承,轴,齿轮的强度计算;底座的选定;转盘总体结构设计和转盘总装图绘制;主要零部件设计和绘制;设计说明书撰写。
关键字:石油转盘,轴承,锥齿轮,强度校核。
目 录
摘要 Ⅰ
Abstract Ⅱ
目录 Ⅲ
1 绪论 1
1.1 中国石油转盘的发展和现状 1
1.2 石油转盘的分类 1
1.2.1 转盘独立电驱动 1
1.2.2 液压转盘 1
1.3 石油转盘的发展趋势 2
1.4 本课题的主要内容和设计意义 2
2 ZP175转盘的主要构成 3
2.1 ZP175石油转盘的由哪些基本软件构成 3
2.2 转盘尺寸和精度 3
2.3 转盘方案的确定 4
3 转盘的结构形式 5
3.1 转盘类型 5
3.2 转盘的电动机选定 6
3.3 转盘的工作方式 7
3.4 转盘方案的总体设计 8
4 转盘工艺与设计计算 10
4.1 其传动简图和受力分析 10
4.2 轴承寿命计算 14
4.3 键的强度校核 15
4.4 转台与大齿圈的配合 16
5 ZP175转盘锥齿轮副的计算与分析 19
5.1 对小锥齿轮的计算 20
5.2 对大锥齿轮的计算 25
5.3 大锥齿轮的齿根弯曲应力的常规计算 29
6 ZP175转盘输入轴的计算与分析 29
6.1 输入轴的整体受力分析 29
6.2 输入轴的强度计算 30
7 结论 34
致谢 35
参考文献 36
温馨提示:
1、题目前面的备注【字母数字编号】为本站整理分类的编号,与课题内容无关,请选题时忽视;
2、若题目上备注三维,则表示文件里包含三维源文件,由于三维组成零件数量较多,为保证预览截图的简洁性,本站将三维文件夹进行了打包。三维及CAD预览截图,均为本站电脑打开软件进行截图的,保证能够打开,下载原件超高清,下载后解压即可;
3、本站所有资源如无特殊说明,都需要本地电脑安装Office2007。图纸软件为AutoCAD,PROE,UG,SolidWorks,CATIA等;
4、本站所有图文资料仅供用户学习参考,不作为任何商用或其他用途;
5、本站不保证下载资源的准确性、安全性和完整性, 不包修改,不支持退换,同时也不承担用户因使用这些下载资源对自己和他人造成任何形式的伤害或损失;
6、 下载文件中如有侵权或不适当内容,请与我们联系,我们立即纠正。