

作品包括:
Word版设计说明书1份,共70页,约20000字
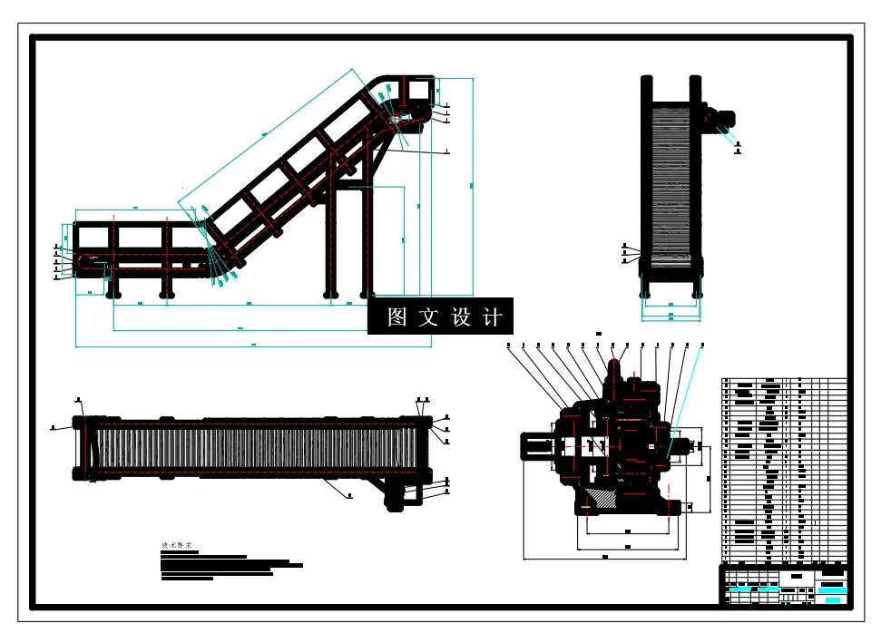
CAD版本图纸,共12张

摘 要
本文设计了一种带自动张紧装置的链式输送机,主要用于回收各类卷状、团状、块状切割废铁,以及铜屑、铝屑、不锈钢屑等非磁性金属废料。该输送机采用链条传动结构,通过自动张紧装置实时调整链条松紧度,确保运行平稳,减少磨损和跳链风险。整体结构包括驱动装置、输送链板、张紧机构及机架等部分,其中张紧装置采用气缸张紧装置,可自适应链条伸长,提高设备可靠性和寿命。本设计通过优化链轮齿形和链板布局提升承载能力与耐磨性。该输送机结构紧凑,维护方便;与传统输送机相比,本设计具有张力自动调节、维护成本低等优势,可有效解决人工频繁调整链条的问题。适用于钢铁加工、金属回收等行业,具有较高的实用性和经济价值。
关键词:链式输送机;自动张紧装置;废料回收;结构设计;张力调节
目 录
第1章 绪论 1
1.1 研究背景 1
1.2 研究内容 1
1.3 拟解决的问题和采用的研究手段 1
1.4 研究技术方案 2
第2章 整体设计方案 3
2.1 设计课题 3
2.2 设计的功能 3
2.3 具体方案的选择 5
第3章 具体机构的设计与计算 7
3.1 总体方案的确定 7
3.2 电机、减速机的选择 8
3.3 驱动链设计计算 9
3.4 输送链传动设计计算 12
3.5 齿轮构造设计 14
3.6 刮板链设计 18
3.7 链轮轴的设计 20
3.7.1 各轴运动与动力参数 20
3.7.2 轴4构造设计计算 21
3.7.3 轴5的设计计算 23
3.7.4 轴6的设计计算 24
3.7.5 轴6的校核 25
3.8 轴承的校核 27
3.9 键的选择和校核 28
第4章 张紧装置设计 29
4.1 张紧装置的作用及组成 29
4.2 张紧装置方案选择 30
4.3 气缸选择 34
4.4 控制硬件选择 36
结 论 58
总结与体会 60
致 谢 62
参考文献 63
温馨提示:
1、题目前面的备注【字母数字编号】为本站整理分类的编号,与课题内容无关,请选题时忽视;
2、若题目上备注三维,则表示文件里包含三维源文件,由于三维组成零件数量较多,为保证预览截图的简洁性,本站将三维文件夹进行了打包。三维及CAD预览截图,均为本站电脑打开软件进行截图的,保证能够打开,下载原件超高清,下载后解压即可;
3、本站所有资源如无特殊说明,都需要本地电脑安装Office2007。图纸软件为AutoCAD,PROE,UG,SolidWorks,CATIA等;
4、本站所有图文资料仅供用户学习参考,不作为任何商用或其他用途;
5、本站不保证下载资源的准确性、安全性和完整性, 不包修改,不支持退换,同时也不承担用户因使用这些下载资源对自己和他人造成任何形式的伤害或损失;
6、 下载文件中如有侵权或不适当内容,请与我们联系,我们立即纠正。