

作品包括:
Word版说明书一份,70页,32000字左右.
CAD版本图纸共6张:
摘要
随着我国煤炭、冶金矿山向大型化发展,以大型破碎站为关键设备的半连续开采工艺得到了广泛的应用。而大型破碎站的主机设备一直依赖于欧、美发达国家的产品。因此,开发高效节能新型破碎设备、替代进口、满足国内大型矿山的需要势在必行。
本文对差动分级齿辊式破碎机的原理、结构进行了概括介绍,重点围绕4000t/h差动分级齿辊式破碎机的研制、开发。传统破碎机依靠工作部件运动时施加与被破碎物料上的冲击压力实现破碎,效率低、能耗高、机器笨重,这些缺点限制了破碎机破碎能力的提高。为了提高破碎机的破碎能力,研制了一种差动分级齿辊式破碎机。介绍了该破碎机的工作原理、结构组成和技术特点。
我国大型露天煤矿可移式破碎站始于90年代。其破碎性能仅能满足煤及较软剥离物的破碎,使用受到了限制,不能满足矿山使用要求。而本论文研究的高效、节能差动分级齿辊式破碎机由于其结构上独特的优点,使得生产能力大、破碎硬度高、破碎比大、排料粒度均匀、过粉碎小,同时,该破碎机具有分级破碎的能力。因此,是一种发展前途广阔的高效破碎设备。
关键词:差动分级; 齿辊式破碎机; 分级破碎; 结构; 工作原理
目 录
第一章 绪论 1
1.1煤用破碎机的国内外技术发展及现状 1
1.2选题的目的和意义 6
1.3新型双齿辊破碎机开发的意义 7
1.4新型双齿辊破碎机发展综述 8
1.4.1露天矿破碎煤和岩石的破碎机技术发展现状 8
1.4.2新型双齿辊破碎机技术发展趋势 9
第二章 总体方案的确定 10
2.1设计要求 10
2.2参数的选取 10
2.3方案确定 10
第三章 差动分级齿辊式破碎机破碎机理的研究 12
3.1差动分级齿辊式破碎机的用途、结构组成及基本原理 12
3.1.1用途及基本原理 12
3.1.2结构组成及特点 12
3.2差动分级齿辊式破碎机的破碎机理 13
3.3差动分级齿辊式破碎机所采用的破碎理论 15
3.4齿形结构、齿的布置形式及制造材料 16
3.4.1齿形结构及其与产品粒度的关系 16
3.4.2齿的布置形式及其与产品粒度的关系 17
3.4.3制造破碎齿的材料 18
第四章 差动分级齿辊式破碎机的总体设计 19
4.1参数理论计算分析 19
4.1.1 4000吨差动分级齿辊式破碎机破碎能力的估算 19
4.1.2 4000吨差动分级齿辊式破碎机破碎功率的估算 20
4.1.3 4000吨差动分级齿辊式破碎机破碎动力源选择 21
4.1.4液力偶合器的选型 21
4.1.5驱动滚轴筛以及高破碎辊运动的减速系统的选型 22
4.2主传动中及驱动低破碎辊运动减速系统的确定及设计 22
4.2.1减速器的选用 23
4.2.2总传动比及传动比分配 23
4.2.3减速器的设计 24
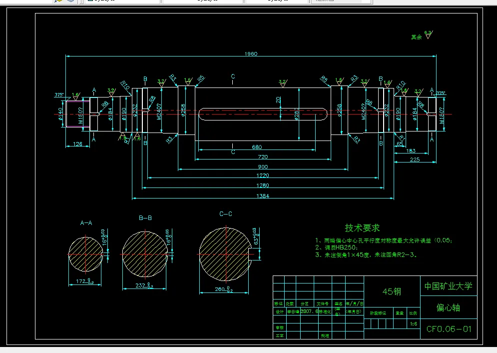
4.3主传动结构中破碎辊轴及偏心轴的结构设计 44
4.4差动分级齿辊式破碎机颚板的材质及选择 46
4.4.1颚式破碎机的工作原理 46
4.4.2颚板磨损机制 47
4.4.3颚板材质 48
4.4.4颚板材质选择的几点建议 49
第五章 筛分设备的分类、用途、筛面及有关设计 50
5.1筛分设备分类 50
5.2筛分设备的用途 50
5.3筛分设备的筛面 51
5.4滚轴筛结构中闭式齿轮传动的设计 52
5.5滚轴筛辊轴的结构设计及有关参数计算 55
5.5.1最小直径的确定 56
5.5.2滚轴筛辊轴的强度校核 57
5.2.3滚轴筛辊轴的轴承校核 60
第六章 破碎物料对筛分、破碎过程的影响 62
6.1影响筛分过程的因素 62
6.1.1煤的水分对筛分过程的影响 62
6.1.2煤的粒度对筛分的影响 63
6.1.3筛孔尺寸和形状的影响 63
6.1.4筛面长度和宽度 63
6.2入料粒度组成对破碎效果的影响 64
6.3入料水分对破碎效果的影响 64
第七章 破碎机械的操作和维修 65
7.1破碎机械的操作 65
7.2破碎机械的维修 65
第八章 润滑和密封 66
8.1减速器的润滑与密封 66
8.2破碎机的润滑与密封 66
8.2.1滚动轴承的润滑和密封 66
8.2.2破碎机所选用的轴承 67
总 结 68
参考文献 69
致 谢 70
温馨提示:
1、题目前面的备注【字母数字编号】为本站整理分类的编号,与课题内容无关,请选题时忽视;
2、若题目上备注三维,则表示文件里包含三维源文件,由于三维组成零件数量较多,为保证预览截图的简洁性,本站将三维文件夹进行了打包。三维及CAD预览截图,均为本站电脑打开软件进行截图的,保证能够打开,下载原件超高清,下载后解压即可;
3、本站所有资源如无特殊说明,都需要本地电脑安装Office2007。图纸软件为AutoCAD,PROE,UG,SolidWorks,CATIA等;
4、本站所有图文资料仅供用户学习参考,不作为任何商用或其他用途;
5、本站不保证下载资源的准确性、安全性和完整性, 不包修改,不支持退换,同时也不承担用户因使用这些下载资源对自己和他人造成任何形式的伤害或损失;
6、 下载文件中如有侵权或不适当内容,请与我们联系,我们立即纠正。