欢迎来到龙图网在线图文分享平台-CAD图纸,设计说明书,工业设计3D模型,三维软件下载! 客服QQ:2363701252
热搜: 工艺夹具 模具设计 数控编程 土木工程 3D模型

Z2619-侧装式垃圾车机械手设计【含三维图】 下载积分:120 资料编号: Z2619

1.打开支付宝或者微信扫描二维码。
2.填写金额:120 
3.添加备注,填写资料编号:
资料编号: Z2619
4.支付成功后,请发资料编号到邮箱:jxsj168@qq.com
会有专人在15分钟内把资料发到您邮箱
备注:如果付款忘记填写资料编号,则发邮件时附带您的交易明细截图即可。
请耐心等待,如超过30分钟还没收到,请联系客服QQ:2363701252

作品描述

作品包括:

Word设计说明书1份,共40页,约14000字

CAD版本图纸,共8张

stp三维总图一份

Z2619-侧装式垃圾车机械手设计【含三维图】

摘要

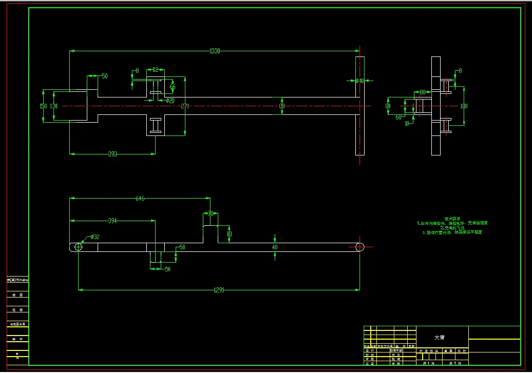
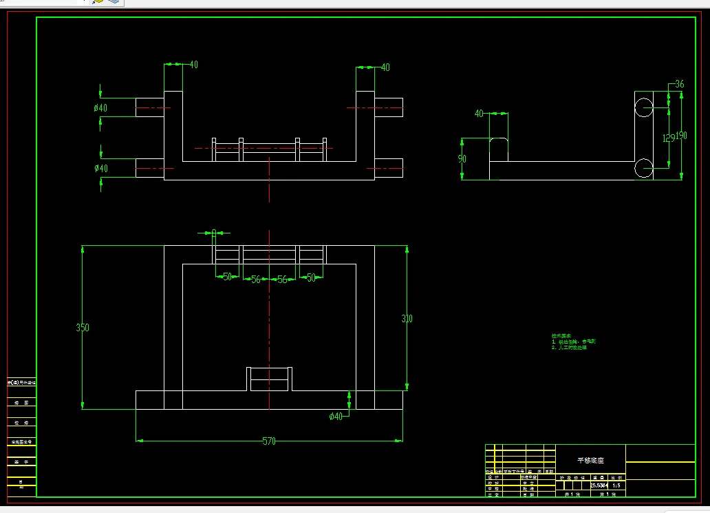
此次毕设的主要课题是对垃圾清理车辆上的倾倒垃圾机械手装置的研究与开发,,旨在提升生活的废弃物的高效搬运能力。这个倾倒垃圾机械手装置被安置在了垃圾清理车辆的一侧并深入到车内,这样可以减小车厢的宽度及翻转扭矩,它的优势包括构造简洁且制造费用较低,适合装载各种类型的生活或餐饮垃圾,能有效地执行对垃圾桶的精准捕捉和倾倒任务,从而降低了垃圾倾倒过程中的溢散情况,有助于提升垃圾分类收集的作业效益,这一种垃圾箱倾倒机器人的使用,显著增强了环境卫生服务的效果,同时也减轻了人力操作的繁琐性险。

首先,本文对全球垃圾清运车的现行技术方案进行了深入探讨,识别出当前国内外垃圾清运车倾倒垃圾机械手在处理垃圾时所存在的问题和不足,并提出了有效的改良策略,从而完成了设备整体的设计。对垃圾箱倾倒机械手设计包括手部相关零件、翻转机构和升降机构等部分的设计与计算。

关键词:垃圾箱倾倒机械手;翻转机构;升降机构;机械结构设计

目 录

摘  要 2

ABSTRACT 3

目 录 1

第1章  绪论 3

1.1  研究背景及意义 3

1.2  国内外研究现状 3

1.2.1  国外研究现状 3

1.2.2  国内研究现状 7

第2章 机械手整体方案设计分析 9

2.1  机械手功能需求分析 9

2.2  机械手机构分析 9

2.2.1  执行机构 9

2.2.2  驱动系统 9

2.3  末端执行机构方案分析 11

2.3.1  方案设计一 11

2.3.2  方案设计二 12

第3章 倾倒机械手结构设计 13

3.1  设计要求 13

3.2 总体结构设计 14

第4章 机械手末端执行机构设计 15

4.1  手部相关零件的设计 15

4.1.1  手部驱动力的计算 15

4.1.2  夹紧气缸的设计 16

4.1.3  滚珠丝杆设计 19

4.2  翻转机构结构设计 20

4.3  升降机构设计计算 22

第5章 仿真分析 26

5.1 仿真工具 26

5.2 仿真过程 26

5.3 仿真结果 26

5.4 结构强度与稳定性分析 27

5.4.1大臂静力学分析 27

5.4.2 小臂静力学及模态分析 29

5.4.3 底座的模态分析 31

结论 34

参考文献 35

致谢 37

温馨提示:

1、题目前面的备注【字母数字编号】为本站整理分类的编号,与课题内容无关,请选题时忽视;

2、若题目上备注三维,则表示文件里包含三维源文件,由于三维组成零件数量较多,为保证预览截图的简洁性,本站将三维文件夹进行了打包。三维及CAD预览截图,均为本站电脑打开软件进行截图的,保证能够打开,下载原件超高清,下载后解压即可;

3、本站所有资源如无特殊说明,都需要本地电脑安装Office2007。图纸软件为AutoCAD,PROE,UG,SolidWorks,CATIA等;

4、本站所有图文资料仅供用户学习参考,不作为任何商用或其他用途;
5、本站不保证下载资源的准确性、安全性和完整性, 不包修改,不支持退换,同时也不承担用户因使用这些下载资源对自己和他人造成任何形式的伤害或损失;

6、 下载文件中如有侵权或不适当内容,请与我们联系,我们立即纠正。


线

Z2619-侧装式垃圾车机械手设计【含三维图】 下载积分:120 资料编号:Z2619

作品描述

作品包括:

Word设计说明书1份,共40页,约14000字

CAD版本图纸,共8张

stp三维总图一份

Z2619-侧装式垃圾车机械手设计【含三维图】

摘要

此次毕设的主要课题是对垃圾清理车辆上的倾倒垃圾机械手装置的研究与开发,,旨在提升生活的废弃物的高效搬运能力。这个倾倒垃圾机械手装置被安置在了垃圾清理车辆的一侧并深入到车内,这样可以减小车厢的宽度及翻转扭矩,它的优势包括构造简洁且制造费用较低,适合装载各种类型的生活或餐饮垃圾,能有效地执行对垃圾桶的精准捕捉和倾倒任务,从而降低了垃圾倾倒过程中的溢散情况,有助于提升垃圾分类收集的作业效益,这一种垃圾箱倾倒机器人的使用,显著增强了环境卫生服务的效果,同时也减轻了人力操作的繁琐性险。

首先,本文对全球垃圾清运车的现行技术方案进行了深入探讨,识别出当前国内外垃圾清运车倾倒垃圾机械手在处理垃圾时所存在的问题和不足,并提出了有效的改良策略,从而完成了设备整体的设计。对垃圾箱倾倒机械手设计包括手部相关零件、翻转机构和升降机构等部分的设计与计算。

关键词:垃圾箱倾倒机械手;翻转机构;升降机构;机械结构设计

目 录

摘  要 2

ABSTRACT 3

目 录 1

第1章  绪论 3

1.1  研究背景及意义 3

1.2  国内外研究现状 3

1.2.1  国外研究现状 3

1.2.2  国内研究现状 7

第2章 机械手整体方案设计分析 9

2.1  机械手功能需求分析 9

2.2  机械手机构分析 9

2.2.1  执行机构 9

2.2.2  驱动系统 9

2.3  末端执行机构方案分析 11

2.3.1  方案设计一 11

2.3.2  方案设计二 12

第3章 倾倒机械手结构设计 13

3.1  设计要求 13

3.2 总体结构设计 14

第4章 机械手末端执行机构设计 15

4.1  手部相关零件的设计 15

4.1.1  手部驱动力的计算 15

4.1.2  夹紧气缸的设计 16

4.1.3  滚珠丝杆设计 19

4.2  翻转机构结构设计 20

4.3  升降机构设计计算 22

第5章 仿真分析 26

5.1 仿真工具 26

5.2 仿真过程 26

5.3 仿真结果 26

5.4 结构强度与稳定性分析 27

5.4.1大臂静力学分析 27

5.4.2 小臂静力学及模态分析 29

5.4.3 底座的模态分析 31

结论 34

参考文献 35

致谢 37

温馨提示:

1、题目前面的备注【字母数字编号】为本站整理分类的编号,与课题内容无关,请选题时忽视;

2、若题目上备注三维,则表示文件里包含三维源文件,由于三维组成零件数量较多,为保证预览截图的简洁性,本站将三维文件夹进行了打包。三维及CAD预览截图,均为本站电脑打开软件进行截图的,保证能够打开,下载原件超高清,下载后解压即可;

3、本站所有资源如无特殊说明,都需要本地电脑安装Office2007。图纸软件为AutoCAD,PROE,UG,SolidWorks,CATIA等;

4、本站所有图文资料仅供用户学习参考,不作为任何商用或其他用途;
5、本站不保证下载资源的准确性、安全性和完整性, 不包修改,不支持退换,同时也不承担用户因使用这些下载资源对自己和他人造成任何形式的伤害或损失;

6、 下载文件中如有侵权或不适当内容,请与我们联系,我们立即纠正。

关于我们 网站申明 友情链接 联系我们

扫一扫,联系微信客服


Copyright @ 龙图网版权所有  网站客服QQ:2363701252  微信客服:a58cad

皖ICP备2021006205号-2