

作品包括
Word版说明书1份,共36页,约7500字
任务书一份
开题报告一份
外文翻译一份
CAD版本图纸,共4张

摘 要
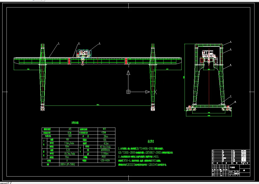
随着我国制造业的发展,门式起重机越来越多的应用到工业生产当中。本次设计就是对中等吨位的门式起重机进行设计,主要设计内容是A型门式起重机的设计。本设计是在草稿纸上计算以及反复设计,再采用许用应力法等对门式起重机进行设计。设计过程先是进行起重机结构的设计及计算,再用经验公式来设计桥架结构。用门式起重机各结构尺寸数据对起重机的强度、疲劳强度、稳定性、刚度进行粗略的校核计算,待以上因素都达到材料的许用要求后,画出起门机结构总图。然后计算出主梁和支腿的自重载荷、垂直载荷,再进行主梁强度和刚度的精确校核计算。若未通过,再重复上述步骤,直到通过。由于主梁的初步校核是在草稿中列出,在设计说明书中不予记录,仅记载主梁的精校过程。设计中参考了各种资料, 运用各种途径, 努力利用各种条件来完成此次设计。 本设计通过反复斟酌各种设计方案, 认真讨论, 不断反复校核, 力求设计合理,通过不断的计算以及参考前人的先进经验, 力求有所创新。
关键词:A型门式起重机;结构;校核
目 录
1 绪论 1
2 总体设计 2
2.1 32/5门式起重机设计参数 2
2.2 整体尺寸 2
3 主梁设计计算 3
3.1 主梁几何尺寸和性质 3
3.2 主梁参数的确定 3
3.2.1 主梁尺寸 3
3.2.2.截面几何性质 3
3.3 主梁载荷计算 5
3.3.1 静载荷计算 5
3.3.2 移动载荷计算 5
3.3.3 小车制动时的惯性力 6
3.3.4 大车制动时的惯性力 6
3.3.5 风载荷计算 6
3.3.6 主梁扭转载荷 7
3.4 垂直平面内的主梁内力计算 8
3.4.1 主梁均布载荷引起的内力 8
3.4.2 移动载荷引起的主梁内力 9
3.5 水平平面内的主梁内力计算 11
3.5.1 小车位于跨中时 11
3.5.2 小车位于悬臂端时 11
4 支腿及下横梁设计计算 12
4.1 支腿几何尺寸和性质 12
4.2 下横梁几何尺寸和性质 12
4.3 支腿参数确定 12
4.4 门架平面内的内力计算 13
4.4.1 由主梁均布载荷产生的内力 13
4.4.2 由移动载荷产生的内力 13
4.4.3 由风载荷产生的内力 13
4.5 支腿平面内的支腿内力计算 14
4.5.1 垂直载荷作用在支腿平面 14
4.5.2 水平载荷作用在支腿顶部 15
4.5.3 风载荷载荷作用在支腿平面 15
4.5.4 马鞍自重载荷作用在支腿平面 15
5 验算及校核 17
5.1 主梁验算 17
5.1.1 弯曲应力验算 17
5.1.2 主梁疲劳强度校核 19
5.1.3 主梁稳定性校核 19
5.1.4 主梁拱度验算 23
5.2 支腿验算 24
5.2.1 支腿强度验算 24
5.2.2 支腿稳定性验算 26
5.3 下横梁稳定性验算 27
5.4 主梁接头处螺栓连接强度校核 28
5.5 整机抗倾覆性计算 29
参考文献 30
致谢 31
温馨提示:
1、题目前面的备注【字母数字编号】为本站整理分类的编号,与课题内容无关,请选题时忽视;
2、若题目上备注三维,则表示文件里包含三维源文件,由于三维组成零件数量较多,为保证预览截图的简洁性,本站将三维文件夹进行了打包。三维及CAD预览截图,均为本站电脑打开软件进行截图的,保证能够打开,下载原件超高清,下载后解压即可;
3、本站所有资源如无特殊说明,都需要本地电脑安装Office2007。图纸软件为AutoCAD,PROE,UG,SolidWorks,CATIA等;
4、本站所有图文资料仅供用户学习参考,不作为任何商用或其他用途;
5、本站不保证下载资源的准确性、安全性和完整性, 不包修改,不支持退换,同时也不承担用户因使用这些下载资源对自己和他人造成任何形式的伤害或损失;
6、 下载文件中如有侵权或不适当内容,请与我们联系,我们立即纠正。