

作品包括:
说明书1份,共78页,约22000字左右
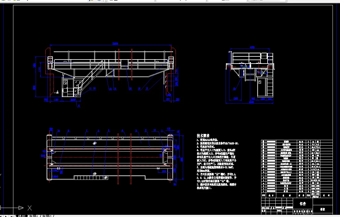
CAD版本本图纸,共5张
摘 要
起重机中种数量最多,在大小工厂之中均有应用的就是小吨位的起重机,小吨位的桥式起重机广泛的用于轻量工件的吊运,在我国机械工业中占有十分重要的地位。但是,我国现在应用的各大起重机还是仿造国外落后技术制造出来的,而且已经在工厂内应用了多年,有些甚至还是七八十年代的产品,无论在质量上还是在功能上都满足不了日益增长的工业需求。如何设计使其成本最低化,布置合理化,功能现代化是我们研究的课题。
双梁箱型桥式起重机,是分别驱动起重机,额定起重量为10吨,起升高度为12m,跨度为22.5m,整机高度受到厂房的限制。
本设计采用许用应力法以及计算机辅助设计方法对桥式起重机桥架金属结构进行设计。设计过程先用估计的桥式起重机各结构尺寸数据对起重机的强度、疲劳强度、稳定性、刚度进行粗略的校核计算,待以上因素都达到材料的许用要求后,画出桥架结构图。然后计算出主梁和端梁的自重载荷,再用此载荷进行桥架强度和刚度的精确校核计算。
关键词:起重机 大车运行机构 主端梁
目录
第1章 前言•••••••••••••••••••••••••••••••••••••••••••••••••••••••••••••••••••••••••••••••••1
1.1 起重机的基础知识•••••••••••••••••••••••••••••••••••••••••••••••••••••••••••••••••••1
1.2 桥式起重机的基础知识••••••••••••••••••••••••••••••••••••••••••••••••••••••••••••••1
1.3 桥式起重机的一般构造••••••••••••••••••••••••••••••••••••••••••••••••••••••••••••••5
1.4 起重机各部分的功能及动作原理•••••••••••••••••••••••••••••••••••••••••••••••••••6
1.5 桥式起重机的发展趋势••••••••••••••••••••••••••••••••••••••••••••••••••••••••••••••9
第2章 总体设计••••••••••••••••••••••••••••••••••••••••••••••••••••••••••••••••••••••••12
2.1 概述••••••••••••••••••••••••••••••••••••••••••••••••••••••••••••••••••••••••••••••••••12
2.2 设计任务•••••••••••••••••••••••••••••••••••••••••••••••••••••••••••••••••••••••••••••12
2.3 设计目的•••••••••••••••••••••••••••••••••••••••••••••••••••••••••••••••••••••••••••••13
2.4 主梁为桁架结构与箱形结构的比较•••••••••••••••••••••••••••••••••••••••••••••••14
2.5 传动方案的比较•••••••••••••••••••••••••••••••••••••••••••••••••••••••••••••••••••••14
2.6 基本参数的选择•••••••••••••••••••••••••••••••••••••••••••••••••••••••••••••••••••••16
2.7 起重机的工作级别••••••••••••••••••••••••••••••••••••••••••••••••••••••••••••••••••17
2.8 计算载荷•••••••••••••••••••••••••••••••••••••••••••••••••••••••••••••••••••••••••••••18
2.9 材料••••••••••••••••••••••••••••••••••••••••••••••••••••••••••••••••••••••••••••••••••20
第3章 主梁计算•••••••••••••••••••••••••••••••••••••••••••••••••••••••••••••••••••••••••21
3.1说明•••••••••••••••••••••••••••••••••••••••••••••••••••••••••••••••••••••••••••••••••••21
3.2主梁断面几何特性•••••••••••••••••••••••••••••••••••••••••••••••••••••••••••••••••••22
3.3主梁载荷的计算•••••••••••••••••••••••••••••••••••••••••••••••••••••••••••••••••••••24
3.4主梁载荷组合及应力的计算••••••••••••••••••••••••••••••••••••••••••••••••••••••••30
3.5刚度计算•••••••••••••••••••••••••••••••••••••••••••••••••••••••••••••••••••••••••••••32
3.6主梁稳定性验算•••••••••••••••••••••••••••••••••••••••••••••••••••••••••••••••••••••34
3.7小车钢轨应力计算•••••••••••••••••••••••••••••••••••••••••••••••••••••••••••••••••••37
3.8主梁翼缘板与腹板联接焊缝计算•••••••••••••••••••••••••••••••••••••••••••••••••••37
3.9垂直加劲板验算••••••••••••••••••••••••••••••••••••••••••••••••••••••••••••••••••••••38
第4章 端梁计算•••••••••••••••••••••••••••••••••••••••••••••••••••••••••••••••••••••••••42
4.1端梁构造及简图•••••••••••••••••••••••••••••••••••••••••••••••••••••••••••••••••••••42
4.2端梁断面尺寸及几何特性•••••••••••••••••••••••••••••••••••••••••••••••••••••••••••49
4.3强度校核••••••••••••••••••••••••••••••••••••••••••••••••••••••••••••••••••••••••••••••53
4.4端梁接头部分计算•••••••••••••••••••••••••••••••••••••••••••••••••••••••••••••••••••55
第5章 大车运行机构设计••••••••••••••••••••••••••••••••••••••••••••••••••••••••••••61
5.1主要参数与机构的布置简图•••••••••••••••••••••••••••••••••••••••••••••••••••••••••61
5.2选择车轮与轨道,并验算其强度•••••••••••••••••••••••••••••••••••••••••••••••••••61
5.3电动机的选择••••••••••••••••••••••••••••••••••••••••••••••••••••••••••••••••••••••••63
5.4制动器的选择••••••••••••••••••••••••••••••••••••••••••••••••••••••••••••••••••••••••69
5.5减速器强度验算••••••••••••••••••••••••••••••••••••••••••••••••••••••••••••••••••••••71
5.6联轴器的选择••••••••••••••••••••••••••••••••••••••••••••••••••••••••••••••••••••••••72
5.7车轮计算••••••••••••••••••••••••••••••••••••••••••••••••••••••••••••••••••••••••••••••73
5.8车轮轴的计算••••••••••••••••••••••••••••••••••••••••••••••••••••••••••••••••••••••••75
第6章 毕业设计小节•••••••••••••••••••••••••••••••••••••••••••••••••••••••••••••••••••80
参考文献•••••••••••••••••••••••••••••••••••••••••••••••••••••••••••••••••••••••••••••••••••82
温馨提示:
1、题目前面的备注【字母数字编号】为本站整理分类的编号,与课题内容无关,请选题时忽视;
2、若题目上备注三维,则表示文件里包含三维源文件,由于三维组成零件数量较多,为保证预览截图的简洁性,本站将三维文件夹进行了打包。三维及CAD预览截图,均为本站电脑打开软件进行截图的,保证能够打开,下载原件超高清,下载后解压即可;
3、本站所有资源如无特殊说明,都需要本地电脑安装Office2007。图纸软件为AutoCAD,PROE,UG,SolidWorks,CATIA等;
4、本站所有图文资料仅供用户学习参考,不作为任何商用或其他用途;
5、本站不保证下载资源的准确性、安全性和完整性, 不包修改,不支持退换,同时也不承担用户因使用这些下载资源对自己和他人造成任何形式的伤害或损失;
6、 下载文件中如有侵权或不适当内容,请与我们联系,我们立即纠正。