

作品包括
Word版说明书一份,19页,约8000字
CAD版本图纸,共16张
摘 要
随着先进制造技术的发展和计算机技术的广泛应用,使传统的模块化设计技术发生了深刻的变化。模块化是现代制造业发展的要求,是对传统标准化形式的发展。
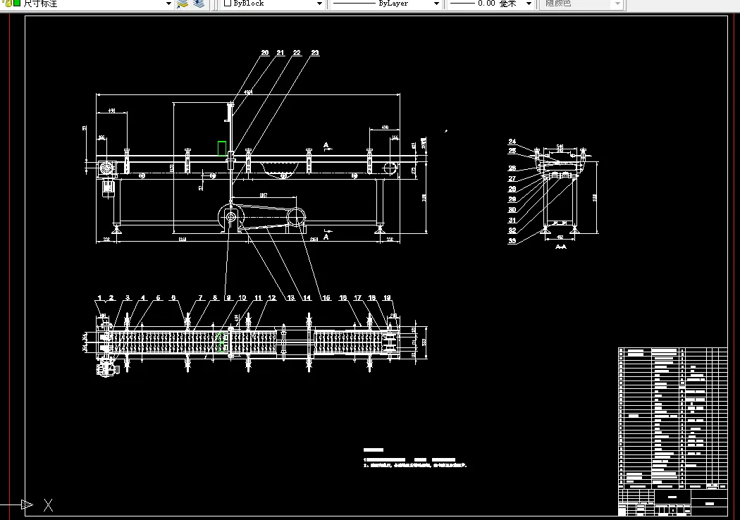
模块化模拟生产系统(MPS)是我校自动化专业高级维修电工进行PLC编程与操作以及PLC联网控制技能训练的教学设备。该系统由上料检测站、搬运站、加工站、安装站、安装搬运站、分类站等六个部分组成。每一站都有一套独立的PLC控制系统,都能单独完成一个动作过程,将各站按一定顺序联接在一起后,就组成了一个模块化生产系统。本次毕业设计的任务就是完成六个模块的机械装置和气动回路的设计。
从模块化制造概念的形成可以看出,模块化制造是符合当今制造业发展潮流、具有广泛实践基础、可具体执行和操作的一种实用型先进制造模式和技术体系。模块化制造系统是根据特定模块化产品的制造要求设计而成的:产品性能和质量提高的周期缩短,频率提高,快速响应市场需求;与其相适应的生产系统易于重组,以适应产品的快速变换。满足这两个基本要求的实现条件就是产品结构的模块化和制造系统装备的模块化。
该系统的设计特点是模块化,结构简单,模拟性强,操作简便。各自有一套独立的功能。各模块之间又能相互联系,构成一个完整的“系统工程”。是一台较理想的理论知识和技能训练相结合的教学设备,非常适合高等职业技术学校进行模块化教学。
该设计课题为多人分做,本人的设计重点是加工站的机械装置和气动回路部分。
目 录
第1章 MPS总体方案设计概述••••••••••••••••••••••••••••(01)
第2章 加工站设计说明•••••••••••••••••••••••••••••••••(04)
2.1功能介绍••••••••••••••••••••••••••••••••••••••••••••(04)
2.2方案设计••••••••••••••••••••••••••••••••••••••••••••(04)
2.3气路的一般分析••••••••••••••••••••••••••••••••••••••(04)
2.4工作桌面介绍••••••••••••••••••••••••••••••••••••••••(05)
2.5工作过程••••••••••••••••••••••••••••••••••••••••••••(06)
2.6选择电动机M1•••••••••••••••••••••••••••••••••••••••(08)
2.7选择气缸型号••••••••••••••••••••••••••••••••••••••••(10)
2.8选用材料的特性与热处理••••••••••••••••••••••••••••••(10)
第3章 结论••••••••••••••••••••••••••••••••••••••••••••(12)
谢辞••••••••••••••••••••••••••••••••••••••••••••••••••••(13)
参考文献••••••••••••••••••••••••••••••••••••••••••••••••(14)
温馨提示:
1、题目前面的备注【字母数字编号】为本站整理分类的编号,与课题内容无关,请选题时忽视;
2、若题目上备注三维,则表示文件里包含三维源文件,由于三维组成零件数量较多,为保证预览截图的简洁性,本站将三维文件夹进行了打包。三维及CAD预览截图,均为本站电脑打开软件进行截图的,保证能够打开,下载原件超高清,下载后解压即可;
3、本站所有资源如无特殊说明,都需要本地电脑安装Office2007。图纸软件为AutoCAD,PROE,UG,SolidWorks,CATIA等;
4、本站所有图文资料仅供用户学习参考,不作为任何商用或其他用途;
5、本站不保证下载资源的准确性、安全性和完整性, 不包修改,不支持退换,同时也不承担用户因使用这些下载资源对自己和他人造成任何形式的伤害或损失;
6、 下载文件中如有侵权或不适当内容,请与我们联系,我们立即纠正。