

作品包括
说明书一份,17500字
CAD图纸,11张
任务书
I、毕业设计(论文)题目:工具锤装柄机液压系统设计
II、毕 业设计(论文)使用的原始资料(数据)及设计技术要求:
设计技术要求:
①工具锤装柄机公称力 25 KN
②液压系统最大工作压力 8 Mpa
③滑块行程 125 MM
④压头下行速度 45 mm/s
⑤压头上行速度 130 mm/s
III、毕 业设计(论文)工作内容及完成时间:
1、收集有关资料,写出开题报告 2周(3.17-3.30)
2、系统方案及液压系统原理图设计 2 周(4.6-4.20)
3、油压缸设计计算 4周(4.21-5.18)
4、系统元件选择计算 3周(5.19-6.8)
5、撰写论文 2周(6.9-6.20)
Ⅳ 、主 要参考资料:
[1] 黎启柏,液压元件手册,冶金工业出版社,2000
[2] 成大光,机械设计手册,化学工业出版社,1993
[3]姚永明主编 .非标准设备手册.上交大版,99.12 第一版
[4] 章宏甲、黄谊,液压传动,机械工业出版社,1993
[5]雷天觉主编. 液压设计手册(第七版). 机械工业出版社, 2006年6月,第七版
[6] Theissen H. Simnlation Von,Hydraulischen Systement mit langen Rohrleitungen,O+P.30,Nr3.1986
工具锤装柄机液压系统设计
摘 要:如今,液压传动是一门比较成熟的技术,已广泛应用于机械制造、工程机械、农业机械、汽车制造以及锻压等机械行业。而其在实现高压、高速、大功率、高效率、低噪声、经久耐用,高度集成化等各项要求方面的显著优势使得这门技术有着更加广阔的发展前景。
本文在对液压传动发展和液压传动的工作原理作了一个简要说明的同时,更对液压技术在锻压机械中的一个典型应用——工具锤装柄机的液压系统进行了全面的设计计算。其内容主要包括:
Ⅰ 液压传动系统方案的分析、比较和确定;
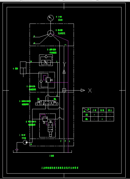
Ⅱ 确定并绘制系统原理图;
Ⅲ 集成块单元回路图的绘制;
Ⅳ 液压系统中各主要参数的计算、圆整及校核;
Ⅴ 各种液压元件的选择;
Ⅵ 设计并绘制以集成块联接方式而成的系统装配图;
在工具锤装柄机液压系统执行元件液压缸的设计中,利用在前文系统设计中所校核过的如活塞直径D(ΦAL)、活塞杆直径d(ΦMM)等参数,我们对液压油缸的各主要零部件进行了详细的结构设计,并绘制了它们的零件图及液压油缸装配图。
在本设计中,所有图纸均使用绘图软件AutoCAD绘制而成,使得图纸更加清晰,一目了然。
关键字:工具锤装柄机;液压系统设计;液压油缸;AutoCAD
目录
1、概述 1
1.1 液压传动发展概况 1
1.2 液压传动的工作原理及组成部分 1
1.2.1 液压传动的工作原理 1
1.2.2 液压传动的组成部分 2
1.3 液压传动的优缺点 3
2、液压系统设计 4
2.1 明确设计要求,制定基本方案 4
2.1.1 设计要求 4
2.1.2 制定液压系统基本方案 4
2.2 液压系统各液压元件的确定 6
2.2.1 液压介质的选择 6
2.2.2 拟定液压系统图 6
2.3 液压系统主要参数计算 8
2.3.1 选系统工作压力 8
2.3.2 液压缸主要参数的确定 8
2.3.3 液压缸强度校核 8
2.3.4 液压缸稳定性校核 10
2.3.5 计算液压缸实际所需流量 12
2.3.6 绘制液压缸工况图 14
2.4 液压阀的选择 15
2.4.1 液压阀的作用 15
2.4.2 液压阀的基本要求 15
2.4.3 液压阀的选择 15
34DF30-E10B-D 15
3 液压泵站及其辅助装置 16
3.1 液压泵站 16
3.1.1 液压泵站概述及液压泵站油箱容量系列标准 16
3.1.2 各系列液压泵站的简述 17
3.2 液压泵 18
3.2.1 液压泵的选择 18
3.2.2 液压泵装置 20
3.3 电动机功率的确定 21
3.4 液压管件的确定 22
3.4.1 油管内径确定 22
3.4.2 管接头 22
3.5 滤油器的选择 23
3.5.1 滤油器的作用及过滤精度 23
3.5.2 选用和安装 23
3.6 油箱及其辅件的确定 23
3.6.1 油箱 23
3.6.2 空气滤清器 26
3.6.3 油标 26
4 液压缸的设计计算 27
4.1 液压缸的基本参数的确定 27
4.2 液压缸主要零件的结构、材料及技术要求 27
4.2.1 缸体 27
4.3 缸盖 30
4.3.1 缸盖的材料 30
4.4 活塞 30
4.4.1 活塞与活塞杆的联接型式 30
4.4.2 活塞与缸体的密封 31
4.4.3 活塞的材料 31
4.4.4 活塞的技术要求 31
4.5 活塞杆 32
4.5.1 端部结构 32
4.5.2 端部尺寸 32
4.5.3 活塞杆结构 33
4.5.4 活塞杆材料 34
4.5.5 活塞杆的技术要求 34
4.6 活塞杆的导向、密封和防尘 34
4.6.1 导向套 34
4.6.2 杆的密封与防尘 35
4.7 液压缸的缓冲装置 35
4.8 液压缸的排气装置 35
4.9 液压缸安装联接部分的型式 36
4.9.1 液压缸进出油口的联接 36
4.9.2 液压缸的安装方式 36
结 论 37
致 谢 38
参 考 文 献 39
1、概述
1.1 液压传动发展概况
液压传动相对于机械传动来说是一门新技术,但如从17世纪中叶巴斯卡提出静压传递原理、18世纪末英国制成世界上第一台水压机算起,也已有二三百年历史了。近代液压传动在工业上的真正推广使用只是本世纪中叶以后的事,至于它和微电子技术密切结合,得以在尽可能小的空间内传递出尽可能大的功率并加以精确控制,更是近10年内出现的新事物。
本世纪的60年代后,原子能技术、空间技术、计算机技术(微电子技术)等的发展再次将液压技术推向前进,使它发展成为包括传动、控制、检测在内的一门完整的自动化技术,使它在国民经济的各方面都得到了应用。液压传动在某些领域内甚至已占有压倒性的优势,例如,国外今日生产的95%的工程机械、90%的数控加工中心、95%以上的自动线都采用了液压传动。因此采用液压传动的程度现在已成为衡量一个国家工业水平的重要标志之一。
当前,液压技术在实现高压、高速、大功率、高效率、低噪声、经久耐用、高度集成化等各项要求方面都取得了重大的进展,在完善比例控制、数字控制等技术上也有许多新成就。此外,在液压元件和液压系统的计算机辅助设计、计算机仿真和优化以及微机控制等开发性工作方面,更日益显示出显著的成绩。
我国的液压工业开始于本世纪50年代,其产品最初只用于机床和锻压设备,后来才用到拖拉机和工程机械上。自1964年从国外引进一些液压元件生产技术、同时进行自行设计液压产品以来,我国的液压件生产已从低压到高压形成系列,并在各种机械设备上得到了广泛的使用。80年代起更加速了对西方先进液压产品和技术的有计划引进、消化、吸收和国产化工作,以确保我国的液压技术能在产品质量、经济效益、人才培训、研究开发等各个方面全方位地赶上世界水平。
参 考 文 献
1.章宏甲,黄谊. 液压传动. 北京:机械工业出版社,1998,第1版
2.徐灏. 机械设计手册(第5卷). 北京:机械工业出版社,1992 ,第1版
3.佚名. GE系列液压阀. 上海:上海高行液压件长,2003
4.郑叔芳,吴晓琳. 机械工程测量学. 北京:科学出版社,1999,第1版
5.成大光. 机械设计手册. 北京:化学工业出版社,1993
6.黎启柏. 液压元件手册. 北京:冶金工业出版社,2000
温馨提示:
1、题目前面的备注【字母数字编号】为本站整理分类的编号,与课题内容无关,请选题时忽视;
2、若题目上备注三维,则表示文件里包含三维源文件,由于三维组成零件数量较多,为保证预览截图的简洁性,本站将三维文件夹进行了打包。三维及CAD预览截图,均为本站电脑打开软件进行截图的,保证能够打开,下载原件超高清,下载后解压即可;
3、本站所有资源如无特殊说明,都需要本地电脑安装Office2007。图纸软件为AutoCAD,PROE,UG,SolidWorks,CATIA等;
4、本站所有图文资料仅供用户学习参考,不作为任何商用或其他用途;
5、本站不保证下载资源的准确性、安全性和完整性, 不包修改,不支持退换,同时也不承担用户因使用这些下载资源对自己和他人造成任何形式的伤害或损失;
6、 下载文件中如有侵权或不适当内容,请与我们联系,我们立即纠正。