

作品包括:
Word版说明书1份,共23页,约8600字
CAD版本图纸,共3张
Proe三维图一份
摘 要
本文先对国内外电动助力转向系统(EPS)进行了解,然后对EPS的基本机构及工作原理进行了研究。在传统的机械转向系统上添加电子控制设备、传感器设备与转向助力系统等就构成了EPS。EPS拥有体积小、重量轻、结构简单、安装和维修方便、节能环保的优点,而且拥有突出的性能,能够跟着车速变化来进行调整转向助力大小取得不同的转向路感,可广泛应用于轿车、货车等许多车型,是现在汽车技术发展的研究热点和重点。本文的主要工作是对电动助力转向系统外拉杆的结构设计,并运用CAD和Pro/E对其进行了二维和三维设计。
关键词:电动助力转向;发展现状;外拉杆;CAD;Pro/E
目 录
摘 要 I
Abstract II
1 绪论 1
1.1 概述 1
1.2 国外EPS的发展现状 1
1.3 国内EPS的发展现状 2
1.4 EPS的优点 2
1.4.1 提高操纵轻便性和高速稳定性 2
1.4.2 节能环保 3
1.4.3 提供可变的转向助力特性使用范围广 3
1.4.4 提高主动安全性 3
1.5 EPS的发展趋势 3
1.5.1 转向器与电动机 3
1.5.2 控制理论 4
1.5.3 自动转向与全电动转向系统 4
2 电动助力系统的总体结构 6
2.1 电动助力系统的工作原理 6
2.2 电动助力系统的结构 6
2.2.1 机械式转向器 7
2.2.2 助力电机 7
2.2.3 传感器 8
2.2.4 减速机构 9
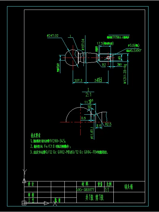
3 电动助力系统的外拉杆二维结构设计 10
3.1 球头销 10
3.2 左转向拉杆接头 11
3.3 左外拉杆组合 11
4 电动助力系统的外拉杆三维结构设计 13
4.1 球销 13
4.2 左转向拉杆接头 13
4.3 装配图 13
5 总结与展望 15
5.1 本文总结 15
5.2 本文展望 15
参考文献 16
致 谢 18
温馨提示:
1、题目前面的备注【字母数字编号】为本站整理分类的编号,与课题内容无关,请选题时忽视;
2、若题目上备注三维,则表示文件里包含三维源文件,由于三维组成零件数量较多,为保证预览截图的简洁性,本站将三维文件夹进行了打包。三维及CAD预览截图,均为本站电脑打开软件进行截图的,保证能够打开,下载原件超高清,下载后解压即可;
3、本站所有资源如无特殊说明,都需要本地电脑安装Office2007。图纸软件为AutoCAD,PROE,UG,SolidWorks,CATIA等;
4、本站所有图文资料仅供用户学习参考,不作为任何商用或其他用途;
5、本站不保证下载资源的准确性、安全性和完整性, 不包修改,不支持退换,同时也不承担用户因使用这些下载资源对自己和他人造成任何形式的伤害或损失;
6、 下载文件中如有侵权或不适当内容,请与我们联系,我们立即纠正。