

作品包括:
Word版说明书1份,共19页,约6700字
外文翻译一份
CAD版本图纸,共15张
摘 要
实验发现,在草坪跟根茎采集收获时,伴随着根茎尚有大量的泥土砂石被甩刀甩了上来。为了保证根茎采集收获的质量,必须在草坪根茎采集收获机上添加一个清选装置,即草坪根茎采集收获机的气吸输送装置。
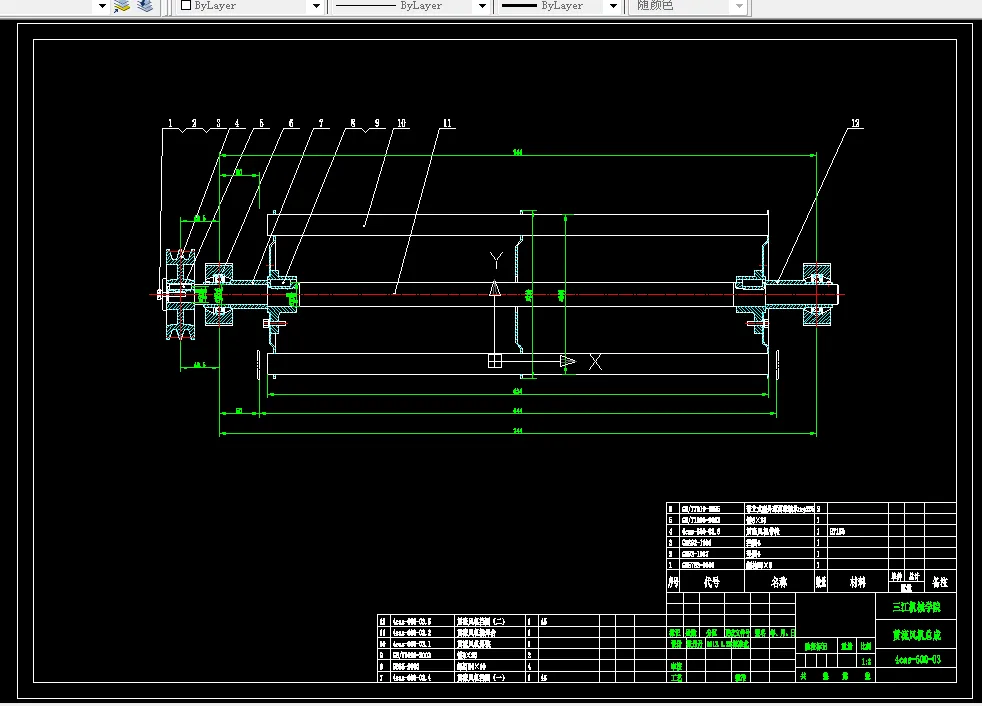
草坪根茎采集收获机的气吸输送装置主要包括两个部分,一部分是贯流风机,它利用叶轮的旋转,在进风口处形成一个负压。从而使质量较轻的根茎被吸上来。而把质量较重的泥土,砂石留在了筛板上。第二个部分是振动筛。它主要是利用其自身的振动,把存在其上的颗粒较小的泥土、砂石从筛孔中漏到地面上。
本文主要对贯流风机的几何参数和运动参数进行了分析、研究和设计,确定了其传动方案,并对贯流风机的轴进行了设计计算及校核。选择并校核了轴承和键。同时对振动筛进行了研究设计,确定了其几何参数及筛孔的分布情况。最后对贯流风机及振动筛进行了装配和布置。
关键词:贯流风机;振动筛;气吸输送装置
目 录
前言 1
第一章 总体方案设计 2
第二章 草坪根茎采集收获机气吸输送装置的设计计算 3
2.1总体设计 3
2.2贯流风机的设计计算 3
2.2.1贯流风机的设计原理 3
2.2.2贯流风机的计算公式 3
2.2.3 贯流风机参数的确定 4
2.2.4贯流风机叶片和轮辐的设计 5
2.2.5 贯流风机壳体的设计 5
2.2.6 贯流风机传动系的设计计算 6
2.2.7贯流风机的轴的设计计算及校核 9
2.2.8 轴承的选择和计算 11
2.2.9键的选择与校核 12
2.3 振动筛的设计计算 13
结束语 14
致谢 15
参考文献 16
温馨提示:
1、题目前面的备注【字母数字编号】为本站整理分类的编号,与课题内容无关,请选题时忽视;
2、若题目上备注三维,则表示文件里包含三维源文件,由于三维组成零件数量较多,为保证预览截图的简洁性,本站将三维文件夹进行了打包。三维及CAD预览截图,均为本站电脑打开软件进行截图的,保证能够打开,下载原件超高清,下载后解压即可;
3、本站所有资源如无特殊说明,都需要本地电脑安装Office2007。图纸软件为AutoCAD,PROE,UG,SolidWorks,CATIA等;
4、本站所有图文资料仅供用户学习参考,不作为任何商用或其他用途;
5、本站不保证下载资源的准确性、安全性和完整性, 不包修改,不支持退换,同时也不承担用户因使用这些下载资源对自己和他人造成任何形式的伤害或损失;
6、 下载文件中如有侵权或不适当内容,请与我们联系,我们立即纠正。