

作品包括:
Word版说明书1份,共39页,约12000字
CAD版本图纸,共5张
摘 要
高速火焰喷涂技术(HOVF)是一种可在零部件表面高效率地形成涂层的工艺方法,该方法具有火焰速度高、涂层结合强度高、致密性好、耐磨等优点。
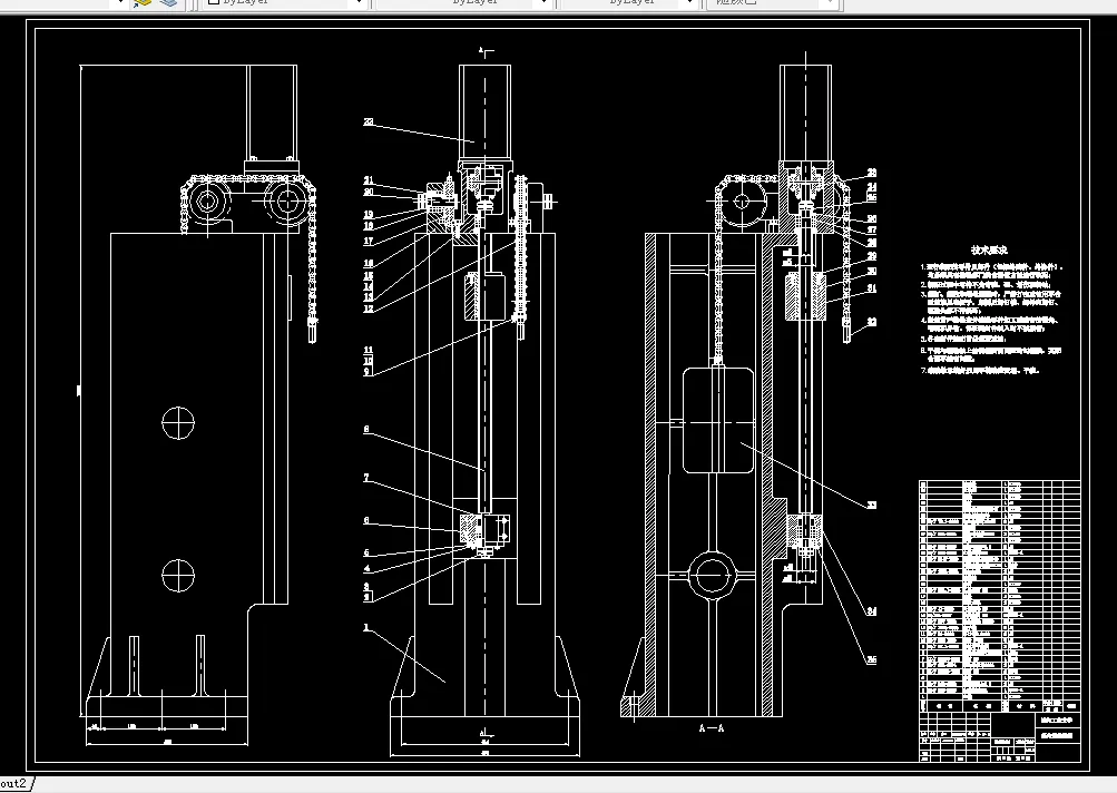
本课题主要是对立式高速火焰喷涂机床进行机械结构设计,依据技术要求,给出机床的总体设计方案,并完成包括进给机构及主要零部件等的绘制。整机主要包括横纵向进给机构、立柱、底座、工作台等主要部件。其中所有进给机构均采用滚珠丝杠螺母副进行传动,并由伺服电机进行驱动。喷枪安装在纵向工作台上,并采用重锤平衡机构保持平衡,使其升降轻便。
本文介绍了高速火焰喷涂机床的组成,全面阐述了高速火焰喷涂机床的结构及设计特点,论述了采用伺服电机和滚珠丝杠螺母副的优点。详细介绍了高速火焰喷涂机床的结构设计及其校核,另外汇总了有关技术参数。其中着重介绍了滚珠丝杠的原理及其选用原则,系统地对滚珠丝杠生产、应用等环节进行了介绍。包括种类选择、参数选择、精度选择、循环方式选择、与主机匹配的原则等。
关键词:热喷涂;高速火焰喷涂;滚珠丝杠;伺服电机
目录
摘 要 I
Abstract II
第1章 绪论 1
1.1 高速火焰喷涂简介 1
1.2 高速火焰喷涂的发展现状 1
1.3 立式高速火焰喷涂机床设计的选题意义 5
1.4 课题研究内容 6
1.5 本章小节 6
第2章 立式高速火焰喷涂机床的总体机械设计 7
2.1 机床的设计要求 7
2.2 设计方案 7
2.3 本章小节 9
第3章 进给伺服系统的设计与计算 10
3.1 进给伺服系统的设计要求 10
3.2 滚珠丝杠的特点 11
3.3 丝杠的计算 12
3.3.1 滚珠丝杠副的导程计算 12
3.3.2 滚珠丝杠副的载荷计算 13
3.3.3 确定允许最小螺纹低经 14
3.3.4 确定滚珠丝杠副得规格代号 15
3.4 伺服电机的选择 15
3.4.1 基本原则 15
3.4.2 额定转速的选择 16
3.4.3 惯量匹配 16
3.4.4 电机选择 17
3.3.5 惯量匹配验算 17
3.3.6 速度的验算 17
3.5 滚珠丝杠副的安全使用 18
3.5.1 润滑 18
3.5.2 防尘 18
3.5.3 使用 18
3.5.4 安装 18
3.6 联轴器的选择 19
3.7 Y轴和Z轴滚珠丝杠及伺服电机的选择 19
3.8 伺服进给系统结构图的设计 20
3.9 本章小节 22
第4章 主要零部件设计 23
4.1 床身结构的设计 23
4.1.1 床身设计的基本要求 23
4.1.2 床身的结构设计 24
4.2 导轨的设计 25
4.2.1 导轨的设计要求 25
4.2.2 导轨的结构设计 25
4.2.3 导轨的防护及润滑 28
4.3 工作台的设计 29
4.4 本章小节 29
第5章 结论 30
参考文献 31
致谢 33
温馨提示:
1、题目前面的备注【字母数字编号】为本站整理分类的编号,与课题内容无关,请选题时忽视;
2、若题目上备注三维,则表示文件里包含三维源文件,由于三维组成零件数量较多,为保证预览截图的简洁性,本站将三维文件夹进行了打包。三维及CAD预览截图,均为本站电脑打开软件进行截图的,保证能够打开,下载原件超高清,下载后解压即可;
3、本站所有资源如无特殊说明,都需要本地电脑安装Office2007。图纸软件为AutoCAD,PROE,UG,SolidWorks,CATIA等;
4、本站所有图文资料仅供用户学习参考,不作为任何商用或其他用途;
5、本站不保证下载资源的准确性、安全性和完整性, 不包修改,不支持退换,同时也不承担用户因使用这些下载资源对自己和他人造成任何形式的伤害或损失;
6、 下载文件中如有侵权或不适当内容,请与我们联系,我们立即纠正。