

作品包括:
Word版说明书1份,共64页,约23000字
外文翻译一份
CAD版本图纸,共4张
摘要
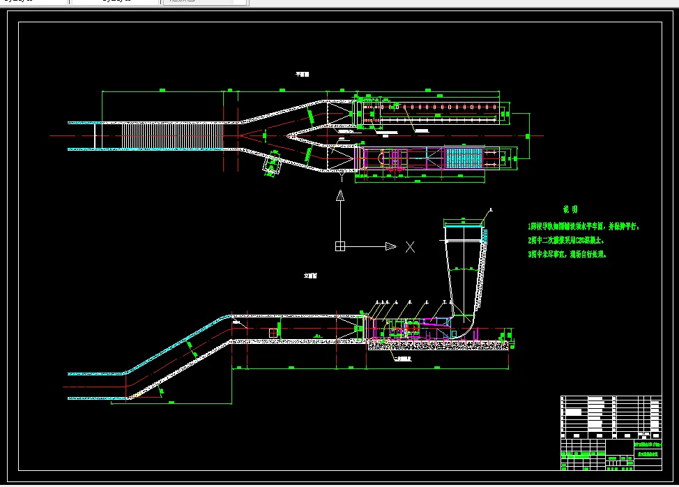
本文是针对布尔台矿矿井通风系统、主通风设备选型以及主通风机房布置进行设计。根据其井田概况和开拓方式,采用分区式两翼对角式通风系统,分别在两翼设由回风斜井和孙定霍洛回风立井,通风机工作方式使用抽出式。结合井下通风网络,分别确定容易期和困难期的通风阻力,分配采掘工作面、硐室等风量,得出总需风量。在可选的轴流式通风机系列中预选出具体型号,确定工况点,进行方案对比,从而选取适宜的通风机。同时,选择相应的电机,设计出配套的扩散器、消音装置,并完成主通风机房布置的设计。最终,做到能排出井下的毒性、窒息性以及爆炸性气体及粉尘,保障提供给矿井新鲜风量,在满足矿井生产需要的同时,极大地节约成本,避免不必要的经济损失和资源浪费,为矿井长期的服务做好保障。
关键词:主通风机;工况点;选型
目录
1 绪论 1
1.1 矿井通风机发展与现状 1
1.2 通风设备选型的目的和意义 1
1.3 布尔台矿井田概况 2
1.4 布尔台矿地质特征 2
1.5 矿井储量、年产量及服务年限 4
1.5.1 井田储量 4
2.5.2 矿井年产量及服务年限 4
1.6 井田开拓 4
1.6.1 开拓方式 4
1.6.2 井底车场及硐室 5
1.6.3 开采顺序 6
2 布尔台矿矿井通风系统计算 8
2.1 矿井通风设计原则 8
2.2 矿井通风系统选择 8
2.2.1 通风机工作方式选择 8
2.2.2 风井设置 8
2.2.3 掘进通风及硐室通风 9
2.2.4 矿井瓦斯涌出预测及矿井瓦斯等级确定 9
2.3 矿井风量、负压和等积孔计算 9
2.3.1 矿井风量计算 9
2.3.2 矿井负压计算 14
2.3.3 等积孔计算 22
2.4 通风设施、防止漏风和降低风阻的措施 23
2.4.1 通风设施 23
2.4.2 防止漏风设施 23
2.4.3降低风阻设施 24
2.5 反风方式 24
3 布尔台矿矿井主通风设备选型 25
3.1 通风设备选型依据 25
3.2 通风机预选 25
3.2.1 通风机风量计算 25
3.2.2 通风机风压计算 25
3.2.3 通风机选型方案比较 26
3.2.4 通风机选型确定 33
3.3 电动机选型分析 34
3.3.1 通风机的轴功率 34
3.3.2 电动机的输出功率 34
3.3.3 电动机容量及台数确定 35
3.3.4 电动机经济性的计算 35
4 通风机辅助装置设计 37
4.1 扩散器设计 37
4.2 消声装置设计 38
5 通风设备布置设计 43
5.1 主通风机房布置 43
5.2 机房布置方案 43
6 结论 44
致谢 45
参考文献 46
附录A 47
附录B 54
温馨提示:
1、题目前面的备注【字母数字编号】为本站整理分类的编号,与课题内容无关,请选题时忽视;
2、若题目上备注三维,则表示文件里包含三维源文件,由于三维组成零件数量较多,为保证预览截图的简洁性,本站将三维文件夹进行了打包。三维及CAD预览截图,均为本站电脑打开软件进行截图的,保证能够打开,下载原件超高清,下载后解压即可;
3、本站所有资源如无特殊说明,都需要本地电脑安装Office2007。图纸软件为AutoCAD,PROE,UG,SolidWorks,CATIA等;
4、本站所有图文资料仅供用户学习参考,不作为任何商用或其他用途;
5、本站不保证下载资源的准确性、安全性和完整性, 不包修改,不支持退换,同时也不承担用户因使用这些下载资源对自己和他人造成任何形式的伤害或损失;
6、 下载文件中如有侵权或不适当内容,请与我们联系,我们立即纠正。