

作品包括:
Word版说明书1份,共69页,约20000字
外文翻译一份
CAD版本图纸,共3张
摘 要
MG300-BW型采煤机。M-采煤机,G-滚筒,B-薄煤层,W-无链牵引。这种采煤机的牵引方式是液压无链牵引,所有的电机都采用横向布置,机械传动都是斜齿传动。
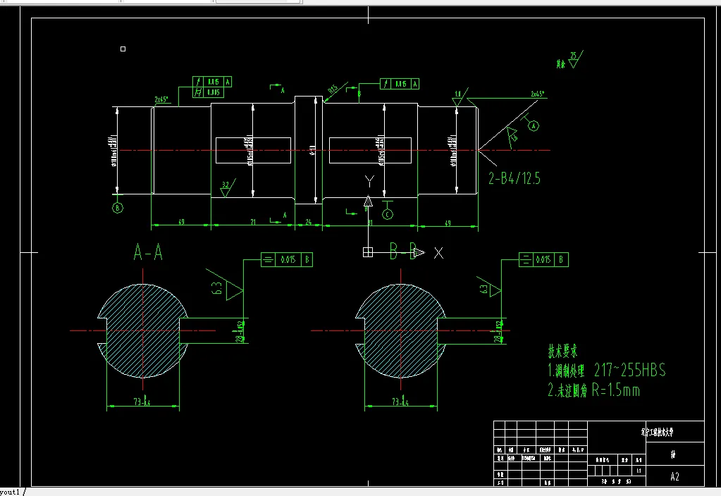
本说明书主要介绍了采煤机截割部减速器的设计计算。MG300-BW型采煤机的截割部主要是由摇臂和斜齿轮传动组成,截割部电动机在摇臂内采用横向布置,电机的输出动力经由一个四级斜齿轮进行传动,最后驱动采煤机的滚筒旋转。斜齿轮减速器改善了齿轮的组织,增大了其力学性能,提高了生产效率和材料利用率。
在本次设计过程中,对采煤机截割部减速器的轴、传动齿轮、轴承以及联接用的平键等零部件进行了设计计算、强度校核和选用。本说明书主要针对主要部件的设计计算和强度校核进行了叙述和介绍。
关键词:采煤机;截割部;减速器;轴设计
目录
前言 1
1 绪论 2
1.1 国内外采煤机械的发展及其现状 2
1.2 薄煤层采煤机的分类及其特点 2
1.3 薄煤层采煤机在我国的应用情况 4
1.4 薄煤层采煤机的优点及局限性 5
2 薄煤层采煤机的总体结构方案的设计 6
2.1 实现采煤机基本功能的结构方案设计 6
2.2 实现采煤机辅助功能的结构方案 8
2.3 薄煤层采煤机的主要技术参数的确定 10
2.4 小结 14
2.4.1 性能特点 14
2.4.2 该机的主要技术特征为: 15
3 截割部减速器的具体设计说明 16
3.1 电动机的选择 16
3.1.1. 电动机功率的确定 16
3.1.2. 电动机型号的确定 16
3.2 传动装置的运动和动力参数计算 17
3.2.1. 传动比的分配 17
3.2.2. 根据传动比的分配查书机械系统设计选择齿轮齿数 17
3.2.3. 各轴功率、转速和转矩的计算 17
3.3 齿轮部分设计 19
3.3.1. 电动机输出部分齿轮传动计算 19
3.3.2. 减速器部分齿轮传动计算 26
3.4 轴的设计 34
3.4.1. 变速箱低速轴的设计及强度校核 34
3.4.2. 变速箱中间轴的强度校核 40
3.4.3. 变速箱高速轴的强度校核 46
3.4.4. 变速箱外低速轴的强度校核 51
3.4.5. 变速箱外高速轴的强度校核 55
4 整体性验算 60
4.1 稳定性的计算 60
4.2 稳定性的评价指标 60
4.3 稳定比 61
4.4 生产能力的验算 62
5 结论 64
6 经济技术分析 65
致谢 66
参考文献 67
附录A 67
附录B 73
温馨提示:
1、题目前面的备注【字母数字编号】为本站整理分类的编号,与课题内容无关,请选题时忽视;
2、若题目上备注三维,则表示文件里包含三维源文件,由于三维组成零件数量较多,为保证预览截图的简洁性,本站将三维文件夹进行了打包。三维及CAD预览截图,均为本站电脑打开软件进行截图的,保证能够打开,下载原件超高清,下载后解压即可;
3、本站所有资源如无特殊说明,都需要本地电脑安装Office2007。图纸软件为AutoCAD,PROE,UG,SolidWorks,CATIA等;
4、本站所有图文资料仅供用户学习参考,不作为任何商用或其他用途;
5、本站不保证下载资源的准确性、安全性和完整性, 不包修改,不支持退换,同时也不承担用户因使用这些下载资源对自己和他人造成任何形式的伤害或损失;
6、 下载文件中如有侵权或不适当内容,请与我们联系,我们立即纠正。