

作品包括:
Word版说明书一份,38页,约15000字
CAD版本图纸,共27张
内 容 提 要
目前很多冲压生产线的模下废料均由人工清扫,机箱装载。手工生产线需停机清扫。自动生产线虽不停机,但清扫时极不安全。同时手工清扫废料及目前废料收集方式使整个生产现场显得零乱。废料满地散落,场地不清洁,人工清除废料势必停机作业,影响生产效率。
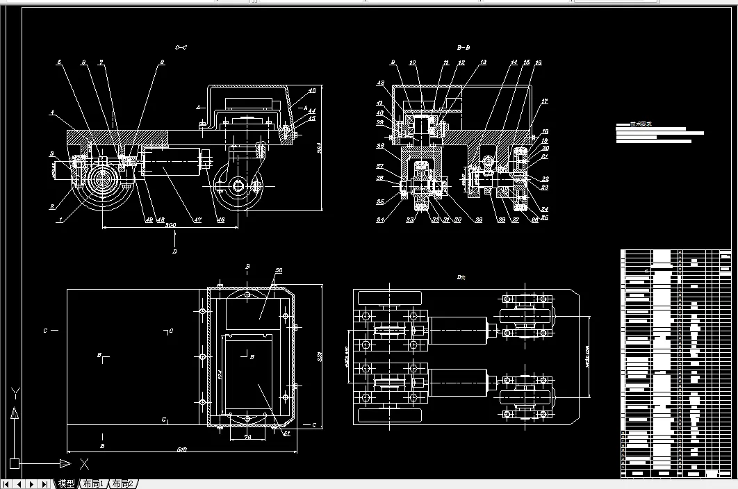
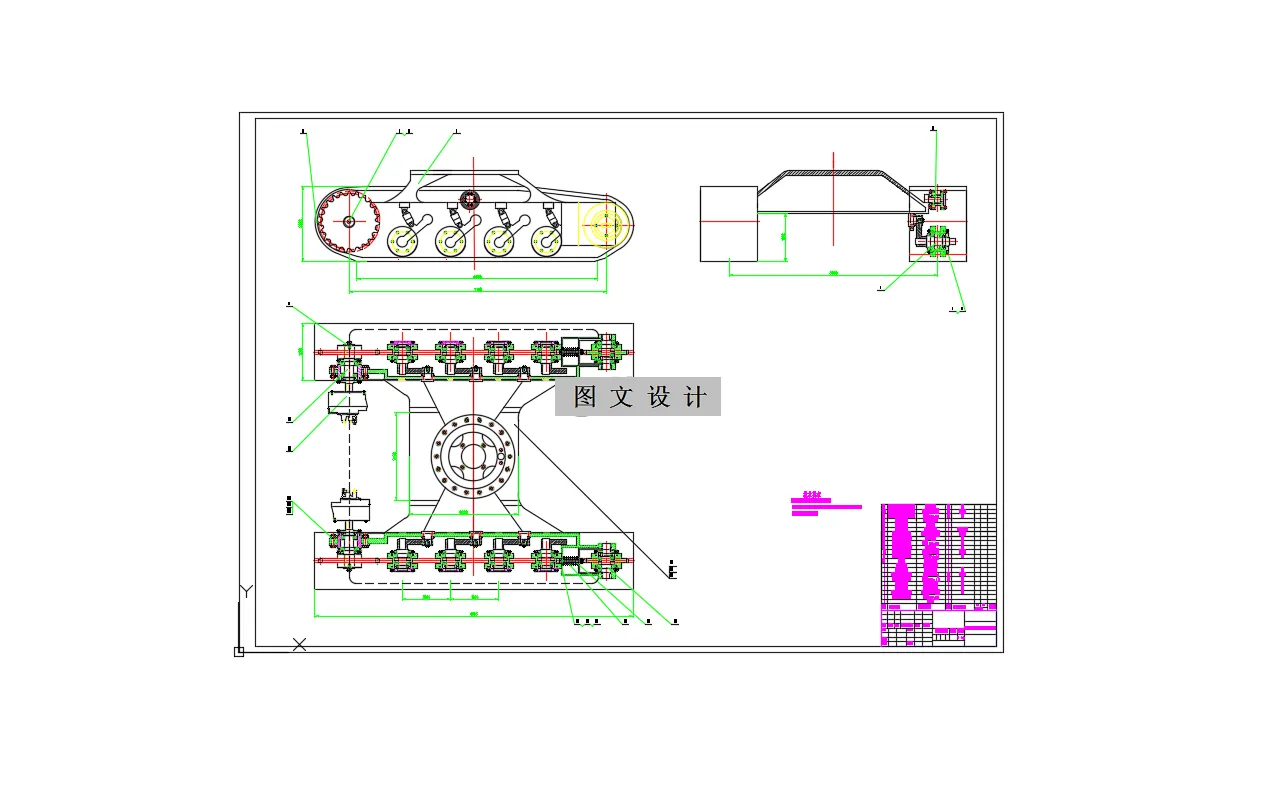
随着产品更新替换速度的加快,产品的规格变化多端,多种少量之生产方式已非常之普遍。各种模具垫脚,垫脚间距几何位置不一,并随快速换模的导入,夹模器的干涉,规格品的输送装置已无法适应。如何从模下自动清除废料,并适应其种种之变化,成为同行业界的一个难点。为满足生产的需求,提高工作效率,一种独特的输送装置可自行清除模下废料。该装置由安装架、工织皮带输送带、废料输送机等部件组成。该输送装置设计的独特之处在于:使用一台马达同时驱动多条输送带,解决了一台马达驱动一条输送带所带来的横向空间不够的问题;输送带横向位置可任意调整,已适应不同的垫脚位置;一种输送带宽度可适应一定范围的垫脚间距,输送带可任意组合,已适应不同宽度;换模时可方便地移动输送带,且各皮带整体及单个皮带伸入模具下的深度可调,适应不同的模具尺寸;换线时,可方便地更换输送带;超薄皮带可越过夹模器或压板的阻挡,更好地利用空间。
冲压废料自动输送装置是一种适应性强,效率高,安全可靠,灵活多变的组合式废料输送设备,配以链板式输送机,对每一条生产线的废料进行集中收集,或配以电磁送料机,废料箱进行单台冲床废料收集,从而可进一步提高冲压生产的自动化程度,实现冲压作业区的无人化,极大地提高生产效率。
目 录
内容提要 …………………………………………………………………Ⅰ
SUMMARY ………………………………………………………………Ⅱ
前 言…………………………………………………………………………1
1 冲压废料自动输送装置传动方案设计 ………………………………2
1.1 课题的来源 ……………………………………………………………2
1.2 国内外研究现状 ………………………………………………………2
1.3 传动方案设计 …………………………………………………………2
2 输送机的设计 …………………………………………………………11
2.1 各种输送机简介………………………………………………………11
2.2 带式输送机……………………………………………………………12
3 输送机各机构的设计 …………………………………………………21
3.1 传动滚筒及零部件的设计 …………………………………………21
3.2 滚筒、滚筒轴及配件的设计…………………………………………24
3.3 托辊装置的设计………………………………………………………26
3.4 滚筒和托辊滚动轴承的选择和校核 ………………………………27
4 电气控制系统的设计 …………………………………………………28
4.1 控制方式的选择 ……………………………………………………29
4.2 电气原理图的设计……………………………………………………30
总 结 ……………………………………………………………………31
参考文献……………………………………………………………………32
致 谢 ……………………………………………………………………33
温馨提示:
1、题目前面的备注【字母数字编号】为本站整理分类的编号,与课题内容无关,请选题时忽视;
2、若题目上备注三维,则表示文件里包含三维源文件,由于三维组成零件数量较多,为保证预览截图的简洁性,本站将三维文件夹进行了打包。三维及CAD预览截图,均为本站电脑打开软件进行截图的,保证能够打开,下载原件超高清,下载后解压即可;
3、本站所有资源如无特殊说明,都需要本地电脑安装Office2007。图纸软件为AutoCAD,PROE,UG,SolidWorks,CATIA等;
4、本站所有图文资料仅供用户学习参考,不作为任何商用或其他用途;
5、本站不保证下载资源的准确性、安全性和完整性, 不包修改,不支持退换,同时也不承担用户因使用这些下载资源对自己和他人造成任何形式的伤害或损失;
6、 下载文件中如有侵权或不适当内容,请与我们联系,我们立即纠正。