

作品包括:
Word版说明书一份,77页,约25000字
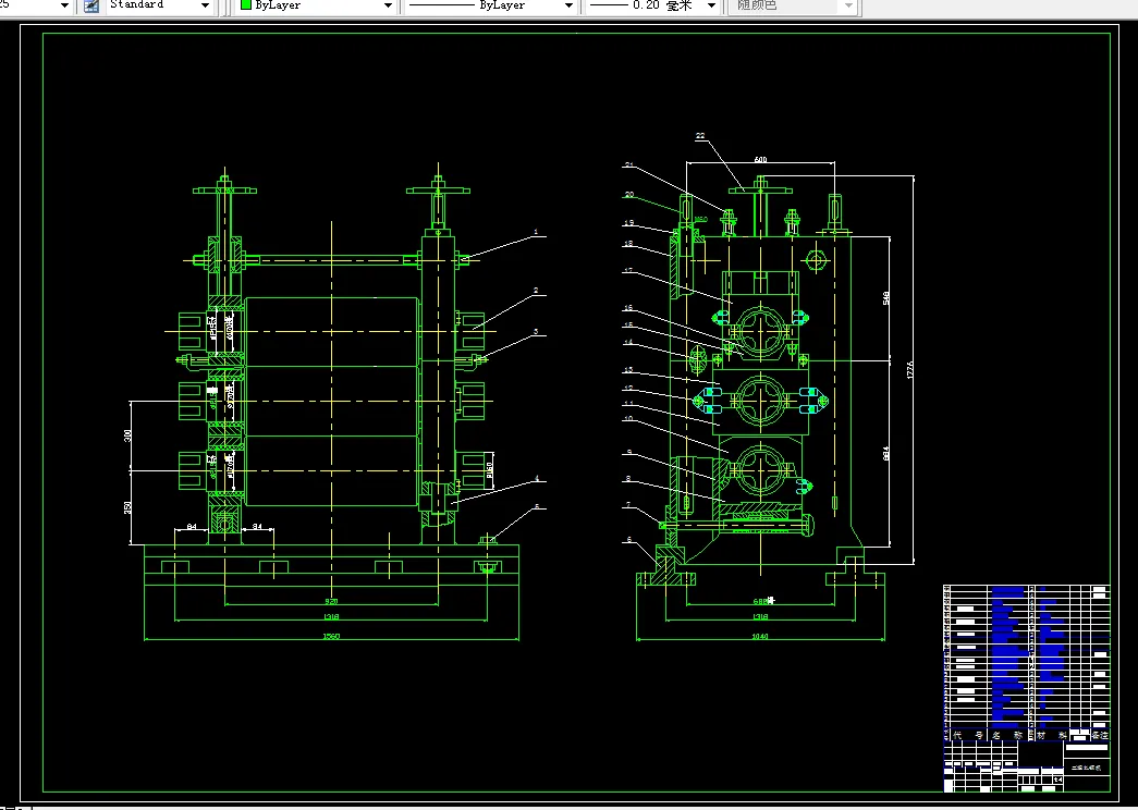
CAD版本图纸,共4张
摘 要
设计的轧钢机为300×3型钢轧钢机,轧辊的直径为300 mm。轧钢机主要用来为轧制小型线材,采用三辊式工作机座。轧钢机的主要设备是由一个主机列组成的。轧钢机的主机列是由原动机,传动装置和执行机构三个基本部分组成的。采用的配置方式为电动机——减速机——齿轮机座——轧机。由于轧辊的转向和转速不可逆转,原动机采用造价较底的高速交流主电机。考虑到轧制负荷很不均匀,为了均衡电机负荷,减少电机的容量,在减速机和电动机之间加有飞轮。齿轮机座:其用途是传递转矩给工作辊,设计采用三个直径相等的圆柱形人字齿轮在垂直面排成一排,装在密闭的箱体内。联轴器:在减速器与齿轮机座之间采用的是安全连轴器。而主联轴器采用的的梅花接轴联轴器。
关键词: 轧钢机 齿轮机座 飞轮
目 录
摘 要 ……………………………………………………………………I
Abstract …………………………………………………………………II
第1章 绪论…………………………………………………………………1
1.1 轧钢机的定义……………………………………………………1
1.2 轧钢机的标称……………………………………………………1
1.3 轧钢机的用途……………………………………………………1
1.4 轧钢机的主机列…………………………………………………2
第2章 轧制压力和轧制力矩的计算………………………………………5
2.1 轧制平均单位压力的确定………………………………………5
2.2 轧制总压力的确定………………………………………………7
2.3 轧制力矩的确定 ………………………………………………8
2.4 电动机的选择……………………………………………………8
第3章飞轮的的设 …………………………………………………………10
3.1 飞轮力矩的确定…………………………………………………10
3.2 飞轮强度的校核 ………………………………………………13
第4章减速器的选则 ………………………………………………………14
4.1 传动比的计………………………………………………………14
4.2 减速器的特点和破坏形式………………………………………16
4.3 主减速机的结构…………………………………………………16
4.4 主减速器的润滑和防护…………………………………………17
4.5 齿轮的材料和热处理……………………………………………17
4.6 减速器工作状态的分析…………………………………………17
第5章 齿轮机座的设计……………………………………………………19
5.1 齿轮机座的类型和结构…………………………………………19
5.2 齿轮的设计和轴端强度的校核…………………………………19
5.3 密封和漏油的问题………………………………………………22
5.4 齿轮机座的润滑…………………………………………………22
5.5 齿轮机座的总述…………………………………………………22
第6章轧钢机工作机座设计 ………………………………………………24
6.1 工作机座的选择…………………………………………………24
6.2 轧辊与轧辊轴承的设计…………………………………………25
6.3 轧辊调整装置的设计……………………………………………28
6.4 机架结构的设计…………………………………………………30
6.5 机架强度的校核…………………………………………………31
第7章孔型的设计 …………………………………………………………35
第8章经济分析 ……………………………………………………………38
第9章专题设计 ……………………………………………………………39
总 结…………………………………………………………………………46
致 谢…………………………………………………………………………47
参考文献 ……………………………………………………………………48
附录1外文译文 ……………………………………………………………49
附录2外文译文 ……………………………………………………………57
温馨提示:
1、题目前面的备注【字母数字编号】为本站整理分类的编号,与课题内容无关,请选题时忽视;
2、若题目上备注三维,则表示文件里包含三维源文件,由于三维组成零件数量较多,为保证预览截图的简洁性,本站将三维文件夹进行了打包。三维及CAD预览截图,均为本站电脑打开软件进行截图的,保证能够打开,下载原件超高清,下载后解压即可;
3、本站所有资源如无特殊说明,都需要本地电脑安装Office2007。图纸软件为AutoCAD,PROE,UG,SolidWorks,CATIA等;
4、本站所有图文资料仅供用户学习参考,不作为任何商用或其他用途;
5、本站不保证下载资源的准确性、安全性和完整性, 不包修改,不支持退换,同时也不承担用户因使用这些下载资源对自己和他人造成任何形式的伤害或损失;
6、 下载文件中如有侵权或不适当内容,请与我们联系,我们立即纠正。