

作品包括:
Word版说明书一份,13页,约4800字
CAD版本图纸,共2张
目 录
任务书………………………………………………………………………(2)
一、 总体方案的选择……………………………………………………(3)
二、 所选方案的具体设计………………………………………………(6)
1、 总体结构的设计…………………………………………………(6)
(1) PCB输送系统………………………………………………(6)
(2) 位置检测系统………………………………………………(6)
(3) 信号处理系统………………………………………………(7)
(4) 执行机构原理图……………………………………………(7)
2、机械机构设计………………………………………………………(7)
(1)翻转部分设计…………………………………………………(8)
(2)行程开关的位置选择…………………………………………(8)
(3)装置高度调节…………………………………………………(8)
3、软件部分的设计……………………………………………………(9)
(1)程序流程图……………………………………………………(9)
(2)PLC梯形图……………………………………………………(9)
(3)PLC程序………………………………………………………(10)
三、 相关参数的设计说明
1、 翻转的时间分配……………………………………………………(11)
2、 传送带的相关计算和翻转主轴的计算……………………………(12)
3、 电机的选择及有关参数的计算……………………………………(13)
四、 总结体会
参考文献……………………………………………………………(13)
任 务 书
题目:印制板翻板机的设计
设计与任务要求:
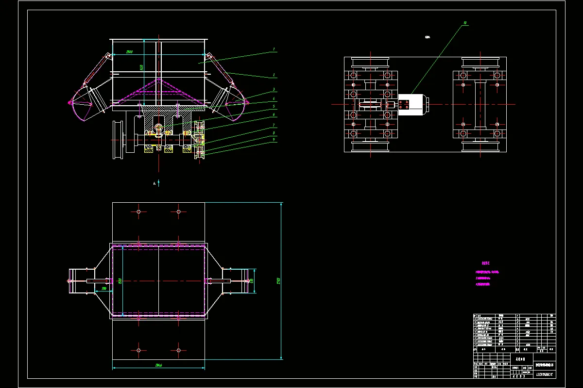
该装置是为了将通过波峰焊接好的印制板翻转,并传输到反面检查线的上面,工作的过程为:产品到达装置的传送部分上,装置自动将产品与传送部分一起翻转,然后传动部分将产品传输出去,再返回到原位,流程为 到位——翻转——到位——传送——翻转——到位,该过程自动完成。传送的产品重量为10Kg,底部为一328X246mm的平板型,印制板元件离印制板边缘的距离为8mm,传送形式可以采用皮带、滚筒或链条传输,生产节拍20’’,传送面离地面的高度为800mm,要求装置高±20mm可调。
要求完成装配图设计并完成电气控制图设计
包括:设计说明书一份
系统装配图一份
系统电气控制图一份
温馨提示:
1、题目前面的备注【字母数字编号】为本站整理分类的编号,与课题内容无关,请选题时忽视;
2、若题目上备注三维,则表示文件里包含三维源文件,由于三维组成零件数量较多,为保证预览截图的简洁性,本站将三维文件夹进行了打包。三维及CAD预览截图,均为本站电脑打开软件进行截图的,保证能够打开,下载原件超高清,下载后解压即可;
3、本站所有资源如无特殊说明,都需要本地电脑安装Office2007。图纸软件为AutoCAD,PROE,UG,SolidWorks,CATIA等;
4、本站所有图文资料仅供用户学习参考,不作为任何商用或其他用途;
5、本站不保证下载资源的准确性、安全性和完整性, 不包修改,不支持退换,同时也不承担用户因使用这些下载资源对自己和他人造成任何形式的伤害或损失;
6、 下载文件中如有侵权或不适当内容,请与我们联系,我们立即纠正。