

作品包括:
Word版说明书1份,共26页,约11000字
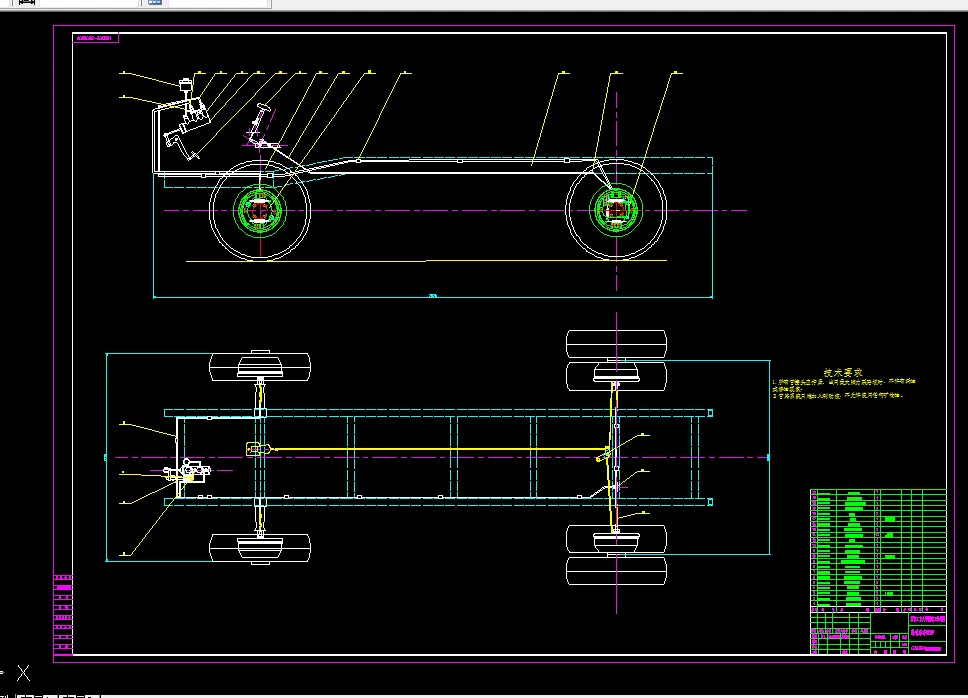
CAD版本图纸,共7张
目 录
1 前言 ........................................................2
2 制动系概况及组成 .............................................3
3 制动系的结构类型及选择 ......................................5
3.1制动器的结构类型............................................5
3.1.1 鼓式制动器结构 ......................................5
3.1.2 盘式制动器结构 ......................................9
3.2 制动器结构的选择 .........................................9
4 制动系的主要参数及其选择 ....................................10
4.1 相关给定参数 ............................................10
4.2 制动系主要参数的确定 ....................................10
5 制动系的设计与计算 ..........................................12
5.1 同步附着系数与制动器分配系数 ............................12
5.2 最大制动力矩 ............................................13
5.3 制动器因数计算 ..........................................14
5.4 制动性能计算 ............................................16
6 制动器主要零部件的结构设计 ..................................16
6.1 制动蹄 ..................................................17
6.2 制动底板 ................................................17
6.3 制动蹄的支承 ............................................17
6.4 制动轮缸 ................................................17
6.5 制动器间隙的调整及机构 ..................................18
7 液压制动驱动机构的计算 ......................................18
7.1 制动轮缸直径与工作容积 ..................................18
7.2 制动主缸直径与工作容积 ..................................19
7.3 制动踏板力与踏板行程 ....................................20
设计总结 .......................................................22
参考资料 .......................................................24
致谢 ...........................................................25
温馨提示:
1、题目前面的备注【字母数字编号】为本站整理分类的编号,与课题内容无关,请选题时忽视;
2、若题目上备注三维,则表示文件里包含三维源文件,由于三维组成零件数量较多,为保证预览截图的简洁性,本站将三维文件夹进行了打包。三维及CAD预览截图,均为本站电脑打开软件进行截图的,保证能够打开,下载原件超高清,下载后解压即可;
3、本站所有资源如无特殊说明,都需要本地电脑安装Office2007。图纸软件为AutoCAD,PROE,UG,SolidWorks,CATIA等;
4、本站所有图文资料仅供用户学习参考,不作为任何商用或其他用途;
5、本站不保证下载资源的准确性、安全性和完整性, 不包修改,不支持退换,同时也不承担用户因使用这些下载资源对自己和他人造成任何形式的伤害或损失;
6、 下载文件中如有侵权或不适当内容,请与我们联系,我们立即纠正。