欢迎来到龙图网在线图文分享平台-CAD图纸,设计说明书,工业设计3D模型,三维软件下载! 客服QQ:2363701252
热搜: 工艺夹具 模具设计 数控编程 土木工程 3D模型

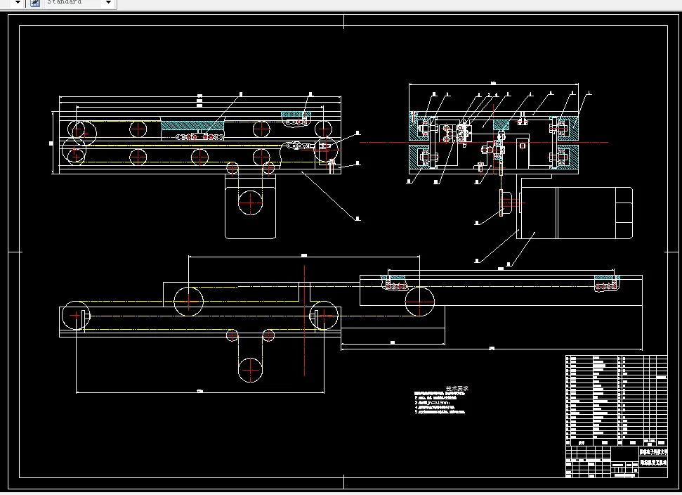
F490-双立柱堆垛机设计 下载积分:50 资料编号: F490

1.打开支付宝或者微信扫描二维码。
2.填写金额:50 
3.添加备注,填写资料编号:
资料编号: F490
4.支付成功后,请发资料编号到邮箱:jxsj168@qq.com
会有专人在15分钟内把资料发到您邮箱
备注:如果付款忘记填写资料编号,则发邮件时附带您的交易明细截图即可。
请耐心等待,如超过30分钟还没收到,请联系客服QQ:2363701252

作品描述

作品包括:

Word版说明书1份,共40页,约18000字

任务书一份

开题报告一份

外文翻译一份

CAD版本图纸,共12张


摘  要


本次设计主要设计的是双立柱堆垛机。双立柱堆垛机是现代自动化立体仓库中最为重要的组成部分之一,对现代物流有着重要影响,主要功能是可以在仓库中自动行走存取货物。并且本次主要研究的是它的机构方面,并着重设计堆垛机的行走机构、升降机构、货叉机构还有框架等的工作原理及其机构设计,尺寸的确定、方案的选择和各机构零件的设计与选择。

行走机构主要是先从电动机的计算设计选择入手,通过电机的计算选择然后确定皮带轮的型号及皮带的型号进而确定行走轮和轴。升降机构也是先从电机的计算选择入手,通过对卷筒、减速器、钢丝绳和滑轮等的设计得到的。货叉机构对其方案的比较选择,选出三级直线差动机构保证稳定伸缩,再对货叉中的零件进行校核设计选择及对零件的布置来设计的。框架结构主要是保证每一个机构都能合理的安装在框架之上,是堆垛机的整体构架,根据堆垛机框架的几点设计准则来确定框架上横梁、立柱和上横梁的具体尺寸,上横梁和下横梁主要为中空结构保证整个堆垛机机构重量适当,便于安装移动本次设计将其设计为一个长方形框架,具有稳定安全等特点。由于堆垛机之六米高的重型机构就要保证意外避免发生和意外发生后的紧急保护,所以就要对堆垛机的安全装置进行选择设计与安装保证整个机构、人身和仓库财产的安全。最后就可以设计出一个机构完善,安全可靠的双立柱堆垛机。

关键词:双立柱;自动化仓库;巷道;物流;堆垛起重机;设计

目    录


引言 1

1  总体运动方案的设计与结构分析 2

1.1 双立柱堆垛机总体的方案选择 2

1.2 主要装置 4

1.2.1底架 4

1.2.2立柱 4

1.2.3升降载货台 4

1.2.4行走机构 4

1.2.5升降机构 4

1.2.6货叉驱动机构 4

2  双立柱堆垛机升降装置设计 4

2.1 电机的选择与计算 4

2.1.1电动机类型的选择 5

2.1.2选择电动机的容量 5

2.2 钢丝绳与滑轮的设计 6

2.3 起重机卷筒的设计 7

2.4 蜗轮蜗杆减速器选取 8

3  堆垛机货叉的设计与计算 8

3.1 链传动伸缩货叉的总体设计方案 8

3.1.1链传动的伸缩货叉的工作原理 8

3.1.2中叉的传动方案设计 9

3.1.3上叉的传动方案设计 10

3.1.4中叉连结板设计 10

3.2  电机和减速器的选择与传动机构的计算 11

3.2.1电机和减速器的选择 11

3.2.2主动链轮的设计与计算 11

3.2.3 下叉循环链中链条末端在中叉两点的确定 13

3.2.4 中叉链轮设计与计算 13

3.3 链轮轴的设计计算 15

3.3.1链轮轴设计与计算 15

3.3.2滚轮轴的设计计算 17

3.3.3 链轮轴承的选择 19

3.4 伸缩货叉的扰度和强度 20

3.4.1下叉的受力分析 20

3.4.2 中叉的受力分析 21

3.4.3 前叉的设计分析 23

3.5 货叉各参数的选择 24

4  堆垛机的行走机构设计与计算 24

4.1 行走轮的设计计算 24

4.2 行走机构的电机选择 25

4.3 V带轮和V带设计计算和选择 26

4.4 行走机构减速器的选取 28

4.5 行走机构的联轴器选取 28

5  双立柱堆垛机机体的支架设计 29

5.1 机架设计计算准则与要求 29

5.1.1机架设计的准则 29

5.1.2机架设计的一般要求 29

5.2 机架的设计步骤 30

5.3 其他装置设计和选择 31

6  结论 33

谢  辞 34

参考文献 35

温馨提示:

1、题目前面的备注【字母数字编号】为本站整理分类的编号,与课题内容无关,请选题时忽视;

2、若题目上备注三维,则表示文件里包含三维源文件,由于三维组成零件数量较多,为保证预览截图的简洁性,本站将三维文件夹进行了打包。三维及CAD预览截图,均为本站电脑打开软件进行截图的,保证能够打开,下载原件超高清,下载后解压即可;

3、本站所有资源如无特殊说明,都需要本地电脑安装Office2007。图纸软件为AutoCAD,PROE,UG,SolidWorks,CATIA等;

4、本站所有图文资料仅供用户学习参考,不作为任何商用或其他用途;
5、本站不保证下载资源的准确性、安全性和完整性, 不包修改,不支持退换,同时也不承担用户因使用这些下载资源对自己和他人造成任何形式的伤害或损失;

6、 下载文件中如有侵权或不适当内容,请与我们联系,我们立即纠正。


线

F490-双立柱堆垛机设计 下载积分:50 资料编号:F490

作品描述

作品包括:

Word版说明书1份,共40页,约18000字

任务书一份

开题报告一份

外文翻译一份

CAD版本图纸,共12张


摘  要


本次设计主要设计的是双立柱堆垛机。双立柱堆垛机是现代自动化立体仓库中最为重要的组成部分之一,对现代物流有着重要影响,主要功能是可以在仓库中自动行走存取货物。并且本次主要研究的是它的机构方面,并着重设计堆垛机的行走机构、升降机构、货叉机构还有框架等的工作原理及其机构设计,尺寸的确定、方案的选择和各机构零件的设计与选择。

行走机构主要是先从电动机的计算设计选择入手,通过电机的计算选择然后确定皮带轮的型号及皮带的型号进而确定行走轮和轴。升降机构也是先从电机的计算选择入手,通过对卷筒、减速器、钢丝绳和滑轮等的设计得到的。货叉机构对其方案的比较选择,选出三级直线差动机构保证稳定伸缩,再对货叉中的零件进行校核设计选择及对零件的布置来设计的。框架结构主要是保证每一个机构都能合理的安装在框架之上,是堆垛机的整体构架,根据堆垛机框架的几点设计准则来确定框架上横梁、立柱和上横梁的具体尺寸,上横梁和下横梁主要为中空结构保证整个堆垛机机构重量适当,便于安装移动本次设计将其设计为一个长方形框架,具有稳定安全等特点。由于堆垛机之六米高的重型机构就要保证意外避免发生和意外发生后的紧急保护,所以就要对堆垛机的安全装置进行选择设计与安装保证整个机构、人身和仓库财产的安全。最后就可以设计出一个机构完善,安全可靠的双立柱堆垛机。

关键词:双立柱;自动化仓库;巷道;物流;堆垛起重机;设计

目    录


引言 1

1  总体运动方案的设计与结构分析 2

1.1 双立柱堆垛机总体的方案选择 2

1.2 主要装置 4

1.2.1底架 4

1.2.2立柱 4

1.2.3升降载货台 4

1.2.4行走机构 4

1.2.5升降机构 4

1.2.6货叉驱动机构 4

2  双立柱堆垛机升降装置设计 4

2.1 电机的选择与计算 4

2.1.1电动机类型的选择 5

2.1.2选择电动机的容量 5

2.2 钢丝绳与滑轮的设计 6

2.3 起重机卷筒的设计 7

2.4 蜗轮蜗杆减速器选取 8

3  堆垛机货叉的设计与计算 8

3.1 链传动伸缩货叉的总体设计方案 8

3.1.1链传动的伸缩货叉的工作原理 8

3.1.2中叉的传动方案设计 9

3.1.3上叉的传动方案设计 10

3.1.4中叉连结板设计 10

3.2  电机和减速器的选择与传动机构的计算 11

3.2.1电机和减速器的选择 11

3.2.2主动链轮的设计与计算 11

3.2.3 下叉循环链中链条末端在中叉两点的确定 13

3.2.4 中叉链轮设计与计算 13

3.3 链轮轴的设计计算 15

3.3.1链轮轴设计与计算 15

3.3.2滚轮轴的设计计算 17

3.3.3 链轮轴承的选择 19

3.4 伸缩货叉的扰度和强度 20

3.4.1下叉的受力分析 20

3.4.2 中叉的受力分析 21

3.4.3 前叉的设计分析 23

3.5 货叉各参数的选择 24

4  堆垛机的行走机构设计与计算 24

4.1 行走轮的设计计算 24

4.2 行走机构的电机选择 25

4.3 V带轮和V带设计计算和选择 26

4.4 行走机构减速器的选取 28

4.5 行走机构的联轴器选取 28

5  双立柱堆垛机机体的支架设计 29

5.1 机架设计计算准则与要求 29

5.1.1机架设计的准则 29

5.1.2机架设计的一般要求 29

5.2 机架的设计步骤 30

5.3 其他装置设计和选择 31

6  结论 33

谢  辞 34

参考文献 35

温馨提示:

1、题目前面的备注【字母数字编号】为本站整理分类的编号,与课题内容无关,请选题时忽视;

2、若题目上备注三维,则表示文件里包含三维源文件,由于三维组成零件数量较多,为保证预览截图的简洁性,本站将三维文件夹进行了打包。三维及CAD预览截图,均为本站电脑打开软件进行截图的,保证能够打开,下载原件超高清,下载后解压即可;

3、本站所有资源如无特殊说明,都需要本地电脑安装Office2007。图纸软件为AutoCAD,PROE,UG,SolidWorks,CATIA等;

4、本站所有图文资料仅供用户学习参考,不作为任何商用或其他用途;
5、本站不保证下载资源的准确性、安全性和完整性, 不包修改,不支持退换,同时也不承担用户因使用这些下载资源对自己和他人造成任何形式的伤害或损失;

6、 下载文件中如有侵权或不适当内容,请与我们联系,我们立即纠正。

关于我们 网站申明 友情链接 联系我们

扫一扫,联系微信客服


Copyright @ 龙图网版权所有  网站客服QQ:2363701252  微信客服:a58cad

皖ICP备2021006205号-2