

作品包括:
Word版说明书一份,共57页,约21000字
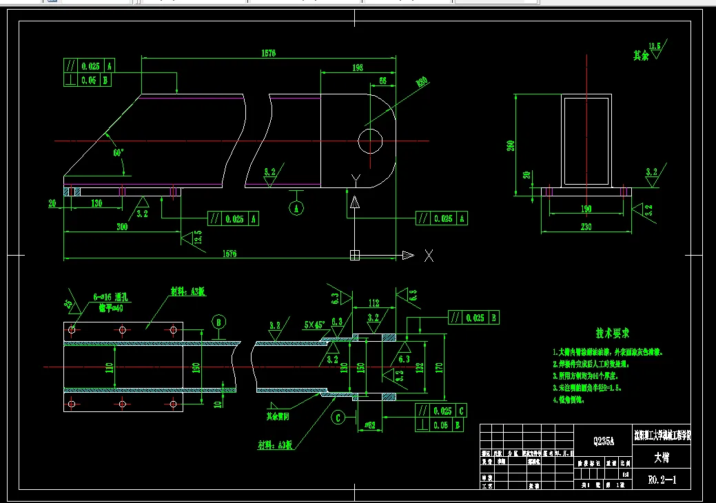
CAD版本图纸,共20张:
摘 要
随着机器人在各个领域应用的日益广泛,许多场合要求机器人具有力控制的能力。此次设计是针对回转壳体内自动粘贴胶片的任务,设计一个3—DOF平面关节型机械手(包括1个移动关节,2个转动关节和末端执行机构),配合壳体驱动系统来实现此任务。在机械手工作过程中,通过伺服电机带动丝杠转动,从而来完成机械手水平方向的移动,旋转关节1通过链传动来完成平面内的旋转动作,旋转关节2直接在伺服电机的驱动下完成平面内的旋转动作,这样机械手可以伸入口径较小的回转壳体内完成粘贴胶片的任务。
本次设计工作首先对机械手进行了运动学分析(包括运动学方程的建立,运动学方程的正问题、逆问题及其解)。设计内容包括机械手的移动关节、旋转关节的结构设计,传动部分的设计等。其中,重点是对伺服进给系统的设计(包括工作台的设计,丝杠的设计,直线导轨、伺服电机和减速器的选取等)。最后对系统中主要部件的刚度、强度等性能参数进行了计算与校核。
关键词:机械手;自由度;运动学分析;伺服电机;直角减速器
目 录
1 引言 1
1.1 课题背景和意义 1
1.2 国内外研究现状 1
1.3 工业机械手的用途 3
2 机械手结构的总体方案设计 4
2.1 课题的主要内容 4
2.2 课题的研究方案 4
2.3 机械手结构的总体设计 4
2.3.1 主要技术指标设计 4
2.3.2 机械手的结构设计 4
3 机械手运动学分析 6
3.1 机械手运动学方程的建立 6
3.2 运动学方程的正解 7
3.3 运动学方程的逆解 8
4 传动装置的设计 10
4.1 伺服电机及减速器的选择 10
4.1.1 机电领域中伺服电机的选择原则 10
4.1.2 旋转关节驱动电机及减速器的选择 10
4.2 链轮的设计及链条的选择 11
4.2.1 滚子链传动的设计 11
4.2.2 链轮的设计 13
4.2.3 滚子链的静强度计算 14
4.2.4 链传动的张紧 15
4.2.5 链传动的润滑 15
5 轴的设计与验算 16
5.1 轴的结构设计 16
5.1.1 选择轴的材料 16
5.1.2 初步估计轴径 17
5.2 轴的校核 18
6 轴上零件的选择与计算 25
6.1 键的选择与键联接强度校核 25
6.1.1 大臂末端电机轴上键的选择与校核 25
6.1.2 轴上矩形花键的选择与校核 26
6.1.3 小臂电机轴上键的选择与校核 26
6.2 滚动轴承的验算 26
6.2.1 确定轴承的承载能力 27
6.2.2 计算当量动载荷 28
6.2.3 校核轴承寿命 28
7 伺服进给系统的设计与计算 29
7.1 滚珠丝杠的设计 29
7.1.1 材料的选择 29
7.1.2 耐磨性计算 29
7.1.3 螺杆的强度计算 30
7.1.4 螺杆的稳定性计算 30
7.2 丝杠副的选择计算 31
7.2.1 螺母的疲劳寿命计算 32
7.2.2 螺母螺纹牙的强度计算 33
7.2.3 螺母凸缘的强度计算 34
7.3 丝杠驱动电机的选择 34
7.4 机械导轨的选择 35
7.5 联轴器的选择与计算 36
7.5.1 选择联轴器的类型 36
7.5.2 联轴器的主要参数 37
7.5.3 联轴器的计算扭矩 37
结论 39
致谢 40
参考文献 41
附录A 42
附录B 48
温馨提示:
1、题目前面的备注【字母数字编号】为本站整理分类的编号,与课题内容无关,请选题时忽视;
2、若题目上备注三维,则表示文件里包含三维源文件,由于三维组成零件数量较多,为保证预览截图的简洁性,本站将三维文件夹进行了打包。三维及CAD预览截图,均为本站电脑打开软件进行截图的,保证能够打开,下载原件超高清,下载后解压即可;
3、本站所有资源如无特殊说明,都需要本地电脑安装Office2007。图纸软件为AutoCAD,PROE,UG,SolidWorks,CATIA等;
4、本站所有图文资料仅供用户学习参考,不作为任何商用或其他用途;
5、本站不保证下载资源的准确性、安全性和完整性, 不包修改,不支持退换,同时也不承担用户因使用这些下载资源对自己和他人造成任何形式的伤害或损失;
6、 下载文件中如有侵权或不适当内容,请与我们联系,我们立即纠正。