

作品包括:
Word版说明书1份,共34页,约13000字
CAD版本图纸,共7张
摘 要
随着我国城市化和工业化的发展,搅拌器作为主要的搅拌处理设备,其搅拌和推流的效果对产品的质量有着重要影响。搅拌设备使用历史悠久,应用范围广。在化学工业、石油工业、建筑行业等传统工业中均有广泛的使用。搅拌操作看来似乎简单,但实际上,它所涉及的因素却极为复杂。搅拌器叶片在电机的驱动下旋转搅拌液体产生旋向射流,利用沿着射流表面的剪切应力来进行混合,使流体以外的液体通过摩擦产生搅拌作用,在极度混合的同时,形成体积流,应用大体积流动模式得到受控流体的搅拌推流输送。
本文介绍了小型搅拌器设计的基本思路和基本理论,分析了搅拌器的基本结构及其相关内容阐述了搅拌器的运动及其动力装置。通过对搅拌器的基本设备的描述和对其基本工作原理、作用和功能等相关文献的参考,从而对小型搅拌器的设计加以综述。
关键词:传动装置,联轴器,支承装置,电动机,减速器
目 录
1 绪论…………………………………………………………………………………………………… 1
1.1搅拌器的概述…………………………………………………………………………………...1
1.1.1搅拌器的应用范围……………………………………………………….……………1
1.1.2搅拌器的工作原理……………………………………………………………………1
1.1.3化工反应器中的搅拌设备…………………………………………………………1
1.2化工搅拌器的适应条件和构造……………………………………………………………2
1.2.1化工搅拌器的适应条件………………………………………………………………2
1.2.2化工搅拌器的构造……………………………………………………………………2
1.3课题的目的、意义、国内外现状……………………………………………………………..3
1.3.1课题的目的、意义……………………………………………………………………3
1.3.2搅拌器的发展史及现状 …………………………………………………………3
1.3.3搅拌器的主要类型及其发展概况…………………………………………………4
1.3.4结语………………………………………………………………………………………9
1.4本课题的设计思路…………………………………………………………………………10
2 搅拌容器的设计 …………………………………………………………………………………10
2.1搅拌容器的设计探讨………………………………………………………………………11
2.2搅拌容器的设计计算……………………………………………………...………………12
2.2.1确定筒体的几何参数………………………………………………………………12
2.2.2封头的设计……………………………………………………….…………………14
3 传动装置的选择和搅拌器的设计………………………………………………………………16
3.1搅拌器的选型…………………………………………………………………………….…16
3.2搅拌器功率的计算……………………………………………………………..………16
3.3搅拌轴的结构及材料………………………………………………………………………17
3.3.1轴的结构………………………………………………………………………………17
3.3.2轴的材料………………………………………………………………………………17
3.3.3搅拌轴的计算………………………………………………………………………17
3.3.4搅拌轴的形位公差和表面粗糙度要求…………………………………………19
3.4搅拌器及传动装置等的设计及计算………………………………………………..…….19
3.4.1搅拌器的选择………………………………………………………………………19
3.4.2电动机的选型………………………………………………………………………19
3.4.3减速器的选型…………………………………………………………………………20
3.4.4轴承的选择……………………………………………………………………………20
3.4.5联轴器的选择…………………………………………………………………………21
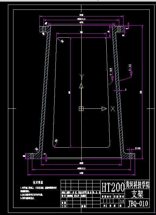
3.5传动装置的机架……………………………………………………………………………22
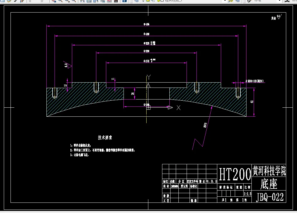
3.6底座的设计……………………………………………………………………………………23
3.7搅拌器的轴封装置…………………………………………………………………………24
3.8搅拌器桨叶的设计…………………………………………………………………………26
3.8.1搅拌器桨叶的选型………………………………………………………………….26
3.8.2搅拌桨叶的直径设计……………………………………………………….……….27
3.9搅拌器的接管口支座的结构设计………………………………………………………..27
3.9.1液体进料管……………………………………………………………………………28
3.9.2液体出料管……………………………………………………………………………28
3.9.3仪表接管口……………………………………………………………………………29
3.9.4法兰的选择…………………………………………………………………………29
3.9.5设备支座的选择……………………………………………………………………30
结论………………………………………………………………………………………………………32
致谢……………………………………………………………………………………………………..33
参考文献…………………………………………………………………………………………………34
附录………………………………………………………………………………………………………35
温馨提示:
1、题目前面的备注【字母数字编号】为本站整理分类的编号,与课题内容无关,请选题时忽视;
2、若题目上备注三维,则表示文件里包含三维源文件,由于三维组成零件数量较多,为保证预览截图的简洁性,本站将三维文件夹进行了打包。三维及CAD预览截图,均为本站电脑打开软件进行截图的,保证能够打开,下载原件超高清,下载后解压即可;
3、本站所有资源如无特殊说明,都需要本地电脑安装Office2007。图纸软件为AutoCAD,PROE,UG,SolidWorks,CATIA等;
4、本站所有图文资料仅供用户学习参考,不作为任何商用或其他用途;
5、本站不保证下载资源的准确性、安全性和完整性, 不包修改,不支持退换,同时也不承担用户因使用这些下载资源对自己和他人造成任何形式的伤害或损失;
6、 下载文件中如有侵权或不适当内容,请与我们联系,我们立即纠正。