

作品包括:
word版设计说明书一份,37页,约14000字
CAD版本图纸,共5张
X52K型立式升降铣床电气控制系统的PLC改造
摘要
继电器接触器控制在工业控制领域中曾占有主导地位,该系统采用固定接线的硬件实现逻辑控制。如生产任务或工艺发生变化,需改变硬件结构,从而造成时间和资金的浪费。
PLC是一种新型的工业自动化控制装置,其控制功能是通过软件编程来实现的。当生产工艺和任务发生变化时,不必改变PLC硬件设备,只需改变PLC中的程序,因而该控制系统更具灵活性。且PLC控制系统体积小、可靠性高、更易于维护。
通过对X52K型立式升降台铣床进行改造,并用MCGS软件仿真,实现了自动化控制,从而可以提高整个电气控制系统的工作性能。
关键词:PLC;电气控制系统;X52K;立式升降台铣床:MCGS
目录
一 绪论 1
1.1铣床 1
1.1.1铣床的介绍 1
1.1.2铣床的种类 1
1.1.3 X52K立式铣床的简介 1
1.1.4 X52K立式铣床的结构及特点 2
1.1.5.X52K立式铣床电器元件明细表 4
1.2 可编程序控制器 5
1.2.1 PLC的简史 5
1.2.2 PLC的特点LC的特点: 6
1.2.3 PLC的基本组成 6
1.2.4 PLC的基本工作原理 7
第二章 X52K型立式升降铣床控制系统分析 9
2.1电气原理图 9
2.2主电路分析 10
2.3控制电路分析 10
2.3.1主轴电动机M1的控制 11
2.3.2工作台进给电动机M3的控制 11
2.3.3冷却泵电动机M2的控制 11
第三章 PLC设计 12
3.1 改造的目的 12
3.2 PLC设计方案的确定 12
3.3 PLC的选择 13
3.3.1 FX特点 13
3.3.2 FX系列PLC型号命名方式 14
3.3.3 FX系列PLC的内部资源 14
第四章 PLC接线图及程序 17
4.1 输入输出地址分配及PLC的选择 18
4.1.1输入输出地址分配 18
4.1.2 输出地址分配 18
4.1.3 PLC的选择 18
4.2 PLC接线图 19
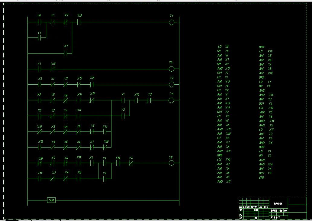
4.3 梯形图及指令 19
4.3.1 FX系列PLC的指令 19
4.3.2 梯形图语言简介 20
4.3.3 梯形图及指令语句 21
第五章 MCGS动画模拟 24
5.1 MCGS介绍 24
5.2 组态动画 27
第六章 结论 30
参考文献 30
致 谢 32
温馨提示:
1、题目前面的备注【字母数字编号】为本站整理分类的编号,与课题内容无关,请选题时忽视;
2、若题目上备注三维,则表示文件里包含三维源文件,由于三维组成零件数量较多,为保证预览截图的简洁性,本站将三维文件夹进行了打包。三维及CAD预览截图,均为本站电脑打开软件进行截图的,保证能够打开,下载原件超高清,下载后解压即可;
3、本站所有资源如无特殊说明,都需要本地电脑安装Office2007。图纸软件为AutoCAD,PROE,UG,SolidWorks,CATIA等;
4、本站所有图文资料仅供用户学习参考,不作为任何商用或其他用途;
5、本站不保证下载资源的准确性、安全性和完整性, 不包修改,不支持退换,同时也不承担用户因使用这些下载资源对自己和他人造成任何形式的伤害或损失;
6、 下载文件中如有侵权或不适当内容,请与我们联系,我们立即纠正。