E309-PP材质310xФ260mm废纸篓注射模设计
E306-160x120x80饭盒注射模具设计
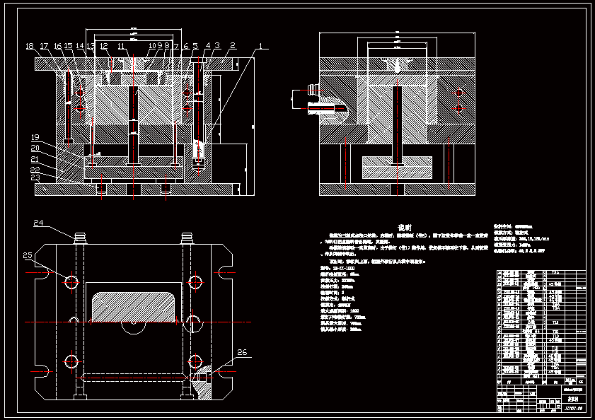
E305-17×10密封盖注射模具设计
E304-5ml一次性注射器塞杆注塑模具设计
E280-管套注塑模设计
E268-笔帽注塑模具设计[含UG三维图]
E264-圆垫圈冲压模具设计-外径22
E263-手柄形垫片冲压复合模设计-孔距40
E257-菱形垫片冲压模具设计【复合模】-孔距60
E255-工型件切角模工艺及模具设计
E165-手柄限位杆盒冲压件设计[3套模具]
E164-垫圈落料冲孔复合模具设计-长44.6
E159-把手封条注塑模设计
E140-旅行餐碗注塑模设计[含Proe三维图]
E131-电池板铝边框冲孔模的设计
E129-点钞盒底座注射模具设计
E128-底座注塑模模具设计
E123-落料-冲孔-拉深-切边复合模设计
E122-螺口容器注射模设计
E121-轮毂模具的设计