

作品包括:
Word版说明书一份,共49页,约19000字
CAD版本图纸,共13张
PROE三维图一份
摘 要
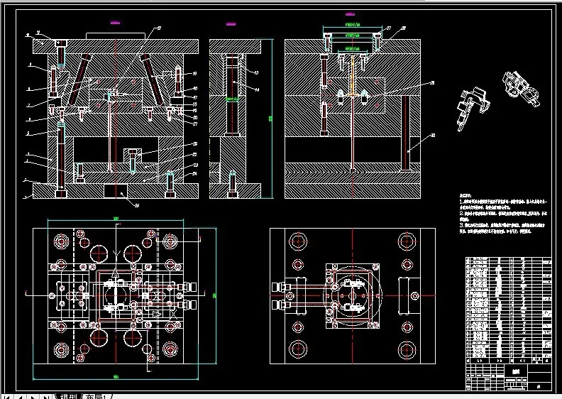
从产品结构工艺性,具体模具结构出发,对模具的浇注系统、模具成型部分的结构、顶出系统、冷却系统、注塑机的选择及有关参数的校核、都有详细的设计。通过整个设计过程表明该模具能够达到此塑件所要求的加工工艺。设计一副注塑模具来生产塑件产品,以实现自动化提高产量。针对塑件的具体结构,该模具是侧浇口的单分型面注射模具。
具体设计为:材料选用ABS;注射机选用时尽量选用国标注射机。该制件上下部分均需要抽芯机构,故需要设计上下层的侧型芯,具体通过滑块带动来完成制件的抽芯过程,进而顺利完成制件的脱模,最后有顶杆将制件顶出模外。
关键词:复合按钮 浇注系统 注塑模 分型面
目录
1.引言 1
2.塑件的材料及结构分析 7
2.1塑件的原材料的分析 7
2.2塑件的结构和尺寸精度及表面质量分析 11
2.2.1结构分析 11
2.2.2尺寸精度分析 11
2.2.3表面质量分析 11
2.2.4计算塑件的体积和重量 11
2.2.5塑件注射工艺参数的确定 12
3.注射模的结构设计 13
3.1型腔数目的确定 13
3.2型腔的分布 13
3.3分型面的设计 14
3.4浇注系统设计 15
3.4.1主流道 15
3.4.2分流道设计 16
3.4.3浇口形式及位置的选择 16
3.4.4 剪切速率的校核 18
3.4.5 主流道剪切速率校核 18
3.4.6 浇口剪切速率的校核 18
3.5成型零件结构设计 18
3.5.1定模的结构设计 18
3.5.2动模的结构设计 19
4.模具设计的有关计算 20
4.1 型腔和型芯工作尺寸计算 20
4.2 型腔侧壁厚度计算 21
4.3 模具加热和冷却系统的计算 21
4.3.1 塑料熔体释放的热量 22
4.3.2 高温喷嘴向模具的接触传热 23
4.3.3 注射模通过自然冷却传导走的热量 23
4.4模具闭合高度的确定 24
4.5注射机有关参数的校核 25
4.5.1 由锁模力选定注射机 25
4.5.2最大注塑量的校核 26
4.5.3锁模力的校核 26
4.5.4 塑化能力的校核 26
5.抽芯结构设计 27
5.1 抽芯距离的确定与抽芯力的计算: 27
5.2 斜导柱设计 27
5.3 滑槽的设计 30
5.4 楔紧设计 30
5.5 滑块定位设计 31
5.6 弹簧设计计算 32
6.绘制模具总装图 33
7.注射模的试模 34
8.注塑工艺不良缺陷以及成因 35
8.1残余应力引起的龟裂 35
8.2外部应力引起的龟裂 36
8.3外部环境引起的龟裂 36
总结与展望 39
参考文献 40
致谢 41
温馨提示:
1、题目前面的备注【字母数字编号】为本站整理分类的编号,与课题内容无关,请选题时忽视;
2、若题目上备注三维,则表示文件里包含三维源文件,由于三维组成零件数量较多,为保证预览截图的简洁性,本站将三维文件夹进行了打包。三维及CAD预览截图,均为本站电脑打开软件进行截图的,保证能够打开,下载原件超高清,下载后解压即可;
3、本站所有资源如无特殊说明,都需要本地电脑安装Office2007。图纸软件为AutoCAD,PROE,UG,SolidWorks,CATIA等;
4、本站所有图文资料仅供用户学习参考,不作为任何商用或其他用途;
5、本站不保证下载资源的准确性、安全性和完整性, 不包修改,不支持退换,同时也不承担用户因使用这些下载资源对自己和他人造成任何形式的伤害或损失;
6、 下载文件中如有侵权或不适当内容,请与我们联系,我们立即纠正。