

作品包括:
Word版说明书一份,共24页,约8200字
CAD版本图纸,共3张
摘要:
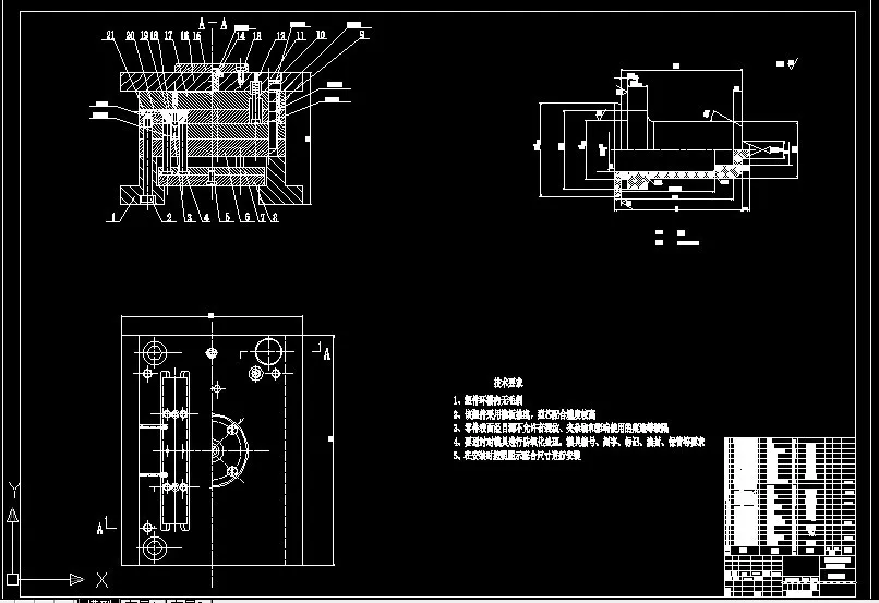
此毕业设计课题的塑件名称为“活塞-完爆器阀”,材料为尼龙-6,是一种热塑性塑料,塑料成型模具主要用于热塑性塑料制件的成型,设计一套塑料成型模具将其生产出来,所以在此采用注射模来成型零件。
塑件的尺寸精度有一定的要求,总体尺寸较小,所以采用一模多腔提高生产效率,这里用一模四腔来生产。由于该塑件的外壁有小凸台,所以用侧向抽芯较好。尼龙是一种流动性好,冲击强度高,吸水大,点浇口适合流动性好的塑料,用于一模多腔较好,故这里采用点浇口进行注塑。推板推出的推出力的作用面积大而均匀,推出平衡,塑件上没有推出的痕迹,所以采用推件板推出。
关键词:注射模、一模四腔、侧向抽芯、点浇口、推板推出。
目录
摘要
【Abstract】
第一章、塑件分析………………………………………………………1
1.1分析制品及材料的工艺性………………………………………1
1.2分析制品的结构、尺寸精度及表面质量………………………3
1.3脱模斜度…………………………………………………………3
第二章、初步确定注射机…………………………………………… 4
2.1计算制品的体积和质量………………………………………………… 4
2.2确定成型工艺参数……………………………………………………… 4
第三章、注射模的设计…………………………………………………5
3.1分型面的选择…………………………………………………5
3.2型腔数目的确定及型腔的排列………………………………5
3.3浇注系统的设计………………………………………………5
3.4排气系统的设计………………………………………………9
第四章、 注射模设计的有关尺寸计算………………………………10
第五章、推出机构的设计……………………………………………14
5.1推出机构的设计要求……………………………………………………14
5.2推出力的简化计算公式…………………………………………………14
5.3一次推出机构……………………………………………………………14
5.4推出机构的导向和复位…………………………………………………15
5.5多形腔点浇口浇注系统凝料的自动推出……………………15
第六章、结构零部件的设计…………………………………………16
6.1模架的选择………………………………………………………………16
6.2垫块设计…………………………………………………………………16
6.3支承板……………………………………………………………………16
6.4定模座板、动模座板的设计……………………………………………16
6.5合模导向机构的设计…………………………………………16
第七章、注射机的校核………………………………………………18
7.1最大注射量的校核………………………………………………………18
7.2锁模力的校核……………………………………………………………19
7.3注射压力校核……………………………………………………………19
7.4模具与注射机合模部分相关尺寸的校核………………………………19
7.5开模行程的校核…………………………………………………………20
第八章、侧向分型与抽芯机构设计…………………………………21
第九章、温度调节系统………………………………………………22
致谢……………………………………………………………23
参考文献………………………………………………………24
温馨提示:
1、题目前面的备注【字母数字编号】为本站整理分类的编号,与课题内容无关,请选题时忽视;
2、若题目上备注三维,则表示文件里包含三维源文件,由于三维组成零件数量较多,为保证预览截图的简洁性,本站将三维文件夹进行了打包。三维及CAD预览截图,均为本站电脑打开软件进行截图的,保证能够打开,下载原件超高清,下载后解压即可;
3、本站所有资源如无特殊说明,都需要本地电脑安装Office2007。图纸软件为AutoCAD,PROE,UG,SolidWorks,CATIA等;
4、本站所有图文资料仅供用户学习参考,不作为任何商用或其他用途;
5、本站不保证下载资源的准确性、安全性和完整性, 不包修改,不支持退换,同时也不承担用户因使用这些下载资源对自己和他人造成任何形式的伤害或损失;
6、 下载文件中如有侵权或不适当内容,请与我们联系,我们立即纠正。