

作品包括:
Word版说明书1份,共43页,约16000字
任务书一份
CAD版本图纸,共10张
UG三维图一份


摘要
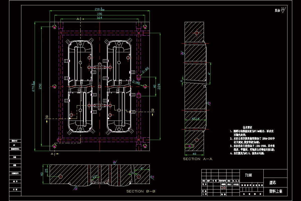
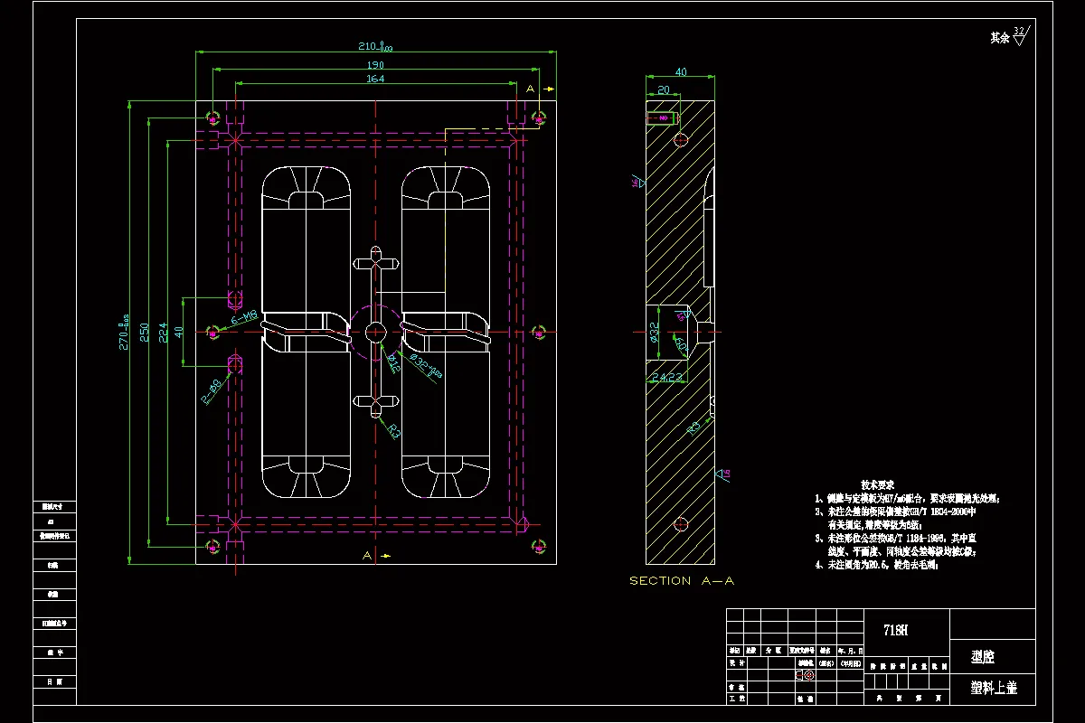
根据下壳塑件的要求,了解塑件的用途,分析塑件的工艺性、尺寸精度等技术要求,考虑塑件制件尺寸。本模具采用一模四腔,热流道潜浇口进料,注射机采用HTF160XB型号,设置冷却系统,CAD和绘制二维总装图和零件图,选择模具合理的加工方法。附上说明书,系统地运用简要的文字,简明的示意图和和计算等分析塑件,从而作出合理的注塑模具设计。
关键词:下壳塑件;一模四腔;热流道潜浇口进料;注射机;HTF160XB;冷却系统;注塑模具
目录
摘要I
Abstract II
1绪论1
1.1塑料简介1
1.2注塑成型及注塑模1
2塑件分析4
2.1塑件图4
2.2塑件的材料分析5
2.2.1塑料材料的基本特性5
2.2.2塑件材料成型性能6
2.2.3塑件材料主要用途6
2.3塑件的结构和尺寸精度表面质量分析7
2.3.1塑件的结构设计7
2.3.2塑件尺寸及精度8
2.3.3塑件表面粗糙度8
2.4计算塑件的体积、质量8
3塑件成型方案设计10
3.1分型面选择10
3.2型腔数的确定11
3.3型腔布局11
3.4浇注系统的类型和位置的选择11
3.4.1浇注系统组成12
3.4.2确定浇注系统的原则12
3.5.1型腔设计13
3.5.2型芯设计13
3.6脱模机构的设计14
3.6.1脱模机构的选择14
3.6.2推杆推出机构设计15
3.6.3脱模力的计算15
3.7导向与定位机构设计17
3.8排气及引气系统的设计18
3.9模温调节系统的设计19
3.10模架选用21
3.10.1确定模具的基本类型21
3.10.2模架的选择21
3.11斜推杆的设计23
3.11.1斜推杆种类23
3.11.2斜推杆的设计要点23
3.11.3斜推杆倾斜角的确定24
4模具零件设计26
4.1模具成型零件尺寸计算26
4.2模具强度与刚度校核27
4.3脱模力的计算27
4.4浇注系统的设计28
4.4.1主流道的设计28
4.4.2分主流道的设计29
4.4.3浇口的设计30
4.4.4热流道技术的优点30
4.5模具冷却系统的设计31
5注射机的选用及相关参数的校核32
5.1相关参数34
5.2最大注塑量校核34
5.3锁模力校核35
5.4模具与注塑机安装部分相关尺寸校核36
5.5开模行程校核36
总结37
致谢38
参考文献39
温馨提示:
1、题目前面的备注【字母数字编号】为本站整理分类的编号,与课题内容无关,请选题时忽视;
2、若题目上备注三维,则表示文件里包含三维源文件,由于三维组成零件数量较多,为保证预览截图的简洁性,本站将三维文件夹进行了打包。三维及CAD预览截图,均为本站电脑打开软件进行截图的,保证能够打开,下载原件超高清,下载后解压即可;
3、本站所有资源如无特殊说明,都需要本地电脑安装Office2007。图纸软件为AutoCAD,PROE,UG,SolidWorks,CATIA等;
4、本站所有图文资料仅供用户学习参考,不作为任何商用或其他用途;
5、本站不保证下载资源的准确性、安全性和完整性, 不包修改,不支持退换,同时也不承担用户因使用这些下载资源对自己和他人造成任何形式的伤害或损失;
6、 下载文件中如有侵权或不适当内容,请与我们联系,我们立即纠正。