

作品包括:
Word版设计说明书1份,共20页,约6600字
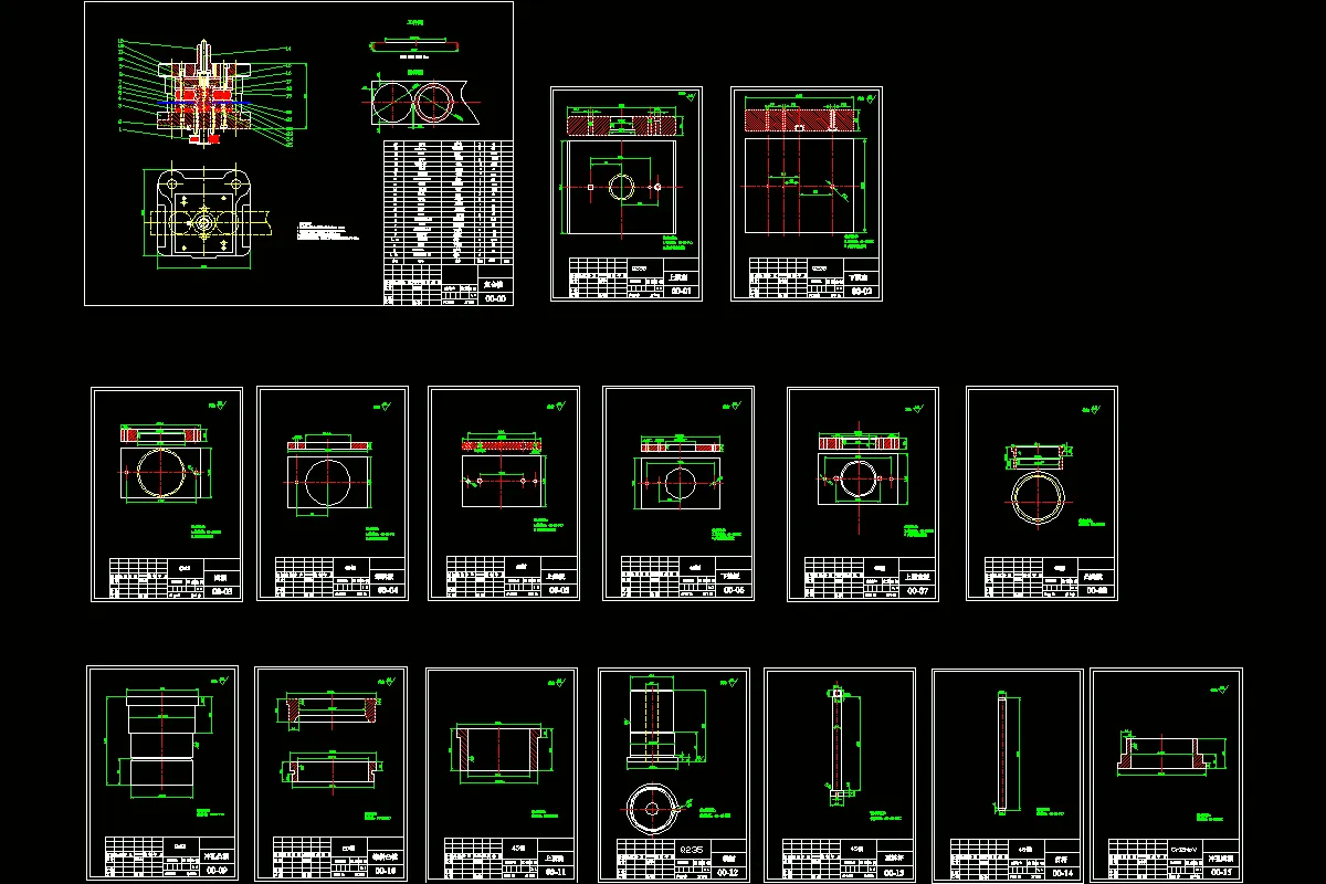
CAD版本图纸,共28张
![1750558163942054.webp 1VXO(~2L]DK[Z0H@LC~%JYT.webp](/static/upload/image/20250622/1750558163942054.webp)
摘要
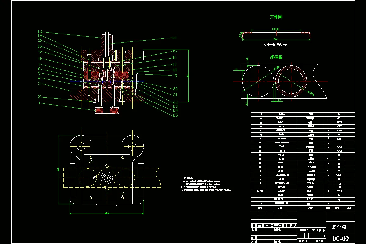
设计着重介绍了制件的成型工艺,及模具结构设计。通过对制件的工艺分析,确定了工艺方案。并设计了一套倒装复合模具。在设计同时利用参考资料,确定了各工作零件的尺寸。并较多的考虑了模具结构的调整性、易更换性及模具成本。同时在模具设计内容中融汇了冲压模具的不同加工方法、加工工艺及装配工艺,对初学冲压模具模设计者有一定的参考价值。本设计从模具设计到零部件的加工工艺以及装配工艺等进行详细的阐述,并应用CAD进行各重要零件的设计。
关键词: 翻边模 复合模
目录
1.绪 论 1
1.1 国内模具的现状和发展趋势 1
1.1.1国内模具的现状 1
1.1.2 国内模具的发展趋势 2
1.2 国外模具的现状和发展趋势 2
2. 落料冲孔拉深复合模 4
2.1 冲压工件的工艺分析 4
2.2 工艺方案确定 4
2.3 必要的工艺计算 5
2.3.1 毛坯尺寸计算 5
2.3.2 排样 5
2.3.3 计算工序压力 6
2.4 模具总体结构设计 8
2.4.1 模具类型设计 8
2.4.2 模具具体结构设计 8
2.5 主要工作零部件设计 8
2.5.1 主要零件尺寸计算 8
2.6 冲压设备的选用 11
2.7 模具的总体设计及装配 12
3. 翻边模 15
3.1 固定套翻边件工艺性分析 15
3.2 固定套翻边工艺计算 15
3.2.1 毛坯预冲孔直径计算 15
3.2.2 翻边高度H的计算 15
3.2.3 翻边力P的计算 16
3.3 翻边模装配图的设计绘制 16
结 束 语 18
致 谢 19
参 考 文 献 20
温馨提示:
1、题目前面的备注【字母数字编号】为本站整理分类的编号,与课题内容无关,请选题时忽视;
2、若题目上备注三维,则表示文件里包含三维源文件,由于三维组成零件数量较多,为保证预览截图的简洁性,本站将三维文件夹进行了打包。三维及CAD预览截图,均为本站电脑打开软件进行截图的,保证能够打开,下载原件超高清,下载后解压即可;
3、本站所有资源如无特殊说明,都需要本地电脑安装Office2007。图纸软件为AutoCAD,PROE,UG,SolidWorks,CATIA等;
4、本站所有图文资料仅供用户学习参考,不作为任何商用或其他用途;
5、本站不保证下载资源的准确性、安全性和完整性, 不包修改,不支持退换,同时也不承担用户因使用这些下载资源对自己和他人造成任何形式的伤害或损失;
6、 下载文件中如有侵权或不适当内容,请与我们联系,我们立即纠正。