

作品包括:
Word版说明书1份,共39页
任务书一份
开题报告一份
外文翻译一份
CAD版本图纸,共13张


摘要
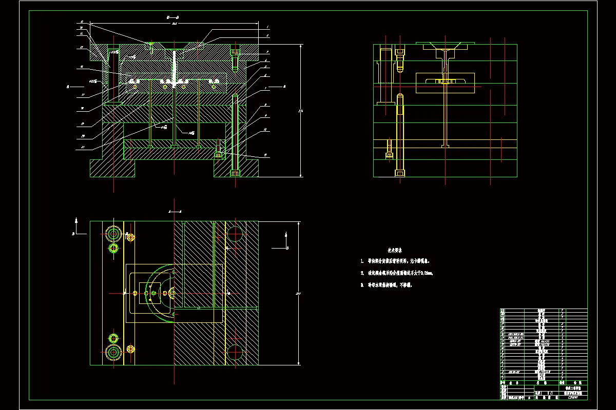
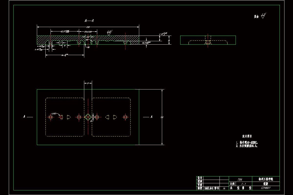
本次设计是插座面板注塑模设计。塑件确定采用聚乙烯材料,该材料具有绝缘性好、强度高、价格低廉可用于双孔、三孔插座。该设计使用了Pro/E软件对插座面板进行三维造型,即利用参数化实体造型的方法,为更加高速、快捷的造型、生产提供了一种切实可行的办法。设计以单分型面注塑模,型腔采用的是一模两腔注射。该塑件采用侧浇口注射和组合式型腔设置,推出形式为两杆推出机构完成塑件推出。
我在这次设计中借阅了大量的文献,还通过互联网查找了相关资料,设计过程比较完整。
1绪论1
1.1前言1
1.2塑料工业简介1
1.3我国塑料模现状2
1.4塑料模发展趋势3
2塑件的分析4
2.1塑料材料的选择(分析) 4
2.2塑件的尺寸、精度4
2.3塑件的几何形状4
2.3.1脱模斜度4
2.3.2脱模斜度方向5
2.3.3塑件的壁厚5
2.3.4塑件的加强筋5
2.3.5圆角5
2.3.6塑件的支承面5
2.3.7塑件上的孔5
3注射设备的选择7
3.1有关制品的计算7
3.2注射机型号的确定8
4分型面的选择9
5塑料件的工艺尺寸的计算11
6模具型腔壁厚的计算14
7普通浇注系统设计16
7.1浇注系统的作用16
7.2设计的基本原则16
7.3普通浇注系统的组成与设计16
7.3.1主流道16
7.3.2分流道18
7.3.3.冷料穴和拉料杆设计19
7.3.4浇口设计20
8排气系统的设计23
9结构零部件设计24
9.1.标准模架24
9.2.支承零部件设计24
9.3.合模导向机构设计25
9.3.1导向机构的作用25
9.3.2导柱25
9.3.3导套25
9.3.4导柱导向机构设计要点26
10推出机构设计27
10.1推出机构定义27
10.2推出机构设计原则27
10.3脱模阻力计算27
10.4注射机及各个参数的校核27
10.5推杆推出位置的选择29
10.5.1推杆的复位29
10.5.2推件板的设计29
11温度调节系统30
11.1模具温度及其调节的重要性30
11.2.模具温度与塑料成型温度的关系30
11.3冷却系统的结构设计30
11.3.1冷却介质30
11.3.2冷却系统的设计原则31
11.3.3冷却装置的理论计算31
结论33
致谢34
参考文献35
附录36
附录1 36
温馨提示:
1、题目前面的备注【字母数字编号】为本站整理分类的编号,与课题内容无关,请选题时忽视;
2、若题目上备注三维,则表示文件里包含三维源文件,由于三维组成零件数量较多,为保证预览截图的简洁性,本站将三维文件夹进行了打包。三维及CAD预览截图,均为本站电脑打开软件进行截图的,保证能够打开,下载原件超高清,下载后解压即可;
3、本站所有资源如无特殊说明,都需要本地电脑安装Office2007。图纸软件为AutoCAD,PROE,UG,SolidWorks,CATIA等;
4、本站所有图文资料仅供用户学习参考,不作为任何商用或其他用途;
5、本站不保证下载资源的准确性、安全性和完整性, 不包修改,不支持退换,同时也不承担用户因使用这些下载资源对自己和他人造成任何形式的伤害或损失;
6、 下载文件中如有侵权或不适当内容,请与我们联系,我们立即纠正。