

作品包括:
Word版说明书1份,共21页,约5800字
任务书一份
开题报告一份
CAD版本图纸,共5张
UG三维图一份

摘要
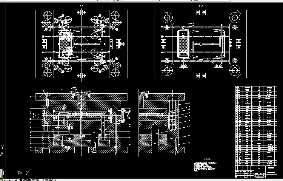
本次设计是插座面板注塑模设计,塑件采用聚碳酸酯材料,该材料在耐热性、阻燃性、抗冲击性三大方面表现优秀。本产品运用了CAD、UG等软件进行分析来得出报告。本篇文章涉及到加强筋结构、外观要求、圆角等内容。该设计对插座面板进行分析,得出以单分型面注塑模,型腔采用是一模二腔注射,该产品采用侧浇口注射。顶出机构以推杆来把塑件完成推出。
关键词:单分型面;插座面板;聚碳酸酯
目录
前言1
1塑件分析2
1.1塑料材料的选择2
1.2塑件的尺寸2
1.3脱模斜度3
1.4外观要求3
1.5塑件的加强筋3
1.6圆角3
2模具的结构形式4
2.1分型面位置的确定4
2.2型腔数量和排列方式的确定4
3注塑机型号的确定6
3.1注射机参数报告6
3.2 Xs-Z-60技术参数7
4浇注系统设计8
4.1浇口的位置选择8
4.2流道设计8
4.3冷料穴的设计9
4.4浇口设计9
4.5浇口套设计9
5成型零件结构设计10
5.1型腔件的结构设计10
5.2型芯件的结构设计10
5.3成型零件钢材选用10
6模架选取11
7冷却系统设计12
8顶出机构设计13
总结14
致谢15
附录16
参考文献17
温馨提示:
1、题目前面的备注【字母数字编号】为本站整理分类的编号,与课题内容无关,请选题时忽视;
2、若题目上备注三维,则表示文件里包含三维源文件,由于三维组成零件数量较多,为保证预览截图的简洁性,本站将三维文件夹进行了打包。三维及CAD预览截图,均为本站电脑打开软件进行截图的,保证能够打开,下载原件超高清,下载后解压即可;
3、本站所有资源如无特殊说明,都需要本地电脑安装Office2007。图纸软件为AutoCAD,PROE,UG,SolidWorks,CATIA等;
4、本站所有图文资料仅供用户学习参考,不作为任何商用或其他用途;
5、本站不保证下载资源的准确性、安全性和完整性, 不包修改,不支持退换,同时也不承担用户因使用这些下载资源对自己和他人造成任何形式的伤害或损失;
6、 下载文件中如有侵权或不适当内容,请与我们联系,我们立即纠正。