

作品包括:
Word版设计说明书1份,共30页,约7200字
CAD版本图纸,共4张
SW三维图一套

摘要
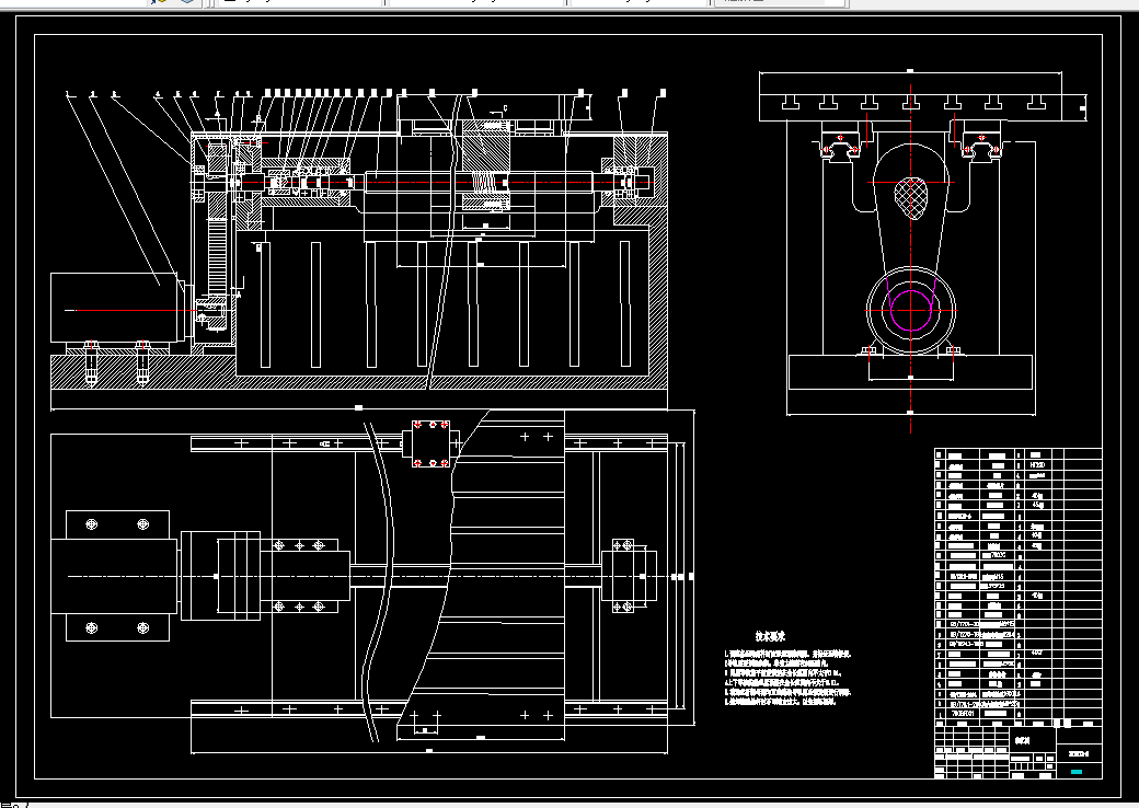
XK2313-3数控定梁定柱龙门铣床纵向进给部件设计,主要技术参数: (1)工作台面积(宽 X 长):1300X3000mm; (2)工作台 T 型槽9-22X130 (3)三向行程:3000/1500 /800mm (4)三向快速移动速度:10/10/10m/min; (5)工作台最大承重 kg:5000kg; (6)快速启动加速时间 s:0.3S; 工作台厚度:215mm 工作台重 量(kg)2650kg 定位精度:X0.02/1000 0.04/全程 Y0.02/1000 0.03/ 全 程; Z 0.02 重复定位精度0.01 (2)三向进给传动形式:均采用同步带减速滚珠丝杠传动形式,减速比推荐为 X(纵向)2、2.5 或 3(设计选择) (3)三向滚珠丝杠传动的运动组合形式:丝杠旋转和轴向固定,螺母移动。 (4)三向导轨:X、Y 向采用滚动导轨,Z 向采用矩形滑动+贴塑导轨结构。 (5)预计 X 向丝杠系统平均相对最大温升 2C。 (6)采用华中数控系统及其配套交流伺服电机,三轴控制三轴联动,主轴伺服 控制。 正向压力载荷近似分布
本研究以XK2313-3数控定梁定柱龙门铣床为对象,对其纵向进给部件进行了设计研究。该龙门铣床由床身、龙门架、滑台、主轴箱、三轴进给驱动机构及数控伺服部分构成。研究指出,移动龙门铣床具有成本低、制造简便的特点,并且在结构设计上,工作台移动式龙门铣床相较于传统类型,具有更优的动态响应性能。本设计采用固定龙门架,工作台移动时铣刀的切削运动更加稳定,从而提升了加工精度和机床响应性能。关键词:龙门铣床;纵向进给部件;结构设计;加工精度;机床响应性能。
关键词:龙门铣床;纵向进给部件;设计;
目录
第 1 章 已知条件 1
1.1设计任务 1
2.2已知条件 1
2.2 丝杠支承型式 3
第2章 设计主要步骤和内容 4
2.1方案选择 4
第 3 章 进给系统的设计和计算 6
3.1 导轨的设计和计算 6
3.1.1滑块分布和数量确定 7
3.1.2.导轨选择 7
3.1.3导轨校核 9
3.1.4导轨的安装形式 9
3.2 丝杠的选择 10
3.1.1当量转速计算 11
3.1.2丝杠选择 12
3.1.3稳定性验算 13
3.1.3刚度验算 15
3.3同步带计算 16
3.3.1 脉冲当量和传动比的确定 16
3.3.2带轮参数计算 16
3.1同步带选择 16
3.3.2同步带计算 17
3.4驱动电机的选择 18
3.4.1求加在电机轴上的总转动惯量Jep 18
3.4.2计算不同工况下,加在电机轴上的等效负载转矩Meq 19
3.4.3根据电机最大静转矩选择电机 20
3.4.4对电机的转矩和运行频率进行校核 20
3.5标准件及其他零件设计选择 20
3.5.1联轴器的选型 20
3.5.2 键联接设计与校核 21
3.5.3 滚动轴承计算与校核 21
3.6.4底座的设计 23
总 结 25
参考文献 25
温馨提示:
1、题目前面的备注【字母数字编号】为本站整理分类的编号,与课题内容无关,请选题时忽视;
2、若题目上备注三维,则表示文件里包含三维源文件,由于三维组成零件数量较多,为保证预览截图的简洁性,本站将三维文件夹进行了打包。三维及CAD预览截图,均为本站电脑打开软件进行截图的,保证能够打开,下载原件超高清,下载后解压即可;
3、本站所有资源如无特殊说明,都需要本地电脑安装Office2007。图纸软件为AutoCAD,PROE,UG,SolidWorks,CATIA等;
4、本站所有图文资料仅供用户学习参考,不作为任何商用或其他用途;
5、本站不保证下载资源的准确性、安全性和完整性, 不包修改,不支持退换,同时也不承担用户因使用这些下载资源对自己和他人造成任何形式的伤害或损失;
6、 下载文件中如有侵权或不适当内容,请与我们联系,我们立即纠正。