

作品包括:
word说明书一份,共16页,约7300字
工艺卡片一套
CAD版本图纸,共5张

《机械制造装备设计》课程设计计划书
一、课程设计目的
1、本课程设计是《机械制造装备设计》课程的延续,通过设计实践,进一步掌握机械制造装备设计的一般方法。
2、培养学生综合运用机械制图、机械设计基础、金属材料及热处理、机械制造结构工艺等相关知识,培养工程设计的能力。
3、培养学生使用手册、图册、有关资料及设计标准规范的能力。
4、提高学生技术总结及编制技术文件的能力。
5、为毕业设计打下良好的基础。
二、课程设计题目
CA6410后托架固定螺钉孔和定位销底孔加工钻床夹具
三、课程设计的内容与基本要求
(一)内容
1、完成CA6410后托架的固定螺钉孔和定位销底孔加工钻床专用夹具总装配图。
2、完成专用夹具部分零件工作图。
3、编写设计计算说明书。
4、总工作量要求:总图量为:0#图纸1张;设计计算说明书15页。
(二)基本要求
1、课程设计必须独立的进行,每人必须完成总工作量要求。
2、根据设计题目,完成规定的设计内容和工作量要求。
3、正确的运用手册、标准,设计图样必须符合国家标准规定。
4、设计计算说明书力求用工程术语,简明扼要,计算合理、准确,表达清晰,文字通顺简练,字迹工整。
四、进度安排
1、1-2天完成零件工作图绘制及夹具设计方案。
2、3-6天完成夹具总装配图设计。
3、7-10天完成专用夹具部分零件图及设计计算说明书。
工艺目录
目 录 1
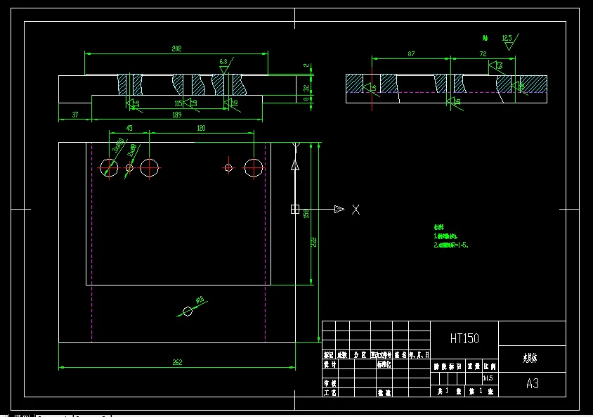
1 CA6140机床后托架加工工艺 3
1.1 CA6140机床后托架的工艺分析 3
1.2 CA6140机床后托架的工艺要求及工艺分析 3
1.2.1 CA6140机床后托架的技术要求 4
1.3 加工工艺过程 4
1.4 确定各表面加工方案 4
1.4.1 在选择各表面及孔的加工方法时,要综合考虑以下因素 4
1.4.2 平面的加工 4
1.4.3孔的加工方案 4
1.5 确定定位基准 5
1.5.1 粗基准的选择 5
1.5.2 精基准选择的原则 6
1.6 工艺路线的拟订 6
1.6.1工序的合理组合 7
1.6.2 工序的集中与分散 7
1.6.3 加工阶段的划分 8
1.6.4 加工工艺路线方案的比较 9
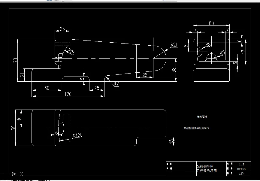
1.7 CA6140机床后托架的偏差,加工余量,工序尺寸及毛坯尺寸的确定 12
1.7.1 毛坯的结构工艺要求 12
1.7.2 CA6140机床后托架的偏差计算 13
1.8 确定切削用量及基本工时(机动时间) 16
1.8.1 工序1:粗、精铣底面 16
1.8.2 工序2 粗、半精、精镗CA6140侧面三杠孔 18
1.8.3 工序3:钻顶面四孔 24
1.8.4 工序4:钻侧面两孔 28
1.9 时间定额计算及生产安排 30
1.9.1 粗、精铣底面 31
1.9.2 镗侧面三杠孔 31
1.9.3 钻顶面四孔 32
结 论 34
参考文献 35
致 谢 36
夹具目录
目录 1
前言 2
1.产前准备 3
1.1年生产纲领 3
1.2生产条件 3
1.3零件工艺分析 3
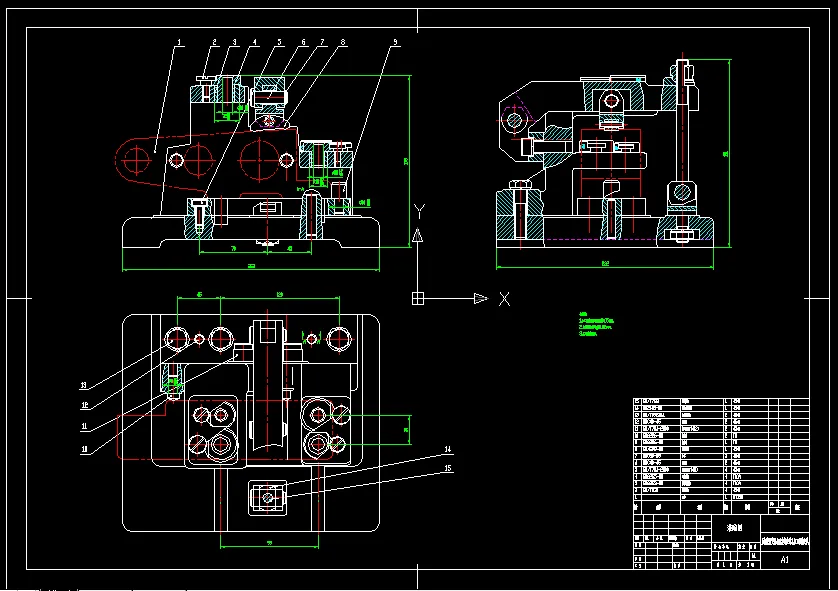
2.夹具结构设计 5
2.1定位机构 5
2.2夹紧机构 6
2.3 导向装置的选择 8
2.4机床夹具的总体形式 8
2.4.1确定夹具体: 9
2.4.2确定联接体: 9
2.4.3夹具体的总体设计图: 9
2.5绘制夹具零件图 9
2.6 绘制夹具装配图 10
3.定位误差设计 12
3.1误差分析 12
3.1.1定位误差 12
3.1.2产生定位误差的原因 13
3.2定位误差的计算 13
结论 15
致谢 16
参考文献 17
温馨提示:
1、题目前面的备注【字母数字编号】为本站整理分类的编号,与课题内容无关,请选题时忽视;
2、若题目上备注三维,则表示文件里包含三维源文件,由于三维组成零件数量较多,为保证预览截图的简洁性,本站将三维文件夹进行了打包。三维及CAD预览截图,均为本站电脑打开软件进行截图的,保证能够打开,下载原件超高清,下载后解压即可;
3、本站所有资源如无特殊说明,都需要本地电脑安装Office2007。图纸软件为AutoCAD,PROE,UG,SolidWorks,CATIA等;
4、本站所有图文资料仅供用户学习参考,不作为任何商用或其他用途;
5、本站不保证下载资源的准确性、安全性和完整性, 不包修改,不支持退换,同时也不承担用户因使用这些下载资源对自己和他人造成任何形式的伤害或损失;
6、 下载文件中如有侵权或不适当内容,请与我们联系,我们立即纠正。