

作品包括:
Word设计说明书1份,共32页,约23000字
工序卡1套
工艺过程卡1张
任务书一份
开题报告一份
CAD版本图纸,共5张
摘要
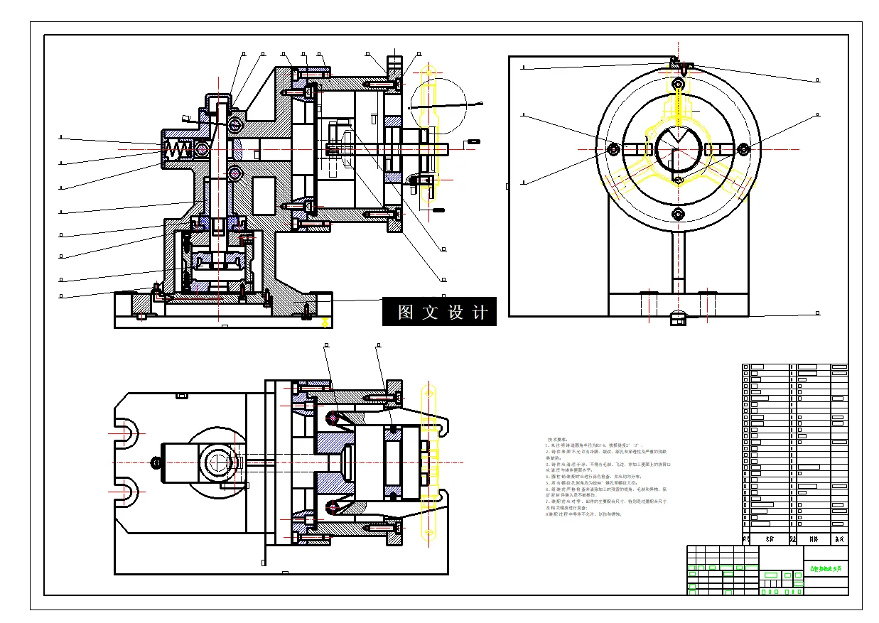
此次毕业设计的题目为糖果包装机凸轮架机械制造工艺及夹具设计。凸轮架是包装机的基础零件之一。它把包装机中的棘轮和盖板等零件和相关机构联接为一整体,使这些零件和机构保持正确的相对位置,以便其各个机构和零件能正确、协调一致地工作。凸轮架的零件加工质量会直接影响凸轮架与棘轮和盖板等零件的装配质量,进而影响到糖果包装机的整体使用性能和寿命。凸轮架属于平面型零件,尺寸较小,结构比较复杂,零件上有多个精度要求较高的平面和孔系,以及零件中有孔系要求分度加工。此次毕业设计通过对零件毛坯的分析,选择毛坯制造时的方法与原则及零件加工的工艺等。毛坯锻造成型后分析其加工的工艺及零件的生产纲领,通过对几个部分的分析整理,最终确定零件的机械加工工艺路线及所需的工艺工装设备,然后再进行零件的夹具设计。
温馨提示:
1、题目前面的备注【字母数字编号】为本站整理分类的编号,与课题内容无关,请选题时忽视;
2、若题目上备注三维,则表示文件里包含三维源文件,由于三维组成零件数量较多,为保证预览截图的简洁性,本站将三维文件夹进行了打包。三维及CAD预览截图,均为本站电脑打开软件进行截图的,保证能够打开,下载原件超高清,下载后解压即可;
3、本站所有资源如无特殊说明,都需要本地电脑安装Office2007。图纸软件为AutoCAD,PROE,UG,SolidWorks,CATIA等;
4、本站所有图文资料仅供用户学习参考,不作为任何商用或其他用途;
5、本站不保证下载资源的准确性、安全性和完整性, 不包修改,不支持退换,同时也不承担用户因使用这些下载资源对自己和他人造成任何形式的伤害或损失;
6、 下载文件中如有侵权或不适当内容,请与我们联系,我们立即纠正。