

作品包括:
说明书一份,共31页,约15000字
CAD版本图纸,共6张
SW三维图一份
摘 要
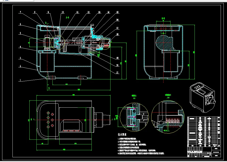
在我国的北方地区的主食是面食,大部分以面条未注,而在南方地区的主食是以米饭为主。所有在我国有一句话的说法是这样说,北方面南方米,这句话总体的概括了在我国的古代,一直至今的中国,在地方上的主食的点,就是北方吃面的多,而南方主要吃米。由于在古代的食品发展中中国的食品生产制造加工的卫生条件是较差的,而相对于一些其他的食品的使用方式而言,经过水煮沸后煮熟的面条是一种最为适用和洁净的主食,在吃了以后可以极大的减少在使用上的肠胃炎等疾病的发生,因此在主食上的发展中,面条成为了中国特别是北方最常见的一种食品主食之一。在目前的农产品的生产和加工上,不断的机械化的生产的背景下,在传统的使用手擀的方式做面条的生产效率是比较低的、而且在支座上操作的困难,使得买面条的不经济不划算的存在,还在加工上费时而且费力,浪费时间,造成成本太高。本次设计的全自动的面条机,适用于在家庭里自己制作面条使用,在现有的市场上面条机的设计和发展受到了人们在生活上的追捧,因此在本次的设计中,主要针对的市家庭全自动面条机的结构的设计,完成本次课题相关的额设计内容。
在本次的全自动面条机的毕业设计中,在机构的构思上参考了市场上的大型的面条机的结构设计的方案,对一般的家庭使用的面条机的结构进行构思和设计研究,从去做你知道面条机的整体结构上设计而言,在设计中重点对压面机上的压面杆的工作机构、出面部件、直流减速系统的设计等方面进行了重点的结构分析和设计。使得设计的步骤首先在明确本次设计的全自动面条机的设计任务,在设计的要求上以及设计的背景的情况下,广泛的查找相关的设计的资料,深入明确面条机的结构设计的纲领,并通过绘制三维Solidworks的设计,对其中面条机的重要部件做了一些相关的建模,完成全自动面条机的装配结构设计,并不断的实现部件的优化性的设计,最后对全自动面条机的绘制CAD结构图纸,完成了三维的爆炸图以及总装图和相应的部件图。
关键词:全自动 、面条机 、压面杆 、减速系统
目 录
第一章 绪论 6
1.1国内外面条机的概况及发展现状 6
1.2全自动面条机研究的目的与意义 7
1.3预期设计的目标 7
1.4任务要求及实现预期目标的可行性分析 8
1.5本次设计的主要解决的设计思路 9
1.6全自动面条机机构设计的任务内容 9
第二章 全自动面条机的设计思路和总体方案设计 10
2.1设计方案的提出 10
2.1.1结合现有全自动面条机的分析 11
2.1.2 压面杆的方案设计 11
2.2 全自动面条机的黑箱法分析: 12
2.3工作原理 12
2.4课题设计全自动面条机的优势分析 13
第三章 全自动面条机结构部件的设计 14
3.1压面杆机构的设计说明 14
3.1.1基本结构 14
3.1.2.影响压面杆压面的主要因素分析 14
3.2压面杆的机械生产效率计算 17
第四章 全自动面条机传动部件的设计 18
4.1直流减速马达的选择 18
4.2直流减速马达轮的设计 18
4.2.1确定计算功率 18
4.2.2传动系统的选择 19
4.2.4全自动面条机轮的选择 20
4.3全自动面条机齿轮的设计 21
4.3.1选择全自动面条机传动齿轮的材料及精度等级 21
4.3.2按全自动面条机接触强度进行初步计算 21
4.3.3按全自动面条机齿根弯曲强度设计 23
4.3.4确定全自动面条机齿数 24
4.3.5确定全自动面条机几何尺寸 24
第五章 全自动面条机轴的设计 25
5.1轴结构的设计 26
5.2轴的设计计算 27
5.2.1确定轴的尺寸 27
总 结 28
参考文献 29
温馨提示:
1、题目前面的备注【字母数字编号】为本站整理分类的编号,与课题内容无关,请选题时忽视;
2、若题目上备注三维,则表示文件里包含三维源文件,由于三维组成零件数量较多,为保证预览截图的简洁性,本站将三维文件夹进行了打包。三维及CAD预览截图,均为本站电脑打开软件进行截图的,保证能够打开,下载原件超高清,下载后解压即可;
3、本站所有资源如无特殊说明,都需要本地电脑安装Office2007。图纸软件为AutoCAD,PROE,UG,SolidWorks,CATIA等;
4、本站所有图文资料仅供用户学习参考,不作为任何商用或其他用途;
5、本站不保证下载资源的准确性、安全性和完整性, 不包修改,不支持退换,同时也不承担用户因使用这些下载资源对自己和他人造成任何形式的伤害或损失;
6、 下载文件中如有侵权或不适当内容,请与我们联系,我们立即纠正。