

作品包括:
word说明书一份,共69页,约27000字
任务书一份
开题报告一份
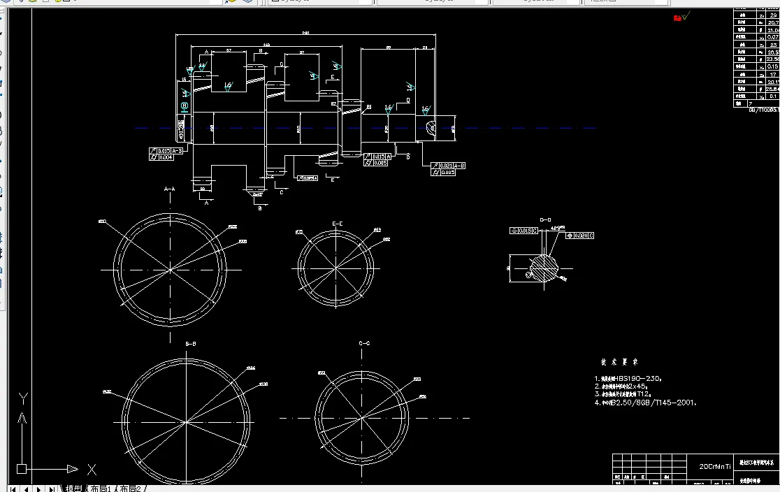
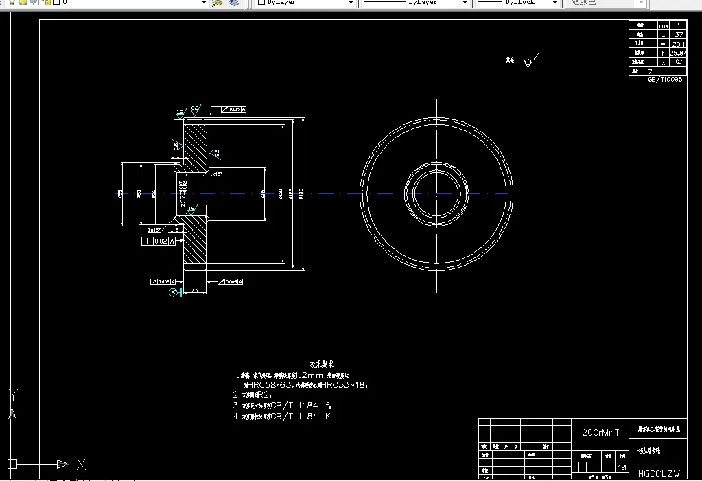
CAD版本图纸,共6张
摘 要
本次设计的题目是轻型货车变速器设计,采用车型为长城风骏皮卡。变速器由变速器传动机构和操纵机构组成,其基本功用是改变传动比,扩大驱动轮转矩和转速的变化范围,以适应经常变化的行驶条件,同时使发动机在有利的工况下工作;在发动机曲轴旋转方向不变的前提下使汽车能倒退行驶;利用空挡中断动力传递,以使发动机能够起动 、怠速,并便于变速器换挡或进行动力输出。
采用中间轴式变速器,该变速器具有两个突出的优点:一是其直接档的传动效率高,磨损及噪声也最小;二是在齿轮中心距较小的情况下仍然可以获得较大的一档传动比。这台变速器具有五个前进档(包括一个超速档五档)和一个倒档,并通过锁环式同步器来实现换档。本设计论述了变速器的总体结构,在设计中完成了各挡齿轮和轴的计算和校核及CAD绘图等工作。
关键词:变速器,锁环式同步器,传动比,中间轴,第二轴,齿轮
目 录
摘要……………………………………………………...…………………..…………I
Abstract………………………………………………………………………..……....II
第1章 绪论………………………………………………………………..…………1
1.1 汽车变速器概述…………………………………………………………..…..1
1.2汽车变速器设计的目的和意义………………………………………….……2
1.3 汽车变速器国内外现状和发展趋势………………………………….……...2
1.3.1 变速器国内外的现状…………………………………………….……2
1.3.2 汽车变速器的发展趋势……………………………………….……....3
1.4 手动变速器的特点和设计要求及内容……………………………….……...3
1.4.1 手动变速器的特点……………………………………………….……3
1.4.2 手动变速器的设计要求……………………………………….………4
1.4.3设计的主要内容………………………………………………….…….4
第2章 变速器传动机构布置方案确定………………………………..………6
2.1设计所依据的主要技术参数……………………………………………….…6
2.2 变速器传动机构的结构分析和形式选择………………………….………...6
2.2.1两轴式变速器的特点分析……………………………………….…….7
2.2.2 中间轴式变速器特点分析……………………………….……………7
2.2.3 倒挡布置方案分析……………………………………………….……8
2.2.4 传动机构布置的其他问题……………………………………….……10
2.3 零部件结构方案分析……………………………………………………........10
2.3.1 齿轮形式……………………………………………………….…...….10
2.3.2 换挡机构形式………………………………………………….…...….10
2.3.3 防止自动脱挡的结构……………………………………………….....11
2.3.4 变速器轴承………………………………………………………...…..11
2.4 本设计所采用的传动机构布置方案………………………………………….11
2.5 本章小结……………………………………………………………………….12
第3章 变速器主要参数的选择和齿数分配…………………………………..13
3.1 变速器各挡传动比的确定…………………………………………..…..…….13
3.1.1 变速器最低挡传动比的确定…………………………………………..13
3.1.2 变速器其他各挡传动比的确定……………………………..……..…..14
3.2中心距的确定…………………………………………………………..…..…..14
3.3变速器外形尺寸的初选……………………………………………..……..…..15
3.4 变速器齿轮参数的选择…………………………………………………..…...15
3.4.1模数……………………………………………………………………...15
3.4.2 齿形、压力角及螺旋角………………………………………………..16
3.4.3 齿宽……………………………………………………………………..16
3.4.4 齿顶高系数……………………………………………………………..17
3.5 变速器各挡齿轮齿数的分配……………………………………………..……17
3.5.1 确定一挡齿轮的 齿数….……………………………………………...17
3.5.2 对中心距进行修正……………………………………………………..18
3.5.3 确定常啮合齿轮的齿数………………………………………………..19
3.5.4 确定其他各挡齿轮的齿数……………………………………………..20
3.6 本章小结…………………………………………………….………………….23
第4章 变速器齿轮的设计计算…………………………………………………..24
4.1变速器齿轮的几何尺寸计算……………………………………………….…..24
4.2 计算变速器各轴的扭矩和转速………………………………………….…….24
4.3 齿轮的强度计算和材料选择………………………………………….……….25
4.3.1 齿轮损坏的原因和形式……………………………….………………..25
4.3.2 齿轮的材料选择……………………………………………….………..26
4.3.3 齿轮的强度计算………………………………………….……………..27
4.4 本章小结…………………………………………………………….………….38
第5章 变速器轴和轴承的设计计算………………………………………...…..39
5.1初选变速器轴的轴径和轴长…………………………………………….……..39
5.2 轴的结构设计………………………………………………………….….……39
5.3 变速器轴的强度计算…………………………………………………..….…...40
5.3.1齿轮和轴上的受力计算…………………………………………………40
5.3.2 轴的强度计算…………………………………………………………...41
5.3.3 轴的刚度计算……………………………………………………..……...46
5.4变速器轴承的选择和校核……………………………………………………….49
5.4.1 第一轴轴承的选择和校核……………………………………………….49
5.4.2 第二轴轴承的选择和校核……………………………………………….50
5.4.3 中间轴轴承的选择和校核……………………………………………….51
5.5 本章小结………………………………………………………………………….51
第6章 同步器和操纵机构的设计选用…………………………………………..52
6.1 同步器的设计选用……………………………………………………………….52
6.1.1 锁环式同步器 …………………………………………………………52
6.1.2 锁销式同步器 …………………………………………………………53
6.1.3 锁环式同步器主要尺寸的确定 ………………………………………54
6.1.4 同步器主要参数的确定…………………………………………………..55
6.2 变速器操纵机构的设计选用…………………………………………………….57
6.2.1 变速器操纵机构的分类…………………………………………………..57
6.2.2 变速器常用操纵机构分析………………………………………………..58
6.3 变速器箱体的设计……………………………………………………………….59
6.4 本章小结………………………………………………………………………….60
结论…………………………………………………………………...................................61
参考文献………………………………………………………………………………….62
致谢………………………………………………………………………………………...63
附录A……………………………………………………………………………………...64
附录B……………………………………………………………………………………...65
温馨提示:
1、题目前面的备注【字母数字编号】为本站整理分类的编号,与课题内容无关,请选题时忽视;
2、若题目上备注三维,则表示文件里包含三维源文件,由于三维组成零件数量较多,为保证预览截图的简洁性,本站将三维文件夹进行了打包。三维及CAD预览截图,均为本站电脑打开软件进行截图的,保证能够打开,下载原件超高清,下载后解压即可;
3、本站所有资源如无特殊说明,都需要本地电脑安装Office2007。图纸软件为AutoCAD,PROE,UG,SolidWorks,CATIA等;
4、本站所有图文资料仅供用户学习参考,不作为任何商用或其他用途;
5、本站不保证下载资源的准确性、安全性和完整性, 不包修改,不支持退换,同时也不承担用户因使用这些下载资源对自己和他人造成任何形式的伤害或损失;
6、 下载文件中如有侵权或不适当内容,请与我们联系,我们立即纠正。