

作品包括:
word说明书一份,共48页,约18000字
任务书一份
开题报告一份
CAD版本图纸,共8张
摘 要
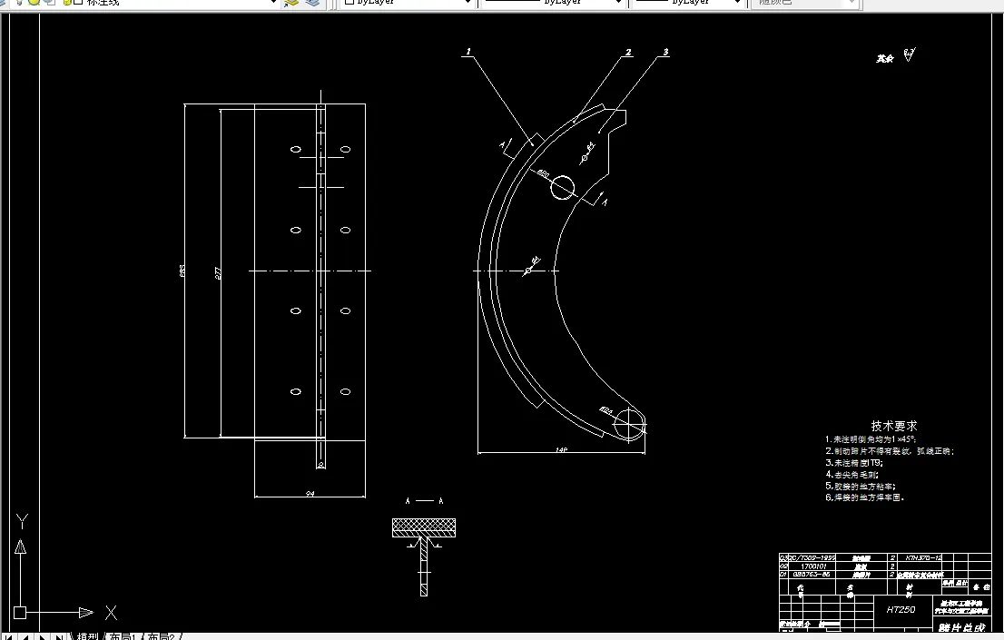
从汽车诞生时起,车辆制动器在车辆的安全方面就起着决定性作用。目前,汽车所用制动器几乎都是摩擦式的,可分为鼓式和盘式两大类。盘式制动器的主要优点是在高速刹车时能迅速制动,散热效果优于鼓式刹车,制动效能的恒定性好。鼓式制动器的主要优点是刹车蹄片磨损较少,成本较低,便于维修、由于鼓式制动器的绝对制动力远远高于盘式制动器,所以普遍用于后轮驱动的卡车上,但由于为了提高其制动效能而必须加制动增力系统,使其造价较高,故轻型车一般还是使用前盘后鼓式。
本设计前轴采用浮动钳盘式制动器,后轴采用制动器为领从蹄式鼓式制动器。主要设计内容包括制动器结方案分析与选择、制动器主要参数的确定与计算、盘式与鼓式制动器具体结构参数设计与强度校核。
关键词:轻型载货汽车,盘式制动器,鼓式制动器,制动蹄,设计
目 录
摘要 I
ABSTRACT II
第1章 绪论 1
1.1 制动器的目的意义 1
1.2 制动器的研究现状 1
1.3 制动器的研究方法 2
1.4 本章小结 2
第2章 制动器方案论证分析与选择 3
2.1 制动器结构方案的确定 3
2.1.1鼓式制动器结构方案的确定 3
2.1.2盘式制动器结构方案的确定 6
2.2制动器主要参数及其选择 7
2.2.1制动器设计相关主要技术参数 8
2.2.2同步附着系数 8
2.2.3前后轴制动力矩分配系数b 8
2.2.4制动器最大制动力矩 9
2.3 本章小结 9
第3章 盘式制动器结构设计计算与校核 10
3.1 盘式制动器的主要参数确定 10
3.1.1 制动盘直径D 10
3.1.2 制动盘厚度h 10
3.1.3 摩擦衬片内半径 与外半径 10
3.1.4 摩擦衬片工作面积A 10
3.2 盘式制动器的主要零部件设计与计算 11
3.2.1 制动盘 11
3.2.2 制动钳 11
3.2.3 制动块 11
3.2.4 摩擦材料 12
3.2.5 制动轮缸 12
3.2.6制动器间隙的调整方法 13
3.3 盘式制动器强度校核 13
3.3.1摩擦衬片的磨损特性的计算 13
3.3.2 盘式制动器最大制动力矩的计算 14
3.3.3 盘式制动器最大制动力矩的计算 16
3.4 本章小结 18
第4章 鼓式制动器结构设计计算与校核 19
4.1 鼓式制动器的主要参数确定 19
4.1.1 鼓式制动器的结构参数与摩擦系数 19
4.2 鼓式制动器的主要零部件设计与计算 20
4.2.1 制动鼓 20
4.2.2 制动蹄 21
4.2.3 制动底板 21
4.2.4 制动蹄的支承 21
4.2.5 制动蹄片上的制动力矩与张开力 21
4.2.6 制动器因数与制动蹄因数的分析计算 26
4.2.7 驻车制动计算 28
4.2.8 制动轮缸的选择 29
4.3 鼓式制动器强度校核 31
4.3.1紧固摩擦片铆钉的剪切应力验算 31
4.3.2制动蹄支承销剪切应力计算 32
4.3.3 回位弹簧强度校核 32
4.4 本章小结 33
结 论 34
参考文献 35
致 谢 36
附录1 37
附录2 39
温馨提示:
1、题目前面的备注【字母数字编号】为本站整理分类的编号,与课题内容无关,请选题时忽视;
2、若题目上备注三维,则表示文件里包含三维源文件,由于三维组成零件数量较多,为保证预览截图的简洁性,本站将三维文件夹进行了打包。三维及CAD预览截图,均为本站电脑打开软件进行截图的,保证能够打开,下载原件超高清,下载后解压即可;
3、本站所有资源如无特殊说明,都需要本地电脑安装Office2007。图纸软件为AutoCAD,PROE,UG,SolidWorks,CATIA等;
4、本站所有图文资料仅供用户学习参考,不作为任何商用或其他用途;
5、本站不保证下载资源的准确性、安全性和完整性, 不包修改,不支持退换,同时也不承担用户因使用这些下载资源对自己和他人造成任何形式的伤害或损失;
6、 下载文件中如有侵权或不适当内容,请与我们联系,我们立即纠正。