

作品包括:
word说明书一份,共57页,约23000字
开题报告一份
CAD版本图纸,共6张
摘 要
随着经济的发展,公路上高级轿车越来越多,道路清障车在作业时应十分注意对事故车辆的保护,特别对一些新车、高档轿车,应必免因为作业中捆绑、挤压以及运输对事故车辆的损坏,特别对一些高档轿车,应避免因为作业中的捆绑、挤压、以及运输中的碰撞造成对事故车辆机件及外观上的进一步损伤了改。RL5090背式清障车作为专用清障车的一种,它利用附加的液压绞盘、液压举升装置、跳板能够对事故车辆施行装载运输,实现对事故车辆的快速处理,并且不受事故车辆车速的限制,因此对RL5090背式清障车进行改装设计。
在查阅大量相关资料的基础上,深入分析了背式清障汽车设计的总体方案,对底盘、升降机构、液压系统、跳板、液压绞盘以及相关附件等进行了合理选择。并通过对底盘型号的选取,确定了整车性能参数。确定了对背式清障汽车的总体参数。此外,对改装后的整车性能也进行了分析和计算,以确定是否能满足国家标准。
关键词 : 清障车改装设计;平板;液压绞盘;升降机构;液压系统
目 录
摘要 l
Abstract ll
第1章 绪论 1
1.1 研究本课题的目的和意义 1
1.2 道路清障汽车定义、组成、功用 1
1.3 国内外道路清障汽车的发展概况 2
1.3.1 国内市场情况 3
1.3.2 国外市场情况 3
1.4 道路清障汽车发展方向与前景 3
1.5 本设计的主要内容 4
第2章 道路清障汽车参数的确定 5
2.1 方案一固定轴荷式牵引型清障车 5
2.1.1 可调轴荷式牵引装置 6
2.2 方案二臂架起重机型清障车 6
2.2.1 基本类型 7
2.2.2 主要结构 7
2.3 方案三背式清障车道路清障车 9
2.3.1 装车作业过程 9
2.4 方案四门架叉式清障车 10
2.4.1 结构 10
2.4.2 作业过程 11
2.4.3 优点和不足 12
2.5 总体机构设计方案的确定 13
2.6 本章小结 13
第3章 道路清障车结构方案分析 14
3.1基本尺寸参数的确定 14
3.2 质量参数的确定 14
3.2.1 额定装载质量 14
3.2.2整车整备质量 14
3.2.3 总质量 15
3.3 道路清障汽车底盘的选择 15
3.3.1 底盘型号的选定 15
3.4 本章小结 17
第4章 清障车副车架的设计计算 19
4.1 道路清障汽车副车架的设计与分析 20
4.1.1副车架的截面形状及尺寸 20
4.1.2副车架的前端形状及安装位置 21
4.1.3 副车架与主车架的连接 22
4.1.4 副车架尺寸和材料的确定 24
4.1.5 静载荷的分析 24
4.1.6型钢的选取 24
4.1.7 销的校核 24
4.1.8 液压缸底座和副车架之间螺栓的选取和校核 24
4.1.9 副车架螺栓的选取和校核 24
4.2 本章小结 24
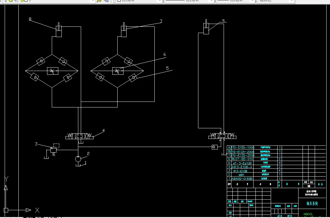
第5章 液压系统设计 25
5.1举升机构形式的选择 25
5.2 直接推动式举升机构的具体设计 27
5.2.1 工作原理 27
5.2.2 参数设计 28
5.2.3 支点的选择 29
5.2.4 平板与油缸联接点(中指点)的选取 30
5.2.5 油缸前支点的选取 29
5.2.6 油缸形成的选取 30
5.2.7 油缸直径的选取 31
5.2.8 液压缸的推力和拉力校核 34
5.2.9 缸壁厚度的确定 35
5.3 液压绞盘的设计 33
5.3 .1系缆部分 34
5.3 .2液压马达部分 34
5.3 .3绞盘性能参数计算 34
5.3 .4液压马达的性能计算 34
5.4 油泵的计算与选型 34
5.4.1 油泵工作压力的计算 34
5.4.2 油泵理论流量的计算 34
5.4.3 油泵排量的计算 35
5.4.4 油泵功率的计算 35
5.4.5 油泵的选型 35
5.5 油箱与油管的计算与选型 36
5.5.1 油箱容积的计算 36
5.5.2 油管内径的计算 36
5.6 液压卷筒选取 36
5.7分配阀的选取 40
5.8取力器的选型 38
5.8.1 取力器布置方案的选定 38
5.8.2取力器取力方式前置式 38
5.8.3 飞轮前端取力 38
5.8.4 飞轮后端取力 39
5.8.5 变速器上盖取力 39
5.8.6变速器后盖取力 39
5.8.7 取力器型号的选型 39
5.9 本章小结 39
第6章 道路清障车基本性能参数计算 41
6.1 道路清障车整车参数 41
6.2动力性计算 41
6.2.1 发动机外特性 43
6.2.2 汽车行驶方程式 46
6.2.3动力性评价指标的计算 48
6.2.4道路清障车整车动力性计算 48
6.3 燃油经济性计算 50
6.4 道路清障车稳定性计算 51
6.4.1道路清障车运输状态稳定性计算 52
6.4.2道路清障汽车载运时稳定性计算 53
6.4.3工具箱中工具的选取 54
6.5 本章小结 54
结论 55
参考文献 56
致谢 57
附录 58
温馨提示:
1、题目前面的备注【字母数字编号】为本站整理分类的编号,与课题内容无关,请选题时忽视;
2、若题目上备注三维,则表示文件里包含三维源文件,由于三维组成零件数量较多,为保证预览截图的简洁性,本站将三维文件夹进行了打包。三维及CAD预览截图,均为本站电脑打开软件进行截图的,保证能够打开,下载原件超高清,下载后解压即可;
3、本站所有资源如无特殊说明,都需要本地电脑安装Office2007。图纸软件为AutoCAD,PROE,UG,SolidWorks,CATIA等;
4、本站所有图文资料仅供用户学习参考,不作为任何商用或其他用途;
5、本站不保证下载资源的准确性、安全性和完整性, 不包修改,不支持退换,同时也不承担用户因使用这些下载资源对自己和他人造成任何形式的伤害或损失;
6、 下载文件中如有侵权或不适当内容,请与我们联系,我们立即纠正。