

作品包括:
WORD版设计说明书1份,共27页,约8700字
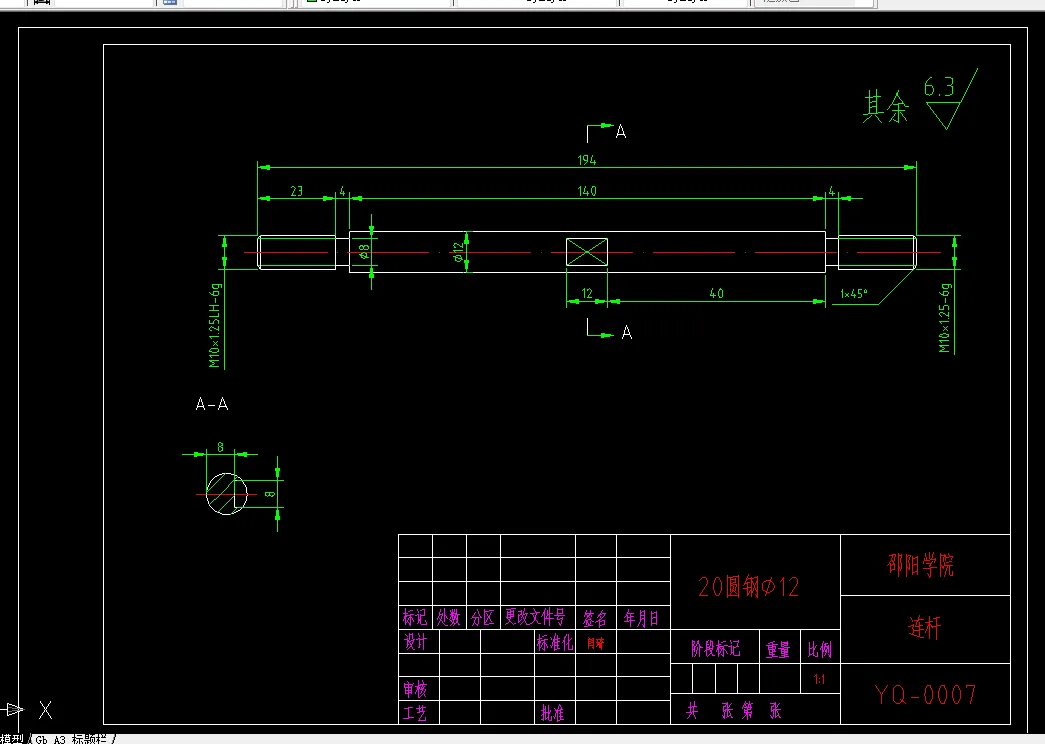
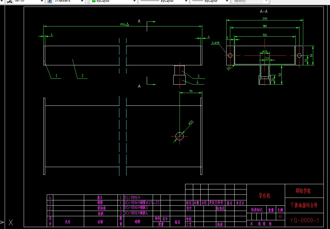
CAD版本图纸,共27张
内容提要
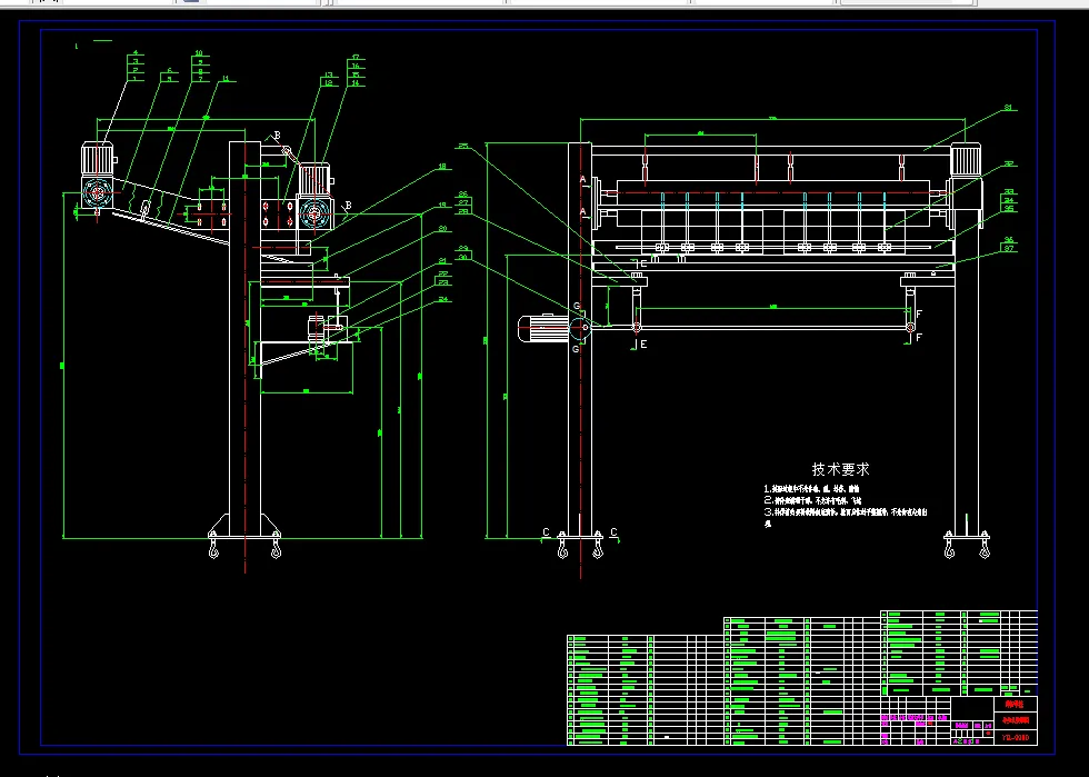
目前,国内的导丝机都在强调“导丝辊的数量决定丝束的均匀性” ,但是丝辊多了会带来很多问题比如成本高、结构复杂故障率大、检修不方便等。我所设计的导丝机紧采用了一个导丝辊与一个落丝辊通过速度的协调来实现丝片在导丝过程中所受的力的均匀性,一样可以很好的完成工艺的要求。
本人设计的导丝机具有以下优点:
1. 适应性强。
2. 容易操作。
3. 生产效率高。
4. 结构简单,可靠性强。
5. 易于保养。
目 录
内容提要..........................................................................................................Ⅰ
Summary..........................................................................................................Ⅱ
绪 论..............................................................................................................1
第2章 导丝机的总体方案设计.......................................................................4
2.1 导丝的目的和作用.............................................................................4
2.2 导丝机的原理.....................................................................................4
第3章 传动部件的选择与设计......................................................................6
3.1 交流变频电机的选择.........................................................................6
3.2 联轴器的选择.....................................................................................7
3.3 计算传动比及轴的参数....................................................................8
3.4 轮毂及部件的设计与校核................................................................9
第4 章 铸铁箱体及其附件的设计..................................................................16
4.1 箱体的设计.......................................................................................16
4.2 箱体附件的设计...............................................................................17
第5章 润滑、散热、密封系统的设计...........................................................18
5.1 润滑方式和润滑系统.......................................................................18
5.2 内部油路及密封设计.......................................................................21
结束语..............................................................................................................22
参考文献..........................................................................................................23
致谢..................................................................................................................24
温馨提示:
1、题目前面的备注【字母数字编号】为本站整理分类的编号,与课题内容无关,请选题时忽视;
2、若题目上备注三维,则表示文件里包含三维源文件,由于三维组成零件数量较多,为保证预览截图的简洁性,本站将三维文件夹进行了打包。三维及CAD预览截图,均为本站电脑打开软件进行截图的,保证能够打开,下载原件超高清,下载后解压即可;
3、本站所有资源如无特殊说明,都需要本地电脑安装Office2007。图纸软件为AutoCAD,PROE,UG,SolidWorks,CATIA等;
4、本站所有图文资料仅供用户学习参考,不作为任何商用或其他用途;
5、本站不保证下载资源的准确性、安全性和完整性, 不包修改,不支持退换,同时也不承担用户因使用这些下载资源对自己和他人造成任何形式的伤害或损失;
6、 下载文件中如有侵权或不适当内容,请与我们联系,我们立即纠正。