

作品包括:
word说明书一份,共42页,约16000字
任务书一份
开题报告一份
外文翻译一份
CAD版本图纸,共17张
摘要
按照我国建筑规范,绝大部分建筑工程基础土方开挖后都要对槽底地质进行勘探,一般称钎探,以确定基础下一定深度内地质的均匀度,看是否有局部过硬或过软的地质情况,以便于地基处理。以往一般采用人工钎探的方式进行,但是人工钎探存在费用高、速度慢、不标准、力量不均等诸多弊端,且多数工人往往应付了事,起不到应有的效果。
本设计新型电动钎探机最大的优点是设计构思新颖,体积小,重量轻,结构紧凑,锤重一定,锤头自然下落,无其他人为因素,运输方便,移机快捷,安全可靠,便于维修,操作简单,一看便会。采用单相电源,工作效率是人工打钎的五倍以上,可节省大量的人力物力及所需费用,有效缩短工期。
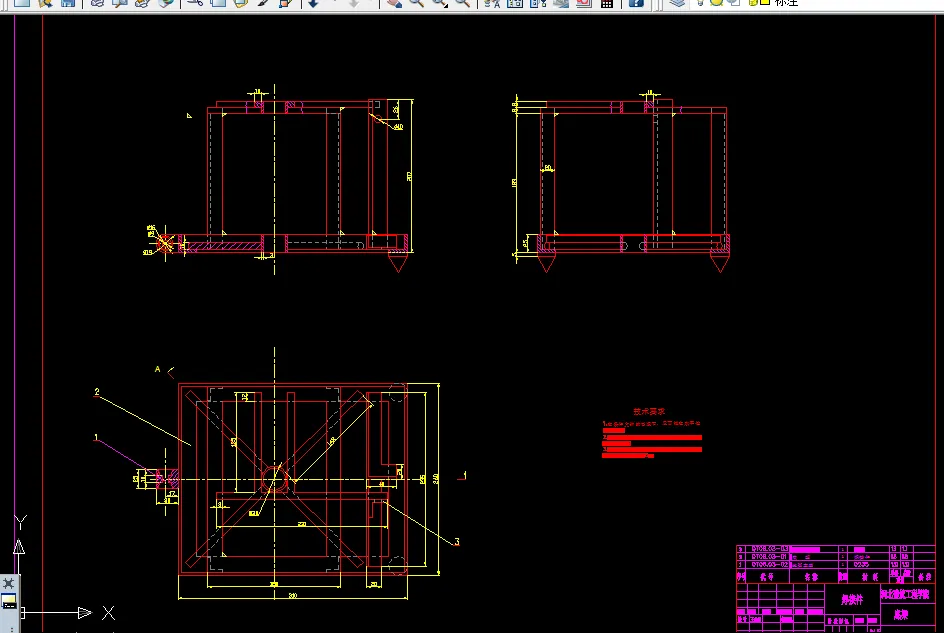
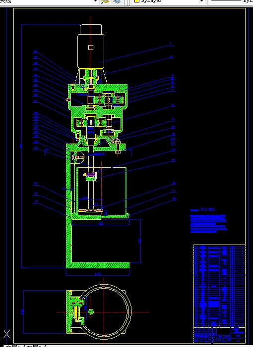
新型电动钎探机主要有三部分组成:电磁锤、自锁器与地脚组成。其工作过程如下:用底架把探杆放置稳当,并与地面垂直,然后利用锤钎装置锤击探杆头部,锤入一定的深度,并记录锤击次数,最后利用起钎设备把探杆从地下拔起,完成一次钎探工作,然后移动放钎器到下一钎探点接着进行钎探。
关键词: 电动 新型 钎探机
目录
第一章 前言 1
1.1钎探机的常识和技术现状 1
1.2人工钎探与钎探机的优缺点 1
1.3钎探机的市场前景 2
1.4钎探机工作过程和机械构造 3
1.5钎探的工艺标准 4
第二章 总体设计 8
2.1概述 8
2.2设计任务 8
2.3设计目的 9
2.4设计方案选择 9
2.5设计题目分析及设计思想 10
2.6设计主参数及机构类型确定 11
第三章 主要部件设计 12
3.1电磁锤设计 12
3.2锁钎器设计 20
第四章 辅助部件设计 28
4.1底架设计 28
4.2控制系统设计 37
第五章 钎探机的使用 38
5.1钎探机使用前的准备 38
5.2钎探机的使用 38
5.3钎探机的调整 38
参考文献 39
设计小结 40
附:英文翻译
英文原文
温馨提示:
1、题目前面的备注【字母数字编号】为本站整理分类的编号,与课题内容无关,请选题时忽视;
2、若题目上备注三维,则表示文件里包含三维源文件,由于三维组成零件数量较多,为保证预览截图的简洁性,本站将三维文件夹进行了打包。三维及CAD预览截图,均为本站电脑打开软件进行截图的,保证能够打开,下载原件超高清,下载后解压即可;
3、本站所有资源如无特殊说明,都需要本地电脑安装Office2007。图纸软件为AutoCAD,PROE,UG,SolidWorks,CATIA等;
4、本站所有图文资料仅供用户学习参考,不作为任何商用或其他用途;
5、本站不保证下载资源的准确性、安全性和完整性, 不包修改,不支持退换,同时也不承担用户因使用这些下载资源对自己和他人造成任何形式的伤害或损失;
6、 下载文件中如有侵权或不适当内容,请与我们联系,我们立即纠正。