

作品包括:
word说明书一份,共43页,约13000字
CAD版本图纸,共5张
摘要
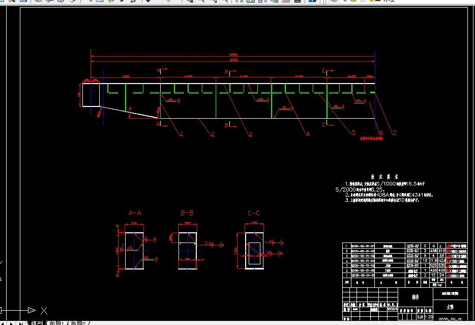
桥式起重机的梁有多种结构,本设计采用箱形双梁结构。主梁跨度25.5m ,是由上、下盖板和两块垂直的腹板组成封闭箱形截面实体板梁连接。因本设计的起重量比较大,故主梁内部设置横纵加劲板,以保证主梁桥架受载后的稳定性。
端梁部分在起重机中有着重要的作用,它是承载平移运输的关键部件。端梁部分是由车轮组合端梁架组成,端梁部分主要有上盖板,腹板和下盖板组成;端梁是由两段通过连接板和角钢用高强螺栓连接而成。在端梁的内部设有加强筋,以保证端梁架受载后的稳定性。
本设计大车运行机构部分采用分别驱动,分别驱动省去了中间部分的传动轴,使得质量减轻,尺寸减小。分别驱动的结构不因主梁的变形而在大车传动性机能方面受到影响,从而保证了运行机构多方面的可靠性。所以,大车运行机构采用分别驱动。
设计中参考了各种资料, 运用各种途径, 努力利用各种条件来完成此次设计。本设计通过反复斟酌各种设计方案, 认真讨论, 不断反复校核, 力求设计合理;通过采取计算机辅助设计方法以及参考前人的先进经验, 力求有所创新;通过计算机辅助设计方法, 绘图和设计计算都充分发挥计算机的强大辅助功能, 力求设计高效。
关键词:箱形双梁 桥式起重机 主梁 端梁
目录
第1章 前言??????????????????????????????????????????????????????????????????????????1
1.1 概述?????????????????????????????????????????????????????????????????????????????1
1.2我国的发展前景?????????????????????????????????????????????????????????????????2
第2章 总体设计????????????????????????????????????????????????????????????????????5
2.1起重机的总体设计??????????????????????????????????????????????????????????????5
2.2选择确定总体参数??????????????????????????????????????????????????????????????6
2.3主要尺寸的确定?????????????????????????????????????????????????????????????????6
2.4 主、端梁的连接????????????????????????????????????????????????????????????????7
第3章 主要部分的计算??????????????????????????????????????????????????????????9
3.1 主梁的计算?????????????????????????????????????????????????????????????????????9
3.2 端梁的计算????????????????????????????????????????????????????????????????????18
3.3 主要焊缝的计算???????????????????????????????????????????????????????????????23
第4章 大车运行机构的计算???????????????????????????????????????????????????26
4.1 确定机构的传动方案??????????????????????????????????????????????????????????26
4.2 车轮材料的选择???????????????????????????????????????????????????????????????28
4.3 车轮强度验算??????????????????????????????????????????????????????????????????29
4.4 运行阻力计算??????????????????????????????????????????????????????????????????30
4.5 电动机的计算??????????????????????????????????????????????????????????????????30
4.6 减速器的选择??????????????????????????????????????????????????????????????????31
4.7 验算启动时间??????????????????????????????????????????????????????????????????32
4.8 选择制动器?????????????????????????????????????????????????????????????????????34
4.9 疲劳强度验算???????????????????????????????????????????????????????????????????35
第5章 毕业设计小节??????????????????????????????????????????????????????????????37
参考文献???????????????????????????????????????????????????????????????????????????????38
温馨提示:
1、题目前面的备注【字母数字编号】为本站整理分类的编号,与课题内容无关,请选题时忽视;
2、若题目上备注三维,则表示文件里包含三维源文件,由于三维组成零件数量较多,为保证预览截图的简洁性,本站将三维文件夹进行了打包。三维及CAD预览截图,均为本站电脑打开软件进行截图的,保证能够打开,下载原件超高清,下载后解压即可;
3、本站所有资源如无特殊说明,都需要本地电脑安装Office2007。图纸软件为AutoCAD,PROE,UG,SolidWorks,CATIA等;
4、本站所有图文资料仅供用户学习参考,不作为任何商用或其他用途;
5、本站不保证下载资源的准确性、安全性和完整性, 不包修改,不支持退换,同时也不承担用户因使用这些下载资源对自己和他人造成任何形式的伤害或损失;
6、 下载文件中如有侵权或不适当内容,请与我们联系,我们立即纠正。