

作品包括:
Word版说明书1份,共44页,约13000字
任务书一份
开题报告一份
CAD版本图纸,共10张


摘要
在工业中换热器是必不可少的,特别在化工行业和石化行业中频繁被应用到。在国民经济中占据着十分重要的地位,尤其是在世界能源危机发生后,换热器在缓和资源紧缺的应用中显得特别重要,因而国内外各研究机构、高等学府对换热器的研究一向十分注重。
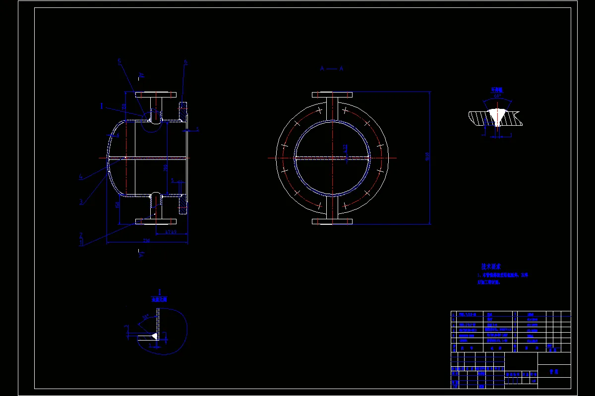
此次设计的是填料函式换热器。依据换热器的特性进行设计时主要依靠已查阅到的工艺条件和理论知识。
此文通过查阅有关于换热器方面的书籍而得到了一些知识,对换热器有了大致的了解。紧接着计算填料函式换热器壳与管程的设计压力还有校核其他元件。
根据要求和选择合理的结构形式下,绘制出标准的设计图纸。技术要求要在图纸上明确标注。
此次设计的过程中,要在安全的前提下尽量保证其质量和经济的合理性、实用性。设计时必须要严格按照精确的设计步骤和方法,要符合国家的相关规定和标准。
关键词:节能;结构;强度;管程
目录
1概述1
1.1设备的简介1
1.2设备的基本结构1
1.3设备的分类1
1.3.3蓄能式换热器2
1.3.4板、管式换热器2
1.3.5直接接触式换热器2
1.4填料函式换热器2
1.4.1填料函式换热器的概述2
1.4.2填料函式换热器结构特点2
1.5设计的任务和思想3
1.5.1设计任务3
1.5.2设计的思想3
2填料函式换热器的主要部件与结构设计3
2.1 F180填料函式换热器的工艺条件4
2.2选取换热器尺寸4
2.2.1换热管尺寸的选取4
2.2.2计算换热管根数4
2.2.3壳程直径D的计算4
2.3进出口的设计5
2.3.1接管外伸长度5
2.3.3排气、排液管5
2.4接管最小位置6
2.4.1壳程接管位置的最小尺寸6
2.4.2管箱接管位置最小尺寸6
2.5管板7
2.5.1最小厚度8
2.6管箱8
2.6.1管箱结构形式8
2.6.2管箱材料的选择9
2.7换热管9
2.7.1换热管的形式和尺寸9
2.7.2换热管的材料9
2.7.3换热管的排列形式10
2.7.4换热管的管心距10
2.8管板与壳体的连接10
2.9管板与管箱的连接11
3管子和管板的连接12
3.1胀接12
3.2胀焊结合12
4 F180填料函式式换热器其他各部件结构12
4.1折流板12
4.1.1折流板的主要几何参数13
4.1.2折流板的最小厚度13
4.1.3折流板的管孔13
4.1.4折流板外直径及允许偏差14
4.1.5折流板间距14
4.2防冲与导流15
4.2.1防冲板的型式15
4.2.2防冲板的位置和尺寸16
4.3拉杆与定距管16
4.3.1拉杆的结构和尺寸16
4.3.2拉杆的布置18
4.3.3定距管尺寸18
4.4封头、法兰以及鞍座的选择18
4.4.1封头的选用18
4.4.2法兰结构类型18
4.4.3鞍座的选择18
5填料函式换热器的强度设计及校核19
5.1壳体19
5.2管箱21
5.3法兰的强度校核21
5.3.1垫片21
5.3.2螺栓22
5.3.3法兰23
5.3.4法兰设计力矩23
5.4管板厚度计算24
5.4.1管板参数计算24
5.4.2结构尺寸24
5.4.3管板应力计算25
5.4.4操作力力矩26
5.4.5法兰预紧力26
5.4.6计算径向应力27
5.4.7计算设计力矩M和管板延长部分的法兰应力27
5.4.8应力校核28
5.5管子与管板连接拉脱力的校核29
5.5.1换热管轴向应力29
5.5.2换热管与管板连接拉脱力30
5.6开孔补强的计算30
5.6.1概述30
5.6.2壳体开孔补强30
5.7压力试验30
5.7.1管程圆筒31
5.7.2壳程圆筒31
6填料函式换热器的制造、安装、检验、清洗和维修31
6.1概述31
6.2材料验收32
6.3填料函式换热器的制造32
6.3.1壳体圆筒32
6.3.2管箱32
6.3.3管板32
6.3.4管孔加工32
6.3.5管束的组装32
6.4安装32
6.5清洗33
6.6填料函式换热器的日常维护和故障处理33
6.7容器的铭牌要求33
6.8压力容器的油漆、包装、运输33
结论35
致谢37
参考文献38
温馨提示:
1、题目前面的备注【字母数字编号】为本站整理分类的编号,与课题内容无关,请选题时忽视;
2、若题目上备注三维,则表示文件里包含三维源文件,由于三维组成零件数量较多,为保证预览截图的简洁性,本站将三维文件夹进行了打包。三维及CAD预览截图,均为本站电脑打开软件进行截图的,保证能够打开,下载原件超高清,下载后解压即可;
3、本站所有资源如无特殊说明,都需要本地电脑安装Office2007。图纸软件为AutoCAD,PROE,UG,SolidWorks,CATIA等;
4、本站所有图文资料仅供用户学习参考,不作为任何商用或其他用途;
5、本站不保证下载资源的准确性、安全性和完整性, 不包修改,不支持退换,同时也不承担用户因使用这些下载资源对自己和他人造成任何形式的伤害或损失;
6、 下载文件中如有侵权或不适当内容,请与我们联系,我们立即纠正。