

作品包括:
Word版说明书1份,共34页,约16000字
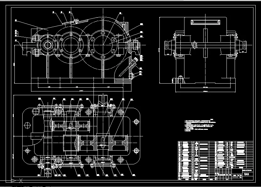
CAD版本图纸,共10张
生姜清洗机设计
摘 要:通过对生姜清洗的相关资料的查阅与正确分析,设计了清洗装置。其目的是解决生姜体型匀称,不易清洗,靠
人工清洗费力的技术问题,主要是对茎累物质的清洗。对生姜清洗机的组成:电动机,减速器,轴,滚筒,轴承等的选
用及设计,校核齿轮、轴以及轴承的使用强度:分析重要零部件的受力及载荷分布情况。用AutoCAD画出了生姜清洗机装
置的零件图和装配图。
关键词:生姜清洗机;机械设计;减速器;滚筒
目 录
摘要……………………………………………………………………………1
关键词…………………………………………………………………1
1 前言………………………………………………………………………………2
2 清洗机的概况及现状分析………………………………………………………2
2.1 概况………………………………………………………………………2
2.2 现状分析…………………………………………………………………3
3 清洗机的结构及工作原理………………………………………………………4
3.1 清洗机结构………………………………………………………………4
3.2 工作原理…………………………………………………………………4
4 设计方案的确定…………………………………………………………………5
4.1 原始资料及数据…………………………………………………………5
4.2 整体方案的确定…………………………………………………………5
4.2.1 确定传动方案……………………………………………………5
4.2.2 机构类型的选择…………………………………………………6
4.2.3 比较确定方案……………………………………………………7
5 运动和动力参数的设计计算……………………………………………………8
5.1 生姜在倾斜滚筒的运动及其轨迹………………………………………8
5.2 滚筒材料及驱动方式的选择……………………………………………12
5.2.1 滚筒材料的选择…………………………………………………12
5.2.2 筒体最小壁厚计算………………………………………………12
5.2.3 滚筒转动驱动方式的选择………………………………………13
5.3 功率的计算及电动机的选择……………………………………………13
5.3.1 功率的计算………………………………………………………13
5.3.2 电动机的选择……………………………………………………15
5.4 传动装置的运动和动力参数的计算……………………………………16
5.4.1 计算总传动比……………………………………………………16
5.4.2 传动比的分配……………………………………………………17
5.4.3 各轴和滚筒的转速计算…………………………………………17
5.4.4 各轴输入功率的计算……………………………………………17
5.4.5 各轴的转矩计算…………………………………………………18
5.5 齿轮的设计计算…………………………………………………………18
5.5.1 低速级齿轮设计计算……………………………………………18
5.5.2 高速级齿轮设计计算……………………………………………22
5.6 联轴器的选择……………………………………………………………23
5.7 轴的设计计算……………………………………………………………23
5.7.1 滚筒中心轴的设计………………………………………………23
5.7.2 轴的强度校核……………………………………………………24
5.8 轴承及轴承座的选择……………………………………………………27
5.8.1 类型选择…………………………………………………………27
5.8.2 型号选择…………………………………………………………27
5.8.3 轴承的的结构和定位方法………………………………………29
5.8.4 滚动轴承的润滑和密封…………………………………………29
5.8.5 滚动轴承座的选择及其配置……………………………………30
6 滚筒结构的设计…………………………………………………………………30
7 总结………………………………………………………………………………32
参考文献……………………………………………………………………………32
致谢…………………………………………………………………………………34
温馨提示:
1、题目前面的备注【字母数字编号】为本站整理分类的编号,与课题内容无关,请选题时忽视;
2、若题目上备注三维,则表示文件里包含三维源文件,由于三维组成零件数量较多,为保证预览截图的简洁性,本站将三维文件夹进行了打包。三维及CAD预览截图,均为本站电脑打开软件进行截图的,保证能够打开,下载原件超高清,下载后解压即可;
3、本站所有资源如无特殊说明,都需要本地电脑安装Office2007。图纸软件为AutoCAD,PROE,UG,SolidWorks,CATIA等;
4、本站所有图文资料仅供用户学习参考,不作为任何商用或其他用途;
5、本站不保证下载资源的准确性、安全性和完整性, 不包修改,不支持退换,同时也不承担用户因使用这些下载资源对自己和他人造成任何形式的伤害或损失;
6、 下载文件中如有侵权或不适当内容,请与我们联系,我们立即纠正。