

作品包括:
Word版说明书1份,共35页,约22000字
任务书一份
外文翻译一份
CAD版本图纸,共11张
SW三维图一套

摘要
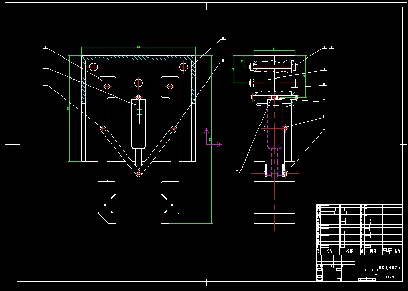
本次设计的搬运机械手共有4个自由度,分别为x,y方向的水平移动、z方向的垂直移动和转动。实现了从工作台上快速抓取并将传送到下一个工作台的过程。使工人摆脱了以往繁重和危险的手工操作劳动,极大的提高了劳动生产率。
该机械手的驱动方式为气动与电动相结合,采用了行程可调的汽缸,和新型的交流伺服电机以及大传动比的减速器。设备定期维护和保养,以确保润滑和运行情况良好。
关键词:机械手 铰链 自由度 气缸
目 录
第一章 机器人概述 1
1.1 工业机器人的定义、分类和应用 1
1.1.1 工业机器人的定义 1
1.1.2 机器人系统工作原理 1
1.1.3 机器人的分类 2
1.2 工业机器人的分类 4
1.3 机器人的分类 6
第二章 机器人的总体和机械结构设计方法 8
2.1 机器人的基本组成及技术参数 8
2.1.1 机器人的基本组成 8
2.1.2 机器人技术参数 9
2.2 机器人的总体设计 11
2.2.1 系统分析 11
2.2.2 技术设计 11
2. 2.3 仿真分析 14
2.3 机器人机械系统设计方法 15
第三章 搬运机械手的方案设计 19
3.1 参数 19
3.2 驱动方式的选择 19
3.3 系统减速部分的选择 23
第四章 主要零部件的计算 28
4.1 确定总体尺寸 28
4.2确定气缸型号 28
4.3确定电机和减速器的型号 29
参考文献 30
致 谢 31
温馨提示:
1、题目前面的备注【字母数字编号】为本站整理分类的编号,与课题内容无关,请选题时忽视;
2、若题目上备注三维,则表示文件里包含三维源文件,由于三维组成零件数量较多,为保证预览截图的简洁性,本站将三维文件夹进行了打包。三维及CAD预览截图,均为本站电脑打开软件进行截图的,保证能够打开,下载原件超高清,下载后解压即可;
3、本站所有资源如无特殊说明,都需要本地电脑安装Office2007。图纸软件为AutoCAD,PROE,UG,SolidWorks,CATIA等;
4、本站所有图文资料仅供用户学习参考,不作为任何商用或其他用途;
5、本站不保证下载资源的准确性、安全性和完整性, 不包修改,不支持退换,同时也不承担用户因使用这些下载资源对自己和他人造成任何形式的伤害或损失;
6、 下载文件中如有侵权或不适当内容,请与我们联系,我们立即纠正。