

作品包括:
Word版设计说明书1份,共37页,约16000字
任务书一份
外文翻译一份
CAD版本图纸,共6张
SW三维图一套

摘 要
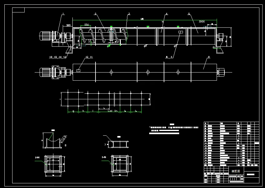
螺旋输送机它是一个大致连续输送设备。它是利用的是物质身体向前交通运输,机械的旋转运动螺旋部件的工作,装备是最重要的现代生产和物流的一个适用范围广,在国民经济各部门的应用不可缺少的获得,它已经遍及冶金,矿山,电力,建材,轻工,港口和重工业和交通等部门。它主要用于散装物料,如煤,矿石,粮食,砂,化肥之类的随身携带。在本文中,秸秆为主要原料螺旋输送机转移相关的结构设计。叶片材料设计实际形状,螺杆直径,转速和物质和输运性质的量的基础上计算出的其他重要参数被单独列出螺钉。马达驱动带传动构件,皮带驱动减速器,连接到该道路的主体上的减速器驱动。根据关键参数来选择合适的电机,皮带轮和齿轮,以确定传动比计算,后续工作将主要针对变速箱的设计,包括检查,选择主齿轮轴的计算工作。最后选择的安装图纸尺寸和装配图的基础上获得的计算结果。
关键词:螺旋输送机;连续运输机械;减速器
目 录
第1章 绪论 1
1.1 引言 1
1.2 螺旋输送机工作原理 1
1.3 技术特点 1
1.4 螺旋输送机工作原理 2
1.5螺旋输送机的基本现状 2
1.6螺旋输送机的工作原理及特点 2
1.7螺旋输送机的发展历史及趋势 3
1.7.1 螺旋输送机的发展历史 3
1.7.2螺旋输送机的发展趋势 4
1.7.3 螺旋输送机的应用范围 4
1.8 螺旋输送机的研究现状 4
第2章 螺旋输送机的设计 6
2.1产品特点 6
2.2主要部件结构特点 6
2.3螺旋输送机的具体设计 6
2.4 螺旋输送机的选型 6
2.5 螺旋输送机的设计计算 7
2.6 螺旋输送机外形及尺寸 11
2.7 螺旋输送机外形长度组合及各节重量 12
2.8电动机的计算选型 13
2.9减速器的选择 14
2.10轴承选型 14
2.11 螺旋输送机进出料口装置 15
2.12螺旋输送机轴承选择 20
2.13螺旋输送机进出料口装置 20
第3章 主轴的设计和校核 22
3.1 选择轴的材料 22
3.2 初步确定轴的直径 22
第4章 轴承的选用 24
第5章 机架的设计 24
5.1 断面形状和尺寸选择 24
5.2 机架的结构 24
5.3 机架与中间架 25
5.4 给料装置 26
5.4.1 对给料装置的基本要求 26
5.4.2 装料段拦板的布置及尺寸 26
5.4.3 装料点的缓冲 27
5.5 卸料装置 27
结论 29
致谢 30
参考文献 31
温馨提示:
1、题目前面的备注【字母数字编号】为本站整理分类的编号,与课题内容无关,请选题时忽视;
2、若题目上备注三维,则表示文件里包含三维源文件,由于三维组成零件数量较多,为保证预览截图的简洁性,本站将三维文件夹进行了打包。三维及CAD预览截图,均为本站电脑打开软件进行截图的,保证能够打开,下载原件超高清,下载后解压即可;
3、本站所有资源如无特殊说明,都需要本地电脑安装Office2007。图纸软件为AutoCAD,PROE,UG,SolidWorks,CATIA等;
4、本站所有图文资料仅供用户学习参考,不作为任何商用或其他用途;
5、本站不保证下载资源的准确性、安全性和完整性, 不包修改,不支持退换,同时也不承担用户因使用这些下载资源对自己和他人造成任何形式的伤害或损失;
6、 下载文件中如有侵权或不适当内容,请与我们联系,我们立即纠正。