

作品包括:
Word版设计说明书1份
任务书一份
开题报告一份
实习报告一份
外文翻译一份
PPT答辩一份
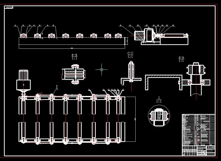
CAD版本图纸,共8张
SW三维图一套
摘要
接料架包括三个部分,输送机构、接料机构、盛料机构。整个板料剪切生产线包括开卷机构、展平机构、剪板机和成品接料架,整个生产线要实现自动化生产,我认为主要是接料架的设计。接料机构要实现几个主要的功能,第一要实现自动化的升降,这要靠plc控制液压缸的上升和下降;第二是要对板材进行装整,实现板材的整齐;第三是要把整理后的板材输送出去。整个生产线最难实现的是如何实现几个机构的同时性和协调性,以及对整个生产线的自动控制。
温馨提示:
1、题目前面的备注【字母数字编号】为本站整理分类的编号,与课题内容无关,请选题时忽视;
2、若题目上备注三维,则表示文件里包含三维源文件,由于三维组成零件数量较多,为保证预览截图的简洁性,本站将三维文件夹进行了打包。三维及CAD预览截图,均为本站电脑打开软件进行截图的,保证能够打开,下载原件超高清,下载后解压即可;
3、本站所有资源如无特殊说明,都需要本地电脑安装Office2007。图纸软件为AutoCAD,PROE,UG,SolidWorks,CATIA等;
4、本站所有图文资料仅供用户学习参考,不作为任何商用或其他用途;
5、本站不保证下载资源的准确性、安全性和完整性, 不包修改,不支持退换,同时也不承担用户因使用这些下载资源对自己和他人造成任何形式的伤害或损失;
6、 下载文件中如有侵权或不适当内容,请与我们联系,我们立即纠正。