

作品包括:
Word版设计说明书1份,共52页,约16000字
任务书一份
开题报告一份
外文翻译一份
CAD版本图纸,共7张
摘要
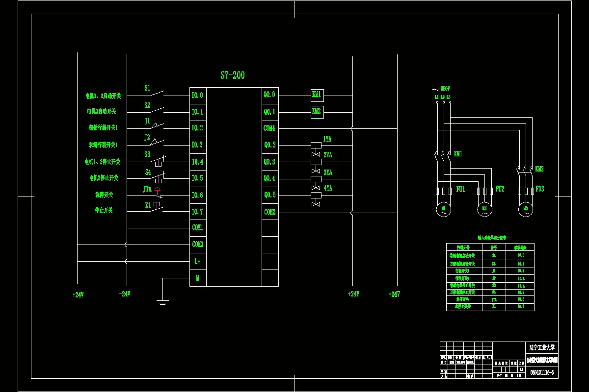
结合企业生产实际需求,提出了一种纸管成型的自动化设备方案。该设备主要用来生产一种用于高档衣服架的专用纸管产品,自动化水平较高,并具有较好的经济性。 本文首先对纸管成型的工艺进行分析,提出了设备整体结构方案,并进行了整体传动系统方案的设计。根据方案设计,分析了各个模块包括放卷机构、上胶机构、送料机构、切刀装置、导纸机构、卷绕机构的功能和结构特点,进行了结构计算和具体结构设计。 最后,本文设计了基于PLC的纸管设备控制系统。对主要控制任务作了分析,确定了硬件连接,编制了软件程序。 关键词:纸管,自动化设备, 结构设计
温馨提示:
1、题目前面的备注【字母数字编号】为本站整理分类的编号,与课题内容无关,请选题时忽视;
2、若题目上备注三维,则表示文件里包含三维源文件,由于三维组成零件数量较多,为保证预览截图的简洁性,本站将三维文件夹进行了打包。三维及CAD预览截图,均为本站电脑打开软件进行截图的,保证能够打开,下载原件超高清,下载后解压即可;
3、本站所有资源如无特殊说明,都需要本地电脑安装Office2007。图纸软件为AutoCAD,PROE,UG,SolidWorks,CATIA等;
4、本站所有图文资料仅供用户学习参考,不作为任何商用或其他用途;
5、本站不保证下载资源的准确性、安全性和完整性, 不包修改,不支持退换,同时也不承担用户因使用这些下载资源对自己和他人造成任何形式的伤害或损失;
6、 下载文件中如有侵权或不适当内容,请与我们联系,我们立即纠正。