

作品包括:
Word版说明书1份,共37页,约11000字
CAD版本图纸,共11张
![1751177417165408.webp 6}N6NJ7[HWLF1TO@]92FJ%E.webp](/static/upload/image/20250629/1751177417165408.webp)
摘要
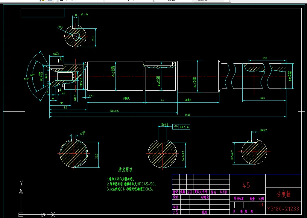
齿轮加工机床是一种技术含量高且结构复杂的机床。主传动箱是滚齿机最重要的部件。齿轮加工中的动力传递和变速主要都是通过主传动箱来完成的。传动箱紧固在床身的背面,其内装有主传动进给差动机构构件和走刀挂轮架及分度轴部件,分度挂轮架也在其中。主传动箱的第一根轴端部连接叶片泵,主电机开动后,叶片泵向机床各自动润滑点提供润滑油,向刀架立柱的液压缸供给压力油。主传动箱中的齿轮传动主要满足四条传动链的要求,特别是两条内传动链:展成运动链和附加运动链。主传动中的轴的设计,要考虑动载和主传动箱结构的要求,设计出来的轴安装好后不能与其他的零部件干涉。
在设计的过程中,既要考虑到运动和动力的要求,还要注意不能使结构太臃肿,因此在本滚齿机主传动链的设计中对一些传动比做了适当的调整。走刀挂轮架与分度轴部件安装在主传动箱的后面。设计出的主传动箱能满足加工要求,保证加工精度,且满足强度、刚度、寿命、工艺性与经济性等方面的要求,并使机床运行平稳,工作可靠,结构合理,装卸方便,便于维修与调整。
关键词:内传动链;主传动箱;分度轴
目 录
摘要 I
Abstract II
目 录 1
第一章 前言 1
第二章 滚齿机总体设计 3
2.1总体方案论证 3
2.2 拟定传动方案 3
2.3 确定详细传动方案 5
2.4 床身 7
2.5 主传动箱 7
2.6 刀架立柱 8
2.7 滚刀牙箱 8
2.8 工作台 8
2.9 外支架 8
第三章 主传动链的设计 9
3.1 主电动机的选择 9
3.2 传动比的计算及分配 10
3.3 V带的设计计算 11
3.4 主传动链的动力计算 14
3.4.1 第二级变速齿轮的动力计算 14
3.4.2 第三级变速齿轮(锥齿轮)的动力计算 15
3.4.3 第四级变速齿轮的动力计算 16
3.5 主传动链中轴的最小径的估算 18
第四章 主传动箱装配结构设计 22
4.1 主传动箱内分齿挂轮的调整 23
4.2 主传动箱内差动挂轮的调整 23
4.3 变速挂轮的调整 24
第五章 分度轴及走刀挂轮架的设计 26
5.1 确定分度轴的材料及热处理方法 26
5.2 分度轴的结构设计 26
5.3 分度轴强度的校核 27
5.4 走刀挂轮架的设计 28
第六章 结论 30
参考文献 31
致 谢 32
附 录 33
温馨提示:
1、题目前面的备注【字母数字编号】为本站整理分类的编号,与课题内容无关,请选题时忽视;
2、若题目上备注三维,则表示文件里包含三维源文件,由于三维组成零件数量较多,为保证预览截图的简洁性,本站将三维文件夹进行了打包。三维及CAD预览截图,均为本站电脑打开软件进行截图的,保证能够打开,下载原件超高清,下载后解压即可;
3、本站所有资源如无特殊说明,都需要本地电脑安装Office2007。图纸软件为AutoCAD,PROE,UG,SolidWorks,CATIA等;
4、本站所有图文资料仅供用户学习参考,不作为任何商用或其他用途;
5、本站不保证下载资源的准确性、安全性和完整性, 不包修改,不支持退换,同时也不承担用户因使用这些下载资源对自己和他人造成任何形式的伤害或损失;
6、 下载文件中如有侵权或不适当内容,请与我们联系,我们立即纠正。